Главная Проекты домов Проект двухэтажного дома с просторными террасой и гостиной-столовой

D1278 Проект двухэтажного дома с просторными террасой и гостиной-столовой

Сравнить проект В избранное
Проект двухэтажного дома с просторными террасой и гостиной-столовой / 1
Проект двухэтажного дома с просторными террасой и гостиной-столовой / 2
Проект двухэтажного дома с просторными террасой и гостиной-столовой / 3
Проект двухэтажного дома с просторными террасой и гостиной-столовой / 4
Проект двухэтажного дома с просторными террасой и гостиной-столовой / 5
Проект двухэтажного дома с просторными террасой и гостиной-столовой / 6
Проект двухэтажного дома с просторными террасой и гостиной-столовой / 1
Проект двухэтажного дома с просторными террасой и гостиной-столовой / 2
Проект двухэтажного дома с просторными террасой и гостиной-столовой / 3
Проект двухэтажного дома с просторными террасой и гостиной-столовой / 4
Проект двухэтажного дома с просторными террасой и гостиной-столовой / 5
Проект двухэтажного дома с просторными террасой и гостиной-столовой / 6
D1278
164 м²
Подготовка проекта:
Готов к отправке
Стоимость проекта
Купить проект
Задайте вопросы по проекту нашему архитектору
8 (800) 200-28-83
Время работы: пн-вс: с 9:00 до 20:00
Задать вопрос по проекту

Технические характеристики
Общие
Материал стен
Кирпич
Общая площадь
164 м²
Жилая площадь
74 м²
Площадь застройки
137 м²
Приведенная площадь
145.81 м²
Количество жилых комнат/спален
3
Этажи
2 этажа
Гараж
Нет гаража
Количество машин
нет
Подвал / цокольный этаж
Без подвала
Длина дома
15.5 м
Ширина дома
10.1 м
Высота в коньке
9.5 м
Кровля
Металлочерепица
Облицовка внешних стен
Облицовочный кирпич
Толщина несущих наружных стен
380 мм
Межэтажные перекрытия
Монолитные
Внутренние не несущие перегородки
Кирпичные
Фундамент
Свайный
Терраса
Терраса крытая
Дополнительные
Окна
Окна до пола
Сауна/баня внутри
Нет
Площадь гостиной
23 м²
Площадь кухни
13.3 м²
Количество санузлов
3
Окно в ванной комнате
Есть
Котельная
Есть
Хозяйская гардеробная
Есть
Кладовая
2
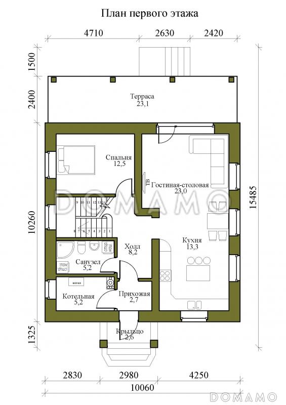
Планы помещений
Фасады
Описание проекта
Компания Domamo предлагает проект двухэтажного дома с просторными террасой и гостиной-столовой D1278. Общая площадь - 164 м2, размер - 15.5х10.1 м. Фундамент - свайный, кровля - металлочерепица, внешняя отделка - облицовочный кирпич. Для заказа проекта или внесения изменений свяжитесь с нами с помощью форм обратной связи на сайте или по телефону +7 (343) 357-92-70.
Категории проекта: для постоянного проживания кирпич современные от 100 до 200 кв.м в европейском стиле кирпичные европейские дома с террасой из кирпича с террасой готовые загородные из кирпича двухэтажные из кирпича двухэтажные кирпичные с котельной с котельной кирпичные до 200 кв.м до 200 кв.м загородные с гардеробной прямоугольные современные кирпичные Проекты двухэтажных домов с террасой Проекты двухэтажных домов с верандой без гаража облицованные кирпичом Проекты домов с тремя спальнями двухэтажные 200 кв м двухэтажные от 150 до 200 кв м двухэтажные до 180 кв.м двухэтажные с 3 спальнями двухэтажные в современном стиле двухэтажные без гаража современные без гаража современные с окнами в пол современные с террасой современные от 100 до 200 кв. м европейские для постоянного проживания европейские готовые европейские без подвала европейские с террасой европейские с котельной европейские с кладовой европейские прямоугольные европейские с окнами в пол европейские с вальмовой крышей европейские 100-200 м2 недорогие двухэтажные недорогие кирпичные недорогие без гаража недорогие с террасой недорогие для постоянного проживания недорогие с вальмовой крышей недорогие с окнами до пола недорогие без бани недорогие с котельной недорогие прямоугольные недорогие от 100 до 200 м2 из клееного бруса без гаража Показать все категории Скрыть категории

Похожие проекты
Состав проекта
Входит в стоимость
Цена, руб. Сроки, дней
Комплект архитектурно-строительных чертежей (АС) Входит в стоимость Готов к отправке
Готово к продаже
Цена, руб. Сроки, дней
Паспорт рабочего проекта 4 000 ₽ 3 рабочих дня в корзину
Дополнительная копия проекта формата А3 4 000 ₽ Готов к отправке в корзину
Электронная копия проекта (скан распечатанной версии) 4 000 ₽ 3 рабочих дня в корзину
Разрабатывается отдельно
Цена, руб. Сроки, дней
Адаптация фундамента (изменение типа фундамента) по запросу 14 рабочих дней
Дизайн интерьера (стоимость от 2200руб. за квад.метр площади) по запросу 30 рабочих дней
Внесение изменений в проект по запросу 20 рабочих дней
Разработка Генплана участка, в масштабе 1:250 7 500 ₽ 5 рабочих дней в корзину
Фэншуй дома 20 000 ₽ 14 рабочих дней в корзину
Фэншуй участка 15 000 ₽ 14 рабочих дней в корзину
Фэншуй полная консультация дом+участок с выездом на объект 100 000 ₽ 30 рабочих дней в корзину
Опции проекта вы можете заказать в корзине при оформлении заказа
Отзывы покупателей
Рейтинг покупателей
0 / 5 5 5 1
На основе 1 оценок покупателей
0%
0%
0%
0%
0%
Отзывы о проекте D1278
Отзыв о проекте D1278
Чтобы оставить отзыв, пожалуйста авторизуйтесь.
Подбор строительной компании
Не знаете кому доверить строительство дома? Мы можем помочь! Подберем для вас из сотен наших партнеров несколько компаний с лучшем соотношением цена/качество под конкретно ваш запрос.
Подобрать