Изысканный особняк с пятью спальнями понравится семье из 4-6 человек. Здание нестандартной формы построено из газобетона и облицовано кирпичом и камнем.
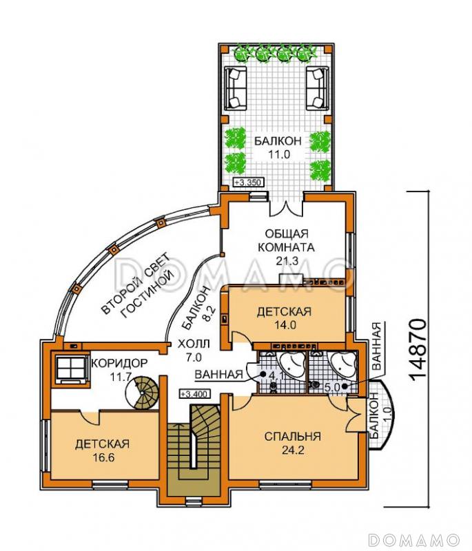
На цокольном этаже оборудована спа-зона и бильярдная. Здесь же размещены кладовые. На первом этаже — просторная дневная зона, состоящая из гостиной, столовой и зимнего сада, а также 2 спальни. Спальня родителей и две детские расположены на втором этаже. На мансарду ведет винтовая лестница, здесь находятся подсобки.
неординарное оформление фасада и несимметричная форма дома выделяют особняк на фоне стандартных построек соседей,
на втором этаже оборудован просторный балкон,
лифт делает перемещение между этажами комфортнее.
| Минимальная | 14 669 640 ₽ |
| Стандарт | 21 573 000 ₽ |
| Под чистовую отделку | 23 730 300 ₽ |
| Показать подробные комплектации | |
| Минимальная | 14 382 000 ₽ |
| Стандарт | 19 176 000 ₽ |
| Под чистовую отделку | 23 970 000 ₽ |
| Показать подробные комплектации | |