Главная Проекты домов Проект дома из бруса с тремя спальными комнатами на мансардном этаже

D1553 Проект дома из бруса с тремя спальными комнатами на мансардном этаже

Сравнить проект В избранное
Проект дома из бруса с тремя спальными комнатами на мансардном этаже / 1
Проект дома из бруса с тремя спальными комнатами на мансардном этаже / 1
D1553
126 м²
Подготовка проекта:
Готов к отправке
Стоимость проекта
Купить проект
Задайте вопросы по проекту нашему архитектору
8 (800) 200-28-83
Время работы: пн-вс: с 9:00 до 20:00
Задать вопрос по проекту

Технические характеристики
Общие
Материал стен
Брус
Общая площадь
126 м²
Жилая площадь
81 м²
Приведенная площадь
127.97 м²
Количество жилых комнат/спален
4
Этажи
1 этаж + мансарда
Гараж
Нет гаража
Подвал / цокольный этаж
Без подвала
Длина дома
8.8 м
Ширина дома
8.8 м
Высота в коньке
9.5 м
Кровля
Гибкая черепица
Облицовка внешних стен
Без облицовки
Толщина несущих наружных стен
200 мм
Межэтажные перекрытия
По деревянным балкам
Внутренние не несущие перегородки
Каркасно-обшивные
Фундамент
Ленточный монолитный
Терраса
Терраса крытая
Дополнительные
Мансардные окна
Есть
Камин
Есть
Сауна/баня внутри
Нет
Площадь гостиной
24.6 м²
Площадь кухни
11.6 м²
Количество санузлов
2
Окно в ванной комнате
Есть
Котельная
Есть
Кладовая
1
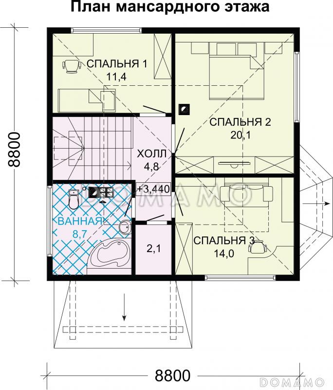
Планы помещений
Описание проекта
Компания Domamo предлагает проект дома из бруса с тремя спальными комнатами на мансардном этаже D1553. Общая площадь - 126 м2, размер - 8.8х8.8 м. Фундамент - ленточный монолитный, кровля - гибкая черепица, внешняя отделка - без облицовки. Для заказа проекта или внесения изменений свяжитесь с нами с помощью форм обратной связи на сайте или по телефону +7 (343) 357-92-70.
Категории проекта: с мансардой деревянные для постоянного проживания из бруса в английском стиле в скандинавском стиле от 100 до 200 кв.м в европейском стиле с эркером с террасой из бруса с мансардой одноэтажные дома из бруса одноэтажные дома из бруса с мансардой из бруса в стиле хай-тек из бруса в стиле модерн европейские дома из профилированного бруса дома шале из бруса финские дома из бруса из бруса в стиле минимализм из бруса в немецком стиле современные дома из бруса из бруса в стиле замка из бруса с эркером из бруса с мансардой и эркером готовые из профилированного бруса в финском стиле одноэтажные с мансардой одноэтажные до 150 кв. м. одноэтажные с котельной с котельной одноэтажные деревянные 9 на 9 с мансардой 9х9 до 150 кв.м до 200 кв.м 6х10 8х9 9х10 9х12 загородные с камином квадратные с эркером и мансардой загородные дома из бруса Проекты деревянных домов с мансардой Проекты деревянных домов с террасой Проекты одноэтажных домов с эркером Проекты одноэтажных домов с террасой Типовые проекты загородных одноэтажных домов без гаража одноэтажные без гаража с террасой и камином из бруса для постоянного проживания одноэтажные 9 на 9 одноэтажные финские одноэтажные с 4 спальнями с мансардой до 150 кв м с мансардой и террасой полутораэтажные деревянные для круглогодичного проживания с 4 спальнями 9 на 12 с мансардой одноэтажные до 200 кв м до 140 кв м из бруса 9 на 9 до 130 кв м финские одноэтажные из бруса одноэтажные с мансардными окнами с мансардой с котельной с мансардой с камином с мансардой скандинавские с мансардой с мансардными окнами с мансардой квадратные с мансардой готовые с мансардой для постоянного проживания с мансардой до 200 кв.м с мансардой от 100 до 150 кв.м одноэтажные с мансардой из бруса одноэтажные с мансардой для постоянного проживания одноэтажные с мансардой скандинавские скандинавские для постоянного проживания скандинавские без гаража скандинавские с террасой скандинавские готовые скандинавские квадратные скандинавские до 150 кв. м скандинавские от 100 до 200 м2 скандинавские с камином скандинавские с котельной до 150 кв.м для постоянного проживания до 150 кв.м без гаража до 150 кв.м готовые до 150 кв.м с мансардными окнами до 150 кв.м квадратные до 150 кв.м с котельной до 150 кв.м без бани до 150 кв.м с террасой до 150 кв.м без подвала до 150 кв.м с 4 спальнями до 150 кв.м с камином деревянные в скандинавском стиле деревянные квадратные деревянные с камином деревянные без гаража деревянные готовые деревянные без подвала деревянные с 4 спальнями деревянные до 150 кв.м деревянные от 100 до 200 м2 недорогие с мансардой недорогие без гаража недорогие с террасой недорогие для постоянного проживания недорогие без бани недорогие с котельной недорогие с мансардными окнами недорогие с камином недорогие квадратные недорогие до 150 м2 недорогие от 100 до 200 м2 из клееного бруса без гаража из бруса готовые из бруса с окном в ванной комнате из бруса с камином из бруса квадратные из бруса с мансардными окнами из бруса скандинавские из бруса с многощипцовой крышей из бруса с ленточным заглубленным монолитным фундаментом с каркасными стенами из бруса с перекрытиями по деревянным балкам из бруса без облицовки из бруса с кровлей из гибкой черепицы из бруса с котельной из бруса без сауны из бруса с крытой террасой из бруса без подвала из бруса без гаража из бруса от 100 до 200 м2 Показать все категории Скрыть категории

Похожие проекты
Состав проекта
Входит в стоимость
Цена, руб. Сроки, дней
Комплект архитектурно-строительных чертежей (АС) Входит в стоимость 3 рабочих дня
Готово к продаже
Цена, руб. Сроки, дней
Зеркальная версия проекта Входит в стоимость 3 рабочих дня
Паспорт рабочего проекта 5 000 ₽ 3 рабочих дня в корзину
Инженерные разделы: ВК + ОВ + ЭО 23 000 ₽ 3 рабочих дня в корзину
Дополнительная копия проекта формата А3 3 000 ₽ 3 рабочих дня в корзину
Две дополнительные копии проекта формата А3 + 1 паспорт рабочего проекта 10 100 ₽ 3 рабочих дня в корзину
Электронная копия проекта (скан распечатанной версии) 4 000 ₽ 3 рабочих дня в корзину
Разрабатывается отдельно
Цена, руб. Сроки, дней
Адаптация фундамента (изменение типа фундамента) по запросу 14 рабочих дней
Дизайн интерьера (стоимость от 2200руб. за квад.метр площади) по запросу 30 рабочих дней
Внесение изменений в проект по запросу 20 рабочих дней
Фэншуй дома 20 000 ₽ 14 рабочих дней в корзину
Фэншуй участка 15 000 ₽ 14 рабочих дней в корзину
Фэншуй полная консультация дом+участок с выездом на объект 100 000 ₽ 30 рабочих дней в корзину
Опции проекта вы можете заказать в корзине при оформлении заказа
Варианты проекта Сравнить все варианты
Избранные проекты
Избранные строители
Отзывы покупателей
Рейтинг покупателей
0 / 5 5 5 1
На основе 1 оценок покупателей
0%
0%
0%
0%
0%
Отзывы о проекте D1553
Отзыв о проекте D1553
Чтобы оставить отзыв, пожалуйста авторизуйтесь.
Подбор строительной компании
Не знаете кому доверить строительство дома? Мы можем помочь! Подберем для вас из сотен наших партнеров несколько компаний с лучшем соотношением цена/качество под конкретно ваш запрос.
Подобрать