Главная Проекты домов Проект дома из клееного бруса для большой семьи

D1616 Проект дома из клееного бруса для большой семьи

Сравнить проект В избранное
Проект дома из клееного бруса для большой семьи / 1
Проект дома из клееного бруса для большой семьи / 2
Проект дома из клееного бруса для большой семьи / 1
Проект дома из клееного бруса для большой семьи / 2
D1616
306 м²
Проект с подрядом
Артикул проекта: МАУРИН
Компания: Ecohouse Group
Стоимость строительства
5 655 000 ₽
Заказать подробную смету
+7 (812) XXX-XX-XX Показать телефон
Задать вопрос по проекту
Технические характеристики
Общие
Материал стен
Клееный брус
Общая площадь
306 м²
Приведенная площадь
203.3 м²
Количество жилых комнат/спален
5
Этажи
1 этаж + мансарда
Гараж
Нет гаража
Подвал / цокольный этаж
Без подвала
Длина дома
14.6 м
Ширина дома
10.8 м
Кровля
Металлочерепица
Облицовка внешних стен
Без облицовки
Толщина несущих наружных стен
160 мм
Межэтажные перекрытия
По деревянным балкам
Внутренние не несущие перегородки
Каркасно-обшивные
Терраса
Терраса открытая
Дополнительные
Окна
Окна до пола
,
Панорамные окна
Второй свет
Есть
Камин
Есть
Сауна/баня внутри
Есть
Площадь гостиной
36 м²
Количество санузлов
5
Окно в ванной комнате
Есть
Котельная
Есть
Кладовая
2
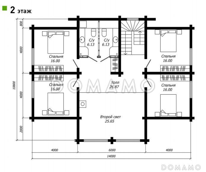
Планы помещений
Описание проекта
Компания Domamo предлагает проект дома из клееного бруса для большой семьи D1616. Общая площадь - 306 м2, размер - 14.6х10.8 м. Фундамент - , кровля - металлочерепица, внешняя отделка - без облицовки. Для заказа проекта или внесения изменений свяжитесь с нами с помощью форм обратной связи на сайте или по телефону +7 (343) 357-92-70.
Категории проекта: с мансардой деревянные для постоянного проживания из клееного бруса современные от 300 до 400 кв.м в европейском стиле с эркером с террасой одноэтажные с мансардой одноэтажные с котельной с котельной со вторым светом одноэтажные деревянные с баней с двухскатной крышей загородные с камином с сауной прямоугольные с панорамным остеклением с эркером и мансардой Проекты деревянных домов с мансардой Проекты деревянных домов с террасой Проекты деревянных домов с баней Проекты домов из клееного бруса с мансардой Проекты одноэтажных домов из клееного бруса Проекты одноэтажных домов с эркером Проекты одноэтажных домов с террасой Типовые проекты загородных одноэтажных домов Проекты одноэтажных домов с баней без гаража одноэтажные без гаража с террасой и камином с мансардой и террасой полутораэтажные деревянные для круглогодичного проживания с панорамными окнами и террасой с 5 спальнями с мансардой с баней с мансардой с котельной с мансардой с камином с мансардой с двухскатной крышей с мансардой современные с мансардой с панорамными окнами с мансардой с окнами до пола с мансардой со вторым светом с мансардой прямоугольные с мансардой для постоянного проживания с мансардой элитные со вторым светом одноэтажные с мансардой из клееного бруса одноэтажные с мансардой для постоянного проживания одноэтажные с мансардой со вторым светом одноэтажные с мансардой с панорамными окнами одноэтажные с мансардой современные современные без гаража современные с двухскатной крышей современные с панорамными окнами современные с окнами в пол современные с террасой современные большие современные со вторым светом деревянные современные деревянные с окнами в пол деревянные с вторым светом деревянные с панорамными окнами деревянные прямоугольные деревянные с камином деревянные без гаража деревянные с подрядом деревянные без подвала деревянные с большой гостиной деревянные с баней деревянные от 300 до 400 м2 недорогие с панорамными окнами из клееного бруса проект с подрядом из клееного бруса для постоянного проживания из клееного бруса с окном в ванной комнате из клееного бруса с камином из клееного бруса прямоугольный из клееного бруса с вторым светом из клееного бруса с окнами в пол (в гостиной) из клееного бруса с окнами в пол из клееного бруса с панорамными окнами из клееного бруса в скандинавском стиле из клееного бруса в современном стиле из клееного бруса с двухскатной крышей из клееного бруса с каркасно-обшивными перегородками из клееного бруса без облицовки из клееного бруса с перекрытиями по деревянным балкам из клееного бруса с кровлей из металлочерепицы из клееного бруса с котельной из клееного бруса с сауной/баней внутри из клееного бруса с 2 эркерами из клееного бруса с выходом на терассу из гостиной из клееного бруса с выходом на терассу из кухни из клееного бруса с открытой терассой из клееного бруса без подвала из клееного бруса без гаража одноэтажные из клееного бруса с мансардой из клееного бруса от 300 до 400 м2 из клееного бруса с большой гостиной Проекты домов с подрядом Показать все категории Скрыть категории

Похожие проекты
Состав проекта
Входит в стоимость
Цена, руб. Сроки, дней
Комплект архитектурно-строительных чертежей (АС) Входит в стоимость Готов к отправке
Разрабатывается отдельно
Цена, руб. Сроки, дней
Адаптация фундамента (изменение типа фундамента) по запросу 14 рабочих дней
Дизайн интерьера (стоимость от 2200руб. за квад.метр площади) по запросу 30 рабочих дней
Внесение изменений в проект по запросу 20 рабочих дней
Фэншуй дома 20 000 ₽ 14 рабочих дней в корзину
Фэншуй участка 15 000 ₽ 14 рабочих дней в корзину
Фэншуй полная консультация дом+участок с выездом на объект 100 000 ₽ 30 рабочих дней в корзину
Опции проекта вы можете заказать в корзине при оформлении заказа
Комплектации
Отзывы покупателей
Рейтинг покупателей
0 / 5 5 5 1
На основе 1 оценок покупателей
0%
0%
0%
0%
0%
Отзывы о проекте D1616
Отзыв о проекте D1616
Чтобы оставить отзыв, пожалуйста авторизуйтесь.
Подбор строительной компании
Не знаете кому доверить строительство дома? Мы можем помочь! Подберем для вас из сотен наших партнеров несколько компаний с лучшем соотношением цена/качество под конкретно ваш запрос.
Подобрать