Главная Проекты домов Проект просторного одноэтажного дома из кирпича с четырьмя спальнями, гаражом и панорамным остеклением гостиной

D1626 Проект просторного одноэтажного дома из кирпича с четырьмя спальнями, гаражом и панорамным остеклением гостиной

Сравнить проект В избранное
Технические характеристики
Общие
Материал стен
Кирпич
Общая площадь
223 м²
Площадь застройки
344.9 м²
Приведенная площадь
206.99 м²
Количество жилых комнат/спален
4
Этажи
1 этаж
Гараж
Встроенный гараж
Количество машин
2
Подвал / цокольный этаж
Без подвала
Длина дома
19.91 м
Ширина дома
18.41 м
Высота в коньке
6.24 м
Кровля
Металлочерепица
Облицовка внешних стен
Деревянная вагонка
,
Мокрая штукатурка
Толщина несущих наружных стен
380 мм
Межэтажные перекрытия
По деревянным балкам
Внутренние не несущие перегородки
Кирпичные
Фундамент
Ленточный заглубленный из ФБС
Терраса
Терраса открытая
Дополнительные
Окна
Окна до пола
,
Панорамные окна
Камин
Есть
Сауна/баня внутри
Нет
Площадь гостиной
40.5 м²
Площадь кухни
9.6 м²
Количество санузлов
2
Окно в ванной комнате
Есть
Котельная
Есть
Хозяйский санузел
Есть
Хозяйская гардеробная
Есть
Кладовая
3
Длина участка
27.91 м
Ширина участка
26.41 м
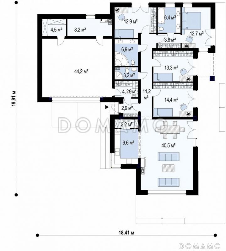
Планы помещений
Описание проекта
Компания Domamo предлагает проект просторного одноэтажного дома из кирпича с четырьмя спальнями, гаражом и панорамным остеклением гостиной D1626. Общая площадь - 223 м2, размер - 19.91х18.41 м. Фундамент - ленточный заглубленный из фбс, кровля - металлочерепица, внешняя отделка - деревянная вагонка мокрая штукатурка. Для заказа проекта или внесения изменений свяжитесь с нами с помощью форм обратной связи на сайте или по телефону +7 (343) 357-92-70.
Категории проекта: с гаражом для постоянного проживания кирпич современные от 200 до 300 кв.м дома из кирпича с гаражом в европейском стиле с террасой из кирпича с террасой готовые загородные из кирпича одноэтажные из кирпича одноэтажные из кирпича с гаражом одноэтажные кирпичные с котельной одноэтажные одноэтажные с гаражом кирпичные с котельной одноэтажные с котельной с котельной с двухскатной крышей загородные с четырехскатной крышей с камином с гардеробной угловые со встроенным гаражом с панорамным остеклением современные кирпичные Проекты одноэтажных домов с террасой Типовые проекты загородных одноэтажных домов с террасой и камином с гаражом под одной крышей одноэтажные с 4 спальнями одноэтажные с гаражом и террасой с гаражом на 2 машины с гаражом и террасой с 4 спальнями с панорамными окнами и террасой г-образные от 200 до 250 м одноэтажные современные одноэтажные с двухскатной крышей одноэтажные с четырехскатной крышей одноэтажные с панорамными окнами одноэтажные с окнами в пол одноэтажные с камином одноэтажные с 2 санузлами одноэтажные с большой гостиной одноэтажные из кирпича с террасой одноэтажные из кирпича с двухскатной крышей одноэтажные из кирпича с 4 спальнями с четырехскатной крышей готовые для постоянного проживания с камином с гаражом на 2 машины без подвала современные с панорамными окнами угловые с большой гостиной современные с гаражом современные с двухскатной крышей современные с панорамными окнами современные с окнами в пол современные с террасой недорогие с панорамными окнами из клееного бруса без гаража Показать все категории Скрыть категории

Похожие проекты
Состав проекта
Входит в стоимость
Цена, руб. Сроки, дней
Комплект архитектурно-строительных чертежей (АС) Входит в стоимость 33 рабочих дня
Готово к продаже
Цена, руб. Сроки, дней
Паспорт рабочего проекта 8 000 ₽ 5 рабочих дней в корзину
Дополнительная копия проекта формата А3 6 500 ₽ 5 рабочих дней в корзину
Электронная копия проекта (скан распечатанной версии) 4 000 ₽ 3 рабочих дня в корзину
Разрабатывается отдельно
Цена, руб. Сроки, дней
Адаптация фундамента (изменение типа фундамента) по запросу 14 рабочих дней
Дизайн интерьера (стоимость от 2200руб. за квад.метр площади) по запросу 30 рабочих дней
Внесение изменений в проект по запросу 20 рабочих дней
Инженерные разделы: ВК + ОВ + ЭО 24 330 ₽ 33 рабочих дня в корзину
Разработка Генплана участка, в масштабе 1:250 7 500 ₽ 15 рабочих дней в корзину
Фэншуй дома 20 000 ₽ 14 рабочих дней в корзину
Фэншуй участка 15 000 ₽ 14 рабочих дней в корзину
Фэншуй полная консультация дом+участок с выездом на объект 100 000 ₽ 30 рабочих дней в корзину
Опции проекта вы можете заказать в корзине при оформлении заказа
Варианты проекта Сравнить все варианты
Избранные проекты
Избранные строители
Предложения строителей Выбрать регион
Минимальная
7 244 650 ₽
Стандарт
8 900 570 ₽
Под чистовую отделку
11 591 440 ₽
Показать подробные комплектации
Минимальная
17 594 150 ₽
Стандарт
20 699 000 ₽
Под чистовую отделку
26 908 700 ₽
Показать подробные комплектации
Минимальная
9 670 572 ₽
Стандарт
14 203 653 ₽
Под чистовую отделку
22 363 199 ₽
Показать подробные комплектации
Минимальная
8 294 089 ₽
Стандарт
9 523 609 ₽
Под чистовую отделку
12 194 194 ₽
Показать подробные комплектации
Минимальная
4 059 684 ₽
Стандарт
5 027 279 ₽
Под чистовую отделку
6 050 949 ₽
Показать подробные комплектации
Подбор строительной компании
Не знаете кому доверить строительство дома? Мы можем помочь! Подберем для вас из сотен наших партнеров несколько компаний с лучшем соотношением цена/качество под конкретно ваш запрос.
Подобрать
Посмотреть еще 20 компаний Свернуть
Отзывы покупателей
Рейтинг покупателей
0 / 5 5 5 1
На основе 1 оценок покупателей
0%
0%
0%
0%
0%
Отзывы о проекте D1626
Отзыв о проекте D1626
Чтобы оставить отзыв, пожалуйста авторизуйтесь.
Подбор строительной компании
Не знаете кому доверить строительство дома? Мы можем помочь! Подберем для вас из сотен наших партнеров несколько компаний с лучшем соотношением цена/качество под конкретно ваш запрос.
Подобрать