Главная Проекты домов Проект большого двухэтажного дома с мансардой,с эркером, гаражом, сауной и бассейном

D1751 Проект большого двухэтажного дома с мансардой,с эркером, гаражом, сауной и бассейном

Сравнить проект В избранное
Проект большого двухэтажного дома с мансардой,с эркером, гаражом, сауной и бассейном / 1
Проект большого двухэтажного дома с мансардой,с эркером, гаражом, сауной и бассейном / 2
Проект большого двухэтажного дома с мансардой,с эркером, гаражом, сауной и бассейном / 3
Проект большого двухэтажного дома с мансардой,с эркером, гаражом, сауной и бассейном / 1
Проект большого двухэтажного дома с мансардой,с эркером, гаражом, сауной и бассейном / 2
Проект большого двухэтажного дома с мансардой,с эркером, гаражом, сауной и бассейном / 3
D1751
1049 м²
Подготовка проекта:
Готов к отправке
Стоимость проекта
Купить проект
Задайте вопросы по проекту нашему архитектору
8 (800) 200-28-83
Время работы: пн-вс: с 9:00 до 20:00
Задать вопрос по проекту

Технические характеристики
Общие
Материал стен
Кирпич
Общая площадь
1049 м²
Приведенная площадь
926.8 м²
Количество жилых комнат/спален
8
Этажи
2 этажа + мансарда
Гараж
Встроенный гараж
Количество машин
3
Подвал / цокольный этаж
Без окон
Длина дома
30.85 м
Ширина дома
28.47 м
Облицовка внешних стен
Мокрая штукатурка
Фундамент
Ленточный монолитный
Терраса
Терраса открытая
,
Терраса крытая
Дополнительные
Окна
Окна до пола
,
Панорамные окна
Второй свет
Есть
Камин
Есть
Сауна/баня внутри
Есть
Бассейн
Есть
Площадь гостиной
39.2 м²
Площадь кухни
44.5 м²
Количество санузлов
10
Окно в ванной комнате
Есть
Котельная
Есть
Кабинет
Есть
Постирочная
Есть
Бильярдная
Есть
Хозяйский санузел
Есть
Хозяйская гардеробная
Есть
Кладовая
4
Балкон / лоджия
Балкон
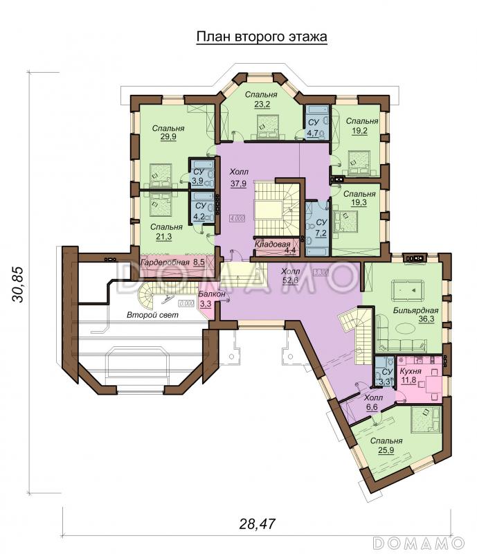
Планы помещений
Фасады
Описание проекта
Компания Domamo предлагает проект большого двухэтажного дома с мансардой,с эркером, гаражом, сауной и бассейном D1751. Общая площадь - 1049 м2, размер - 30.85х28.47 м. Фундамент - ленточный монолитный, кровля - , внешняя отделка - мокрая штукатурка. Для заказа проекта или внесения изменений свяжитесь с нами с помощью форм обратной связи на сайте или по телефону +7 (343) 357-92-70.
Категории проекта: с мансардой с гаражом с мансардой и гаражом для постоянного проживания кирпич от 500 кв.м кирпичные дома с мансардой дома из кирпича с гаражом в европейском стиле кирпичные европейские дома с эркером кирпичные дома с эркером с террасой из кирпича с террасой готовые с цокольным этажом загородные из кирпича двухэтажные из кирпича двухэтажные кирпичные с гаражом двухэтажные из кирпича с мансардой двухэтажные двухэтажные с гаражом двухэтажные с мансардой кирпичные с подвалом кирпичные с котельной с подвалом с котельной со вторым светом с баней с бассейном загородные с баней и гаражом с баней и бассейном с бильярдной с камином с сауной с гардеробной с балконом со встроенным гаражом с панорамным остеклением кирпичные с баней кирпичные с бассейном с эркером и мансардой двухэтажные с эркером Проекты двухэтажных домов с террасой Проекты двухэтажных домов с верандой Проекты двухэтажных домов с подвалом на две семьи с террасой и камином с кабинетом с гаражом под одной крышей с мансардой и террасой особняки с гаражом и террасой двухэтажные с террасой и гаражом с панорамными окнами и террасой двухэтажные с сауной с цокольным этажом и гаражом с балконом и террасой с бассейном и гаражом с эркером и гаражом большие сложной формы двухэтажные с камином двухэтажные со вторым светом двухэтажные с панорамными окнами двухэтажные с балконом двухэтажные с балконом и террасой двухэтажные с бассейном с мансардой с баней с мансардой с котельной с мансардой с камином с мансардой с бассейном с мансардой в европейском стиле с мансардой с панорамными окнами с мансардой с окнами до пола с мансардой со вторым светом с мансардой с балконом с мансардой сложной формы с мансардой готовые с мансардой для постоянного проживания с мансардой элитные с мансардой большие европейские для постоянного проживания европейские готовые европейские с гаражом европейские с подвалом европейские с террасой европейские с сауной европейские с изолированной кухней европейские с котельной европейские с кабинетом европейские с прачечной европейские с кладовой европейские с балконом европейские с вторым светом европейские с панорамными окнами европейские с окнами в пол европейские с камином европейские с бассейном европейские от 500 м2 большие готовые большие в европейском стиле большие с вторым светом большие с балконом большие сложной формы большие с камином большие с бассейном большие с окном в ванной комнате большие с панорамными окнами большие с окнами в пол большие с гаражом большие с большой кухней большие с изолированной кухней большие с террасой большие с баней большие с прачечной большие с котельной большие с кабинетом большие с мастер-спальней недорогие с мансардой недорогие кирпичные недорогие с гаражом недорогие с террасой недорогие для постоянного проживания недорогие с окнами до пола недорогие с панорамными окнами недорогие с изолированной кухней недорогие с баней недорогие с кабинетом недорогие с котельной недорогие с вторым светом недорогие с балконом недорогие с камином недорогие сложной формы недорогие большие из клееного бруса без гаража Показать все категории Скрыть категории

Похожие проекты
Состав проекта
Входит в стоимость
Цена, руб. Сроки, дней
Комплект архитектурно-строительных чертежей (АС) Входит в стоимость Готов к отправке
Готово к продаже
Цена, руб. Сроки, дней
Паспорт рабочего проекта 5 000 ₽ Готов к отправке в корзину
Инженерные разделы: ВК + ОВ + ЭО 21 000 ₽ Готов к отправке в корзину
Разрабатывается отдельно
Цена, руб. Сроки, дней
Адаптация фундамента (изменение типа фундамента) по запросу 14 рабочих дней
Дизайн интерьера (стоимость от 2200руб. за квад.метр площади) по запросу 30 рабочих дней
Внесение изменений в проект по запросу 20 рабочих дней
Фэншуй дома 20 000 ₽ 14 рабочих дней в корзину
Фэншуй участка 15 000 ₽ 14 рабочих дней в корзину
Фэншуй полная консультация дом+участок с выездом на объект 100 000 ₽ 30 рабочих дней в корзину
Опции проекта вы можете заказать в корзине при оформлении заказа
Предложения строителей Свердловская область
Подбор строительной компании
Не знаете кому доверить строительство дома? Мы можем помочь! Подберем для вас из сотен наших партнеров несколько компаний с лучшем соотношением цена/качество под конкретно ваш запрос.
Подобрать
Посмотреть еще 2 компании Свернуть
Отзывы покупателей
Рейтинг покупателей
0 / 5 5 5 1
На основе 1 оценок покупателей
0%
0%
0%
0%
0%
Отзывы о проекте D1751
Отзыв о проекте D1751
Чтобы оставить отзыв, пожалуйста авторизуйтесь.
Подбор строительной компании
Не знаете кому доверить строительство дома? Мы можем помочь! Подберем для вас из сотен наших партнеров несколько компаний с лучшем соотношением цена/качество под конкретно ваш запрос.
Подобрать