Главная Проекты домов Проект загородного дома с просторными спальнями на втором этаже

D184 Проект загородного дома с просторными спальнями на втором этаже

Сравнить проект В избранное
Технические характеристики
Общие
Материал стен
Газобетон
Общая площадь
357 м²
Жилая площадь
140.7 м²
Приведенная площадь
311.01 м²
Количество жилых комнат/спален
5
Этажи
2 этажа
Гараж
Встроенный гараж
Количество машин
2
Подвал / цокольный этаж
Без подвала
Длина дома
18.3 м
Ширина дома
13.7 м
Кровля
Металлочерепица
Облицовка внешних стен
Облицовочный кирпич
Толщина несущих наружных стен
400 мм
Межэтажные перекрытия
Монолитные
Внутренние не несущие перегородки
Кирпичные
Фундамент
Монолитная ж/бетонная плита
Терраса
Без террасы
Дополнительные
Окна
Окна до пола
Сауна/баня внутри
Нет
Площадь гостиной
41.5 м²
Площадь кухни
10 м²
Количество санузлов
3
Котельная
Есть
Кабинет
Есть
Хозяйская гардеробная
Есть
Кладовая
2
Балкон / лоджия
Балкон
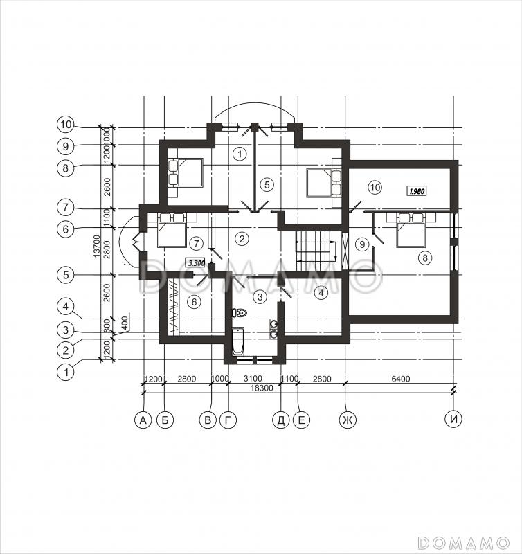
Планы помещений
Описание проекта

Загородная двухэтажная усадьба выполнена в стиле средневековых построек европейского города. Разноуровневая стропильная система и эркерные элементы, высокие арочные окна и колонны дают ее экстерьеру особое благородство, а внутреннее устройство продумано для комфортного размещения современной семьи. Здесь имеются:

  • Просторный гараж на 2 автомобиля,
  • 4 спальни разной площади с балконами для жильцов разного возраста,
  • Совмещенная со столовой и кухней гостиная для организации приемов,
  • Отдельный кабинет и несколько технических помещений.


Категории проекта: с гаражом для постоянного проживания пенобетон современные от 300 до 400 кв.м в европейском стиле с эркером дома в немецком стиле из газобетона с эркером из газобетона в немецком стиле из газобетона готовые из газобетона с гаражом двухэтажные двухэтажные с гаражом с котельной двухэтажные из газобетона из газосиликатных блоков двухэтажные из пеноблоков из пеноблоков с гаражом архитектурные загородные из керамзитобетонных блоков с гардеробной элитные эконом класса с балконом со встроенным гаражом двухэтажные с эркером из блоков двухэтажные из блоков из блоков с гаражом из блоков с эркером Проекты домов из пеноблоков с эркером загородные из газобетона облицованные кирпичом с кабинетом с гаражом под одной крышей с гаражом на 2 машины из пеноблоков загородные с эркером и гаражом с 5 спальнями сложной формы двухэтажные с балконом двухэтажные в современном стиле из газобетона от 300 до 400 кв.м из газобетона в европейском стиле из газобетона современные из газобетона с балконом из газобетона с котельной из газобетона готовые из газобетона с кабинетом из газобетона с изолированной кухней из газобетона большие из газобетона для постоянного проживания двухэтажные из газобетона с гаражом двухэтажные из газобетона без террасы двухэтажные из газобетона с кабинетом двухэтажные из газобетона с котельной двухэтажные из газобетона в европейском стиле двухэтажные из газобетона современные двухэтажные из газобетона большие двухэтажные из газобетона без подвала двухэтажные из газобетона с изолированной кухней двухэтажные из газобетона с эркером двухэтажные из газобетона с большой гостиной современные с гаражом современные с окнами в пол современные без террасы современные большие европейские для постоянного проживания европейские готовые европейские с гаражом европейские с гаражом на 2 машины европейские без подвала европейские без террасы европейские с изолированной кухней европейские с котельной европейские с кабинетом европейские с кладовой европейские с балконом европейские с окнами в пол европейские 300-400 м2 из пеноблоков в современном стиле из пеноблоков в европейском стиле из пеноблоков с окнами до пола из пеноблоков нестандартные из пеноблоков с балконом из пеноблоков для постоянного проживания из пеноблоков готовые из пеноблоков от 300 до 400 м2 из пеноблоков большие из пеноблоков с большой гостиной из пеноблоков с изолированной кухней из клееного бруса без гаража Показать все категории Скрыть категории

Похожие проекты
Состав проекта
Входит в стоимость
Цена, руб. Сроки, дней
Комплект архитектурно-строительных чертежей (АС) Входит в стоимость Готов к отправке
Паспорт рабочего проекта Входит в стоимость Готов к отправке
Разрабатывается отдельно
Цена, руб. Сроки, дней
Адаптация фундамента (изменение типа фундамента) по запросу 14 рабочих дней
Дизайн интерьера (стоимость от 2200руб. за квад.метр площади) по запросу 30 рабочих дней
Внесение изменений в проект по запросу 20 рабочих дней
Фэншуй дома 20 000 ₽ 14 рабочих дней в корзину
Фэншуй участка 15 000 ₽ 14 рабочих дней в корзину
Фэншуй полная консультация дом+участок с выездом на объект 100 000 ₽ 30 рабочих дней в корзину
Опции проекта вы можете заказать в корзине при оформлении заказа
Предложения строителей Выбрать регион
Минимальная
10 574 340 ₽
Стандарт
13 062 420 ₽
Под чистовую отделку
17 105 550 ₽
Показать подробные комплектации
Минимальная
25 907 133 ₽
Стандарт
30 478 980 ₽
Под чистовую отделку
39 622 674 ₽
Показать подробные комплектации
Минимальная
12 340 876 ₽
Стандарт
18 312 268 ₽
Под чистовую отделку
29 060 774 ₽
Показать подробные комплектации
Минимальная
10 885 350 ₽
Стандарт
13 062 420 ₽
Под чистовую отделку
14 617 470 ₽
Показать подробные комплектации
Минимальная
10 038 158 ₽
Стандарт
14 732 543 ₽
Под чистовую отделку
15 761 986 ₽
Показать подробные комплектации
Минимальная
8 272 866 ₽
Стандарт
9 454 704 ₽
Под чистовую отделку
12 409 299 ₽
Показать подробные комплектации
Подбор строительной компании
Не знаете кому доверить строительство дома? Мы можем помочь! Подберем для вас из сотен наших партнеров несколько компаний с лучшем соотношением цена/качество под конкретно ваш запрос.
Подобрать
Посмотреть еще 32 компании Свернуть
Отзывы покупателей
Рейтинг покупателей
0 / 5 5 5 1
На основе 1 оценок покупателей
0%
0%
0%
0%
0%
Отзывы о проекте D184
Отзыв о проекте D184
Чтобы оставить отзыв, пожалуйста авторизуйтесь.
Подбор строительной компании
Не знаете кому доверить строительство дома? Мы можем помочь! Подберем для вас из сотен наших партнеров несколько компаний с лучшем соотношением цена/качество под конкретно ваш запрос.
Подобрать