Главная Проекты домов Проект большого коттеджа для узкого участка

D192 Проект большого коттеджа для узкого участка

Сравнить проект В избранное
Технические характеристики
Общие
Материал стен
Газобетон
Общая площадь
192 м²
Жилая площадь
123.0 м²
Площадь застройки
109.0 м²
Приведенная площадь
189.88 м²
Количество жилых комнат/спален
5
Этажи
2 этажа + мансарда
Гараж
Нет гаража
Подвал / цокольный этаж
Без подвала
Длина дома
17.0 м
Ширина дома
6.2 м
Высота в коньке
10.22 м
Кровля
Натуральная черепица
Облицовка внешних стен
Облицовочный кирпич
Толщина несущих наружных стен
375 мм
Межэтажные перекрытия
Монолитные
Внутренние не несущие перегородки
Газобетонные
Фундамент
Монолитная ж/бетонная плита
Терраса
Без террасы
Дополнительные
Камин
Есть
Сауна/баня внутри
Нет
Площадь гостиной
25.2 м²
Площадь кухни
29.4 м²
Количество санузлов
5
Окно в ванной комнате
Есть
Котельная
Есть
Кабинет
Есть
Постирочная
Есть
Хозяйский санузел
Есть
Хозяйская гардеробная
Есть
Кладовая
2
Дом для узких участков
Есть
Балкон / лоджия
Балкон
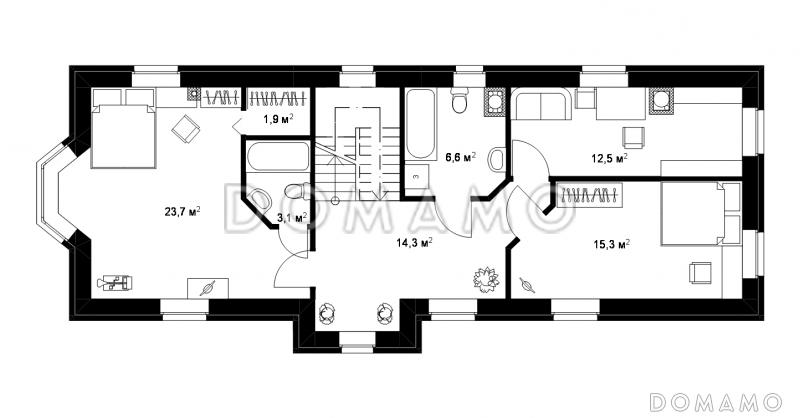
Планы помещений
Фасады
Описание проекта

Проект дома для круглогодичного проживания специально разработан для узких участков шириной от 13 метров. Имеется два полноценных этажа и уютная мансарда, торцевой и входной парадные фасады. На первом этаже отдельно расположены просторная кухня и гостиная с большими окнами, открывающими вид на участок, есть небольшая котельная (для настенного котла) и достаточно просторная кладовая. Эркер в кухне идеально подходит для установки обеденного стола и дополнительного обзора. В доме предусмотрено три санузла — раздельный на первом этаже, совмещенный на втором и отдельный санузел в хозяйской спальне. Последняя имеет и собственный гардероб. В мансарде расположена гостевая спальня с балконом.

Отметим отсутствие несущих внутренних стен, что существенно облегчает перепланировку.

Категории проекта: с мансардой для постоянного проживания пенобетон в классическом стиле для узких участков от 100 до 200 кв.м в европейском стиле с эркером из пеноблоков с мансардой из газобетона с мансардой и эркером из газобетона с эркером из газобетона в немецком стиле из газобетона готовые из газобетона с мансардой двухэтажные двухэтажные с мансардой с котельной двухэтажные из газобетона из газосиликатных блоков двухэтажные из пеноблоков для узкого участка с мансардой до 200 кв.м загородные с четырехскатной крышей с мансардной крышей из керамзитобетонных блоков с камином с гардеробной узкие прямоугольные с балконом с эркером и мансардой двухэтажные с эркером из блоков двухэтажные из блоков из блоков с мансардой из блоков с эркером Проекты домов из пеноблоков с эркером загородные из газобетона без гаража облицованные кирпичом с кабинетом двухэтажные 200 кв м двухэтажные от 150 до 200 кв м недорогие узкие двухэтажные из пеноблоков загородные с 5 спальнями двухэтажные с камином двухэтажные с балконом двухэтажные в классическом стиле двухэтажные эконом класса двухэтажные без гаража с мансардой с котельной с мансардой с камином с мансардой с четырехскатной крышей с мансардой в классическом стиле с мансардой в европейском стиле с мансардой с балконом с мансардой прямоугольные с мансардой готовые с мансардой для постоянного проживания с мансардой узкие с мансардой до 200 кв.м из газобетона до 200 кв.м из газобетона от 100 до 200 кв.м из газобетона с четырехскатной крышей из газобетона в европейском стиле из газобетона в классическом стиле из газобетона с балконом из газобетона с котельной из газобетона прямоугольные из газобетона готовые из газобетона с камином из газобетона с большой кухней из газобетона с кабинетом из газобетона с изолированной кухней из газобетона для узких участков из газобетона узкие из газобетона недорогие из газобетона для постоянного проживания двухэтажные из газобетона с четырехскатной крышей из газобетона с мансардой в европейском стиле из газобетона с мансардой в классическом стиле из газобетона с мансардой с балконом из газобетона с мансардой с камином из газобетона с мансардой для постоянного проживания из газобетона с мансардой готовые из газобетона с мансардой с четырехскатной крышей из газобетона с мансардой с большой кухней из газобетона с мансардой узкие из газобетона с мансардой с изолированной кухней из газобетона с мансардой с гардеробной из газобетона с мансардой прямоугольные из газобетона с мансардой с прачечной классические для постоянного проживания классические без гаража классические без террасы классические готовые классические для узких участков классические недорогие классические с котельной классические с большой кухней классические с изолированной кухней классические без подвала классические с прачечной классические с балконом классические прямоугольные классические с камином классические с четырехскатной крышей классические с мансардной крышей классические с кабинетом европейские для постоянного проживания европейские недорогие европейские готовые европейские без подвала европейские без террасы европейские с изолированной кухней европейские с котельной европейские с кабинетом европейские с прачечной европейские с кладовой европейские с балконом европейские прямоугольные европейские с четырехскатной крышей европейские с мансардной крышей европейские с камином европейские для узких участков европейские 100-200 м2 из пеноблоков в европейском стиле из пеноблоков в классическом стиле из пеноблоков с четырехскатной крышей из пеноблоков с мансардной крышей из пеноблоков прямоугольные из пеноблоков с балконом из пеноблоков для постоянного проживания из пеноблоков недорогие из пеноблоков для узких участков из пеноблоков готовые из пеноблоков с камином из пеноблоков от 100 до 200 м2 из пеноблоков узкие из пеноблоков с большой кухней из пеноблоков с изолированной кухней недорогие с мансардой недорогие без гаража недорогие без террасы недорогие для постоянного проживания недорогие с четырехскатной крышей недорогие с мансардной крышей недорогие с изолированной кухней недорогие без бани недорогие с кабинетом недорогие с котельной недорогие с балконом недорогие с камином недорогие для узких участков недорогие прямоугольные недорогие от 100 до 200 м2 из клееного бруса без гаража Показать все категории Скрыть категории

Похожие проекты
Состав проекта
Входит в стоимость
Цена, руб. Сроки, дней
Комплект архитектурно-строительных чертежей (АС) Входит в стоимость Готов к отправке
Готово к продаже
Цена, руб. Сроки, дней
Паспорт рабочего проекта 5 000 ₽ 3 рабочих дня в корзину
Дополнительная копия проекта формата А3 4 000 ₽ Готов к отправке в корзину
Электронная копия проекта (скан распечатанной версии) 4 000 ₽ 3 рабочих дня в корзину
Разрабатывается отдельно
Цена, руб. Сроки, дней
Адаптация фундамента (изменение типа фундамента) по запросу 14 рабочих дней
Дизайн интерьера (стоимость от 2200руб. за квад.метр площади) по запросу 30 рабочих дней
Внесение изменений в проект по запросу 20 рабочих дней
Инженерные разделы: ВК + ОВ + ЭО 40 000 ₽ 20 рабочих дней в корзину
Зеркалирование проекта (для которого нет зеркальной версии) 8 000 ₽ 5 рабочих дней в корзину
Разработка Генплана участка, в масштабе 1:250 7 500 ₽ 5 рабочих дней в корзину
Фэншуй дома 20 000 ₽ 14 рабочих дней в корзину
Фэншуй участка 15 000 ₽ 14 рабочих дней в корзину
Фэншуй полная консультация дом+участок с выездом на объект 100 000 ₽ 30 рабочих дней в корзину
Опции проекта вы можете заказать в корзине при оформлении заказа
Предложения строителей Выбрать регион
Минимальная
6 455 920 ₽
Стандарт
7 974 960 ₽
Под чистовую отделку
10 443 400 ₽
Показать подробные комплектации
Минимальная
16 139 800 ₽
Стандарт
18 988 000 ₽
Под чистовую отделку
24 684 400 ₽
Показать подробные комплектации
Минимальная
8 593 968 ₽
Стандарт
12 752 340 ₽
Под чистовую отделку
20 237 410 ₽
Показать подробные комплектации
Минимальная
6 645 800 ₽
Стандарт
7 974 960 ₽
Под чистовую отделку
8 924 360 ₽
Показать подробные комплектации
Минимальная
6 128 566 ₽
Стандарт
8 994 615 ₽
Под чистовую отделку
9 623 118 ₽
Показать подробные комплектации
Минимальная
5 582 472 ₽
Стандарт
6 379 968 ₽
Под чистовую отделку
8 373 708 ₽
Показать подробные комплектации
Подбор строительной компании
Не знаете кому доверить строительство дома? Мы можем помочь! Подберем для вас из сотен наших партнеров несколько компаний с лучшем соотношением цена/качество под конкретно ваш запрос.
Подобрать
Посмотреть еще 32 компании Свернуть
Отзывы покупателей
Рейтинг покупателей
0 / 5 5 5 1
На основе 1 оценок покупателей
0%
0%
0%
0%
0%
Отзывы о проекте D192
Отзыв о проекте D192
Чтобы оставить отзыв, пожалуйста авторизуйтесь.
Подбор строительной компании
Не знаете кому доверить строительство дома? Мы можем помочь! Подберем для вас из сотен наших партнеров несколько компаний с лучшем соотношением цена/качество под конкретно ваш запрос.
Подобрать