Главная Проекты домов Проект дома с большой детской на мансардном этаже

D2262 Проект дома с большой детской на мансардном этаже

Сравнить проект В избранное
Проект дома с большой детской на мансардном этаже / 1
Проект дома с большой детской на мансардном этаже / 1
D2262
200 м²
Домокомплект
Артикул проекта: ПДБ-18
Компания: Element-House
Стоимость домокомплекта
1 877 000 ₽
Заказать подробную смету
+7 (909) XXX-XX-XX Показать телефон
Задать вопрос по проекту
Технические характеристики
Общие
Материал стен
Клееный брус
Общая площадь
200 м²
Приведенная площадь
160.1 м²
Количество жилых комнат/спален
4
Этажи
1 этаж + мансарда
Гараж
Нет гаража
Подвал / цокольный этаж
Без подвала
Длина дома
9.7 м
Ширина дома
8.7 м
Облицовка внешних стен
Без облицовки
Толщина несущих наружных стен
200 мм
Межэтажные перекрытия
По деревянным балкам
Внутренние не несущие перегородки
Каркасно-обшивные
Терраса
Терраса крытая
Дополнительные
Мансардные окна
Есть
Сауна/баня внутри
Нет
Площадь гостиной
15 м²
Площадь кухни
15 м²
Количество санузлов
2
Окно в ванной комнате
Есть
Котельная
Есть
Постирочная
Есть
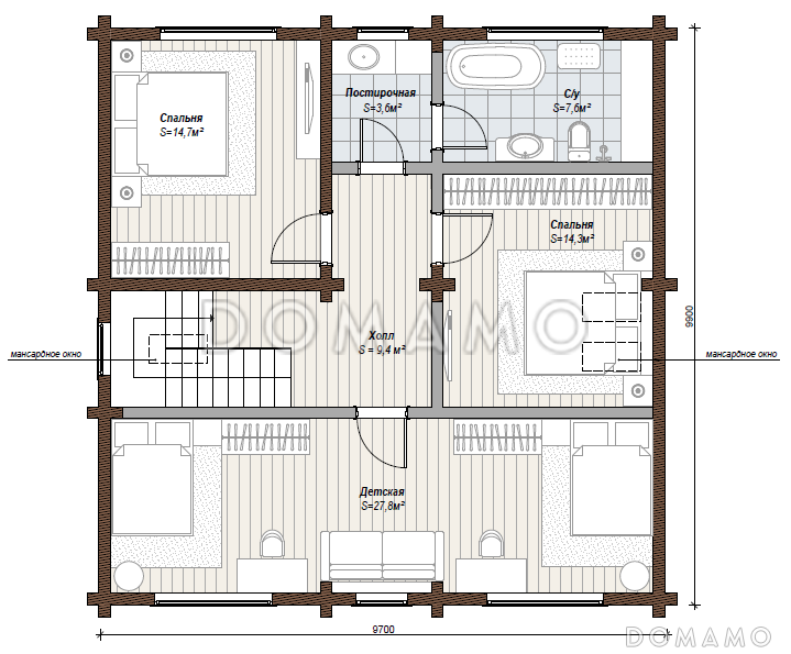
Планы помещений
Описание проекта
Компания Domamo предлагает проект дома с большой детской на мансардном этаже D2262. Общая площадь - 200 м2, размер - 9.7х8.7 м. Фундамент - , кровля - , внешняя отделка - без облицовки. Для заказа проекта или внесения изменений свяжитесь с нами с помощью форм обратной связи на сайте или по телефону +7 (343) 357-92-70.
Категории проекта: с мансардой деревянные для постоянного проживания из клееного бруса в английском стиле в скандинавском стиле от 100 до 200 кв.м от 200 до 300 кв.м в европейском стиле с террасой из бруса в стиле замка в финском стиле одноэтажные с мансардой одноэтажные с котельной с котельной одноэтажные деревянные до 200 кв.м с двухскатной крышей 6х10 9х10 9х12 загородные прямоугольные с барбекю Проекты деревянных домов с мансардой Проекты деревянных домов с террасой Проекты домов из клееного бруса с мансардой Проекты одноэтажных домов из клееного бруса Проекты одноэтажных домов с террасой Типовые проекты загородных одноэтажных домов без гаража одноэтажные без гаража одноэтажные финские одноэтажные с 4 спальнями с мансардой и террасой полутораэтажные деревянные для круглогодичного проживания с 4 спальнями 9 на 12 с мансардой одноэтажные до 200 кв м от 200 до 250 м одноэтажные с мансардными окнами с мансардой с котельной с мансардой с двухскатной крышей с мансардой скандинавские с мансардой с мансардными окнами с мансардой прямоугольные с мансардой для постоянного проживания с мансардой до 200 кв.м одноэтажные с мансардой из клееного бруса одноэтажные с мансардой для постоянного проживания одноэтажные с мансардой с большой кухней одноэтажные с мансардой скандинавские скандинавские для постоянного проживания скандинавские без гаража скандинавские с террасой скандинавские с большой кухней скандинавские прямоугольные скандинавские от 100 до 200 м2 скандинавские 9х10 скандинавские от 200 до 300 м2 скандинавские с двухскатной крышей скандинавские с котельной деревянные в скандинавском стиле деревянные прямоугольные деревянные без гаража деревянные домокомплекты деревянные без подвала деревянные с 4 спальнями деревянные с большой кухней деревянные от 100 до 200 м2 деревянные от 200 до 300 м2 из клееного бруса домокомплект из клееного бруса для постоянного проживания из клееного бруса с окном в ванной комнате из клееного бруса прямоугольный из клееного бруса с мансардными окнами из клееного бруса в скандинавском стиле из клееного бруса с двухскатной крышей из клееного бруса с каркасно-обшивными перегородками из клееного бруса без облицовки из клееного бруса с перекрытиями по деревянным балкам из клееного бруса с котельной из клееного бруса с выходом на терассу из гостиной из клееного бруса с выходом на терассу из кухни из клееного бруса с крытой терассой из клееного бруса без подвала из клееного бруса без гаража одноэтажные из клееного бруса с мансардой из клееного бруса от 100 до 200 м2 из клееного бруса от 200 до 300 м2 Показать все категории Скрыть категории

Похожие проекты
Состав проекта
Входит в стоимость
Цена, руб. Сроки, дней
Комплект архитектурно-строительных чертежей (АС) Входит в стоимость Готов к отправке
Разрабатывается отдельно
Цена, руб. Сроки, дней
Адаптация фундамента (изменение типа фундамента) по запросу 14 рабочих дней
Дизайн интерьера (стоимость от 2200руб. за квад.метр площади) по запросу 30 рабочих дней
Внесение изменений в проект по запросу 20 рабочих дней
Фэншуй дома 20 000 ₽ 14 рабочих дней в корзину
Фэншуй участка 15 000 ₽ 14 рабочих дней в корзину
Фэншуй полная консультация дом+участок с выездом на объект 100 000 ₽ 30 рабочих дней в корзину
Опции проекта вы можете заказать в корзине при оформлении заказа
Отзывы покупателей
Рейтинг покупателей
0 / 5 5 5 1
На основе 1 оценок покупателей
0%
0%
0%
0%
0%
Отзывы о проекте D2262
Отзыв о проекте D2262
Чтобы оставить отзыв, пожалуйста авторизуйтесь.
Подбор строительной компании
Не знаете кому доверить строительство дома? Мы можем помочь! Подберем для вас из сотен наших партнеров несколько компаний с лучшем соотношением цена/качество под конкретно ваш запрос.
Подобрать