D2612 BASIS 120

Сравнить проект В избранное
BASIS 120 / 1
BASIS 120 / 2
BASIS 120 / 3
BASIS 120 / 1
BASIS 120 / 2
BASIS 120 / 3
D2612
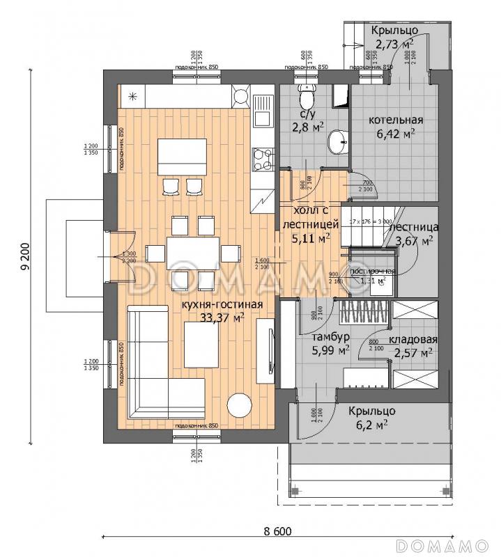
122 м²
Проект с подрядом
Компания: Альянс-Нева
Стоимость строительства
3 354 488 ₽
Заказать подробную смету
+7 (812) XXX-XX-XX Показать телефон
Задать вопрос по проекту
Технические характеристики
Общие
Материал стен
Газобетон
,
Каркас
Общая площадь
122 м²
Жилая площадь
121.76 м²
Площадь застройки
158.24 м²
Приведенная площадь
122.679 м²
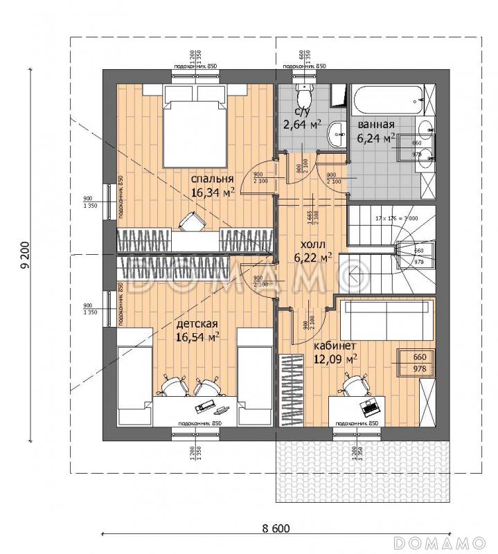
Количество жилых комнат/спален
3
Этажи
2 этажа
Гараж
Нет гаража
Количество машин
нет
Подвал / цокольный этаж
Без подвала
Длина дома
9.2 м
Ширина дома
8.6 м
Кровля
Металлочерепица
Облицовка внешних стен
Деревянная вагонка
Межэтажные перекрытия
Монолитные
,
По деревянным балкам
Внутренние не несущие перегородки
Газобетонные
,
Каркасно-обшивные
Фундамент
Монолитная ж/бетонная плита
Терраса
Терраса крытая
Дополнительные
Площадь гостиной
33.37 м²
Количество санузлов
3
Котельная
Есть
Кабинет
Есть
Кладовая
1
Планы помещений
Описание проекта
Компания Domamo предлагает проект двухэтажного дома Basis 120 D2612. Общая площадь - 122 м2, размер - 9.2х8.6 м. Фундамент - монолитная ж/бетонная плита, кровля - металлочерепица, внешняя отделка - деревянная вагонка. Для заказа проекта или внесения изменений свяжитесь с нами с помощью форм обратной связи на сайте или по телефону +7 (800) 200-28-83.
Категории проекта: для постоянного проживания пенобетон каркасные от 100 до 200 кв.м с террасой из газобетона двухэтажные с котельной двухэтажные из газобетона из газосиликатных блоков двухэтажные из пеноблоков 9х9 до 150 кв.м до 200 кв.м 6х10 8х9 9х10 9х12 загородные с четырехскатной крышей из керамзитобетонных блоков из газобетона с террасой из блоков двухэтажные из блоков из пеноблоков с террасой загородные из газобетона Проекты двухэтажных каркасных домов Проекты каркасных домов с террасой Проекты двухэтажных домов с террасой Проекты двухэтажных домов с верандой без гаража с кабинетом Проекты домов с тремя спальнями двухэтажные 9 на 9 каркасные для постоянного проживания двухэтажные 8 на 9 двухэтажные до 150 кв м двухэтажные 200 кв м до 140 кв м из пеноблоков 9 на 9 до 130 кв м двухэтажные до 130 кв.м из газобетона 9x9 из пеноблоков загородные сложной формы двухэтажные до 180 кв.м двухэтажные с 3 спальнями двухэтажные до 150 кв.м с террасой двухэтажные до 150 кв.м с 3 спальнями двухэтажные без гаража без гаража с подрядом с котельной с тремя спальнями из газобетона до 150 кв.м из газобетона до 200 кв.м из газобетона от 100 до 200 кв.м из газобетона с четырехскатной крышей из газобетона с котельной из газобетона с подрядом из газобетона с тремя спальнями из газобетона с кабинетом из газобетона для постоянного проживания двухэтажные из газобетона без гаража двухэтажные из газобетона с террасой двухэтажные из газобетона с кабинетом двухэтажные из газобетона с котельной двухэтажные из газобетона с четырехскатной крышей двухэтажные из газобетона до 150 кв. м двухэтажные из газобетона до 200 кв. м двухэтажные из газобетона без подвала двухэтажные из газобетона с 3 спальнями до 150 кв.м каркасные до 150 кв.м для постоянного проживания до 150 кв.м без гаража до 150 кв.м с четырехскатной крышей до 150 кв.м с подрядом до 150 кв.м с котельной до 150 кв.м с кабинетом до 150 кв.м с террасой до 150 кв.м без подвала до 150 кв.м с 3 спальнями до 150 кв.м с большой гостиной из пеноблоков с четырехскатной крышей из пеноблоков нестандартные из пеноблоков для постоянного проживания из пеноблоков с подрядом из пеноблоков до 150 м кв. из пеноблоков от 100 до 200 м2 из пеноблоков с 3 спальнями из клееного бруса без гаража Проекты домов с подрядом Показать все категории Скрыть категории

Похожие проекты
Состав проекта
Входит в стоимость
Цена, руб. Сроки, дней
Комплект архитектурно-строительных чертежей (АС) Входит в стоимость Готов к отправке
Разрабатывается отдельно
Цена, руб. Сроки, дней
Адаптация фундамента (изменение типа фундамента) по запросу 14 рабочих дней
Дизайн интерьера (стоимость от 2200руб. за квад.метр площади) по запросу 30 рабочих дней
Внесение изменений в проект по запросу 20 рабочих дней
Фэншуй дома 20 000 ₽ 14 рабочих дней в корзину
Фэншуй участка 15 000 ₽ 14 рабочих дней в корзину
Фэншуй полная консультация дом+участок с выездом на объект 100 000 ₽ 30 рабочих дней в корзину
Опции проекта вы можете заказать в корзине при оформлении заказа
Комплектации
Сравнить 0 комплектаций
Свернуть все
Развернуть все
Минимальная
3 354 488 ₽
Сравнить
Стандарт
3 841 528 ₽
Сравнить
Под чистовую отделку
4 572 088 ₽
Сравнить
Кровля
Кровельное покрытие
м/черепица СуперМонтеррей 0.45мм
м/черепица СуперМонтеррей 0.5мм
м/черепица СуперМонтеррей 0.5мм
Обрешетка
Доска обрезная 25х100 мм ест./вл. хв/п 1-3 сорт
Доска обрезная 25х100 мм ест./вл. хв/п 1-3 сорт
Доска обрезная 25х100 мм ест./вл. хв/п 1-3 сорт
Контробрешетка
Брусок обрезной 50х50 мм ест./вл. хв/п 1-3 сорт
Брусок обрезной 50х50 мм ест./вл. хв/п 1-3 сорт
Брусок обрезной 50х50 мм ест./вл. хв/п 1-3 сорт
Противоконденсатная (ветро-гидроизоляционная) пленка
Ветро-влагозащита для кровли Технониколь
Ветро-влагозащита для кровли Технониколь
Ветро-влагозащита для кровли Технониколь
Стропильная система
Доска обрезная 50х200 мм ест./вл. хв/п 1-3 сорт
Доска обрезная 50х200 мм ест./вл. хв/п 1-3 сорт
Доска обрезная 50х200 мм ест./вл. хв/п 1-3 сорт
Утепление чердачного перекрытия и стропильной системы
Подшивка свесов кровли
Подшивка потолков террас и лоджий
Водосточная система
Система снегозадержания
Молниезащита
Фундамент
Сваи ж/бетонные
Сваи стальные винтовые
Лента ж/бетонная монолитная мелкозаглубленная
Ж/б монолитная плита 250 мм
Ж/б монолитная плита 250 мм + ростверк 300
Ж/б монолитная плита 250 мм + ростверк 300
Лента ж/бетонная монолитная на глубину промерзания
Лента ж/бетонная сборная (из ФБС) на глубину промерзания
Плита ж/бетонная монолитная мелкозаглубленная
УШП (Утепленная Шведская Плита)
Бетоннная отмостка по периметру дома
Дренажная система по периметру дома
Ливневая система
Облицовка цоколя фундамента
Система контурного заземления
Стены
Несущая часть стены
Газобетон Aeroc D400/D500 300/250 мм
Газобетон Aeroc D400/D500 400/375/300 мм
Газобетон Aeroc D400/D500 400/375/300 мм
Фасадная отделка
штукатурка типа короед
Ветрозащита
Утепление стены
Пароизоляция
Внутренняя обшивка/штукатурка со стороны помещения
Пол первого этажа
Несущая часть перекрытия
Теплоизоляция цокольного перекрытия
Стяжка/подготовка под чистый пол
Перекрытия над первым и последующими этажами
Несущая часть перекрытия
Ж/б плита 180 мм
Ж/б плита 180 мм
Ж/б плита 180 мм
Звукоизоляция/теплоизоляция в перекрытии
Укладка утеплителя ЭППС 50 мм
Стяжка/подготовка под чистый пол
Заливка чистовой стяжки 70 мм
Отделка потолка нижележащего этажа
Окна и внешние двери
Окна
Металлопластиковые окна из ПВХ профиля IVAPER 62мм с двухк
Металлопластиковые окна из ПВХ профиля IVAPER 70мм с двухк
Металлопластиковые окна из ПВХ профиля IVAPER 70мм с двухк
Оконные наличники
Откосы в помещении
Отливы снаружи
Металлические отливы
Подоконники
Входные двери
Дверь металлическая техническая (временная)
Дверь металлическая техническая (временная)
Дверь металлическая техническая (временная)
Внутренние конструкции
Внутренние несущие стены
Газобетон D400/D500 300/250 мм
Газобетон D400/D500 300/250 мм
Газобетон D400/D500 300/250 мм
Внутренние ненесущие стены
Газобетон D400/D500 150 мм
Газобетон D400/D500 150 мм
Звукоизоляция внутренних стен/перегородок
Межэтажная строительная (черновая) лестница
Техническая лестница
Техническая лестница
Межэтажная постоянная (чистовая) лестница
Монолитная лестница
Межкомнатные двери
Высота потолков 1 этажа
Черновая - 2,75 м Чистовая - 2.5 м
Черновая - 3,25 м Чистовая - 3,0 м
Черновая - 3,25 м Чистовая - 3,0 м
Высота потолков 2 этажа
Черновая - 2,75 м Чистовая - 2.5 м
Черновая - 3,0 м Чистовая - 2,8 м
Черновая - 3,0 м Чистовая - 2,8 м
Настилы полов и ограждения крылец, террас, балконов
Гидроизоляция полов балконов
Инженерное оснащение
Жидкостной теплый пол
Трубы из сшитого полиэтилена 16 мм
Электрический теплый пол
Система вентиляции
Вент каналы прокладываются внутри стен
Вент каналы прокладываются внутри стен
Только вводы воды, электричества, выводы канализации
Электроразводка и электрощит
Разводка хол. и гор. водоснабжения (ХВС и ГВС)
Разводка батарей и/или системы теплого пола. Без оборудования котельной.
Иное инженерное оснащение
Подготовка участка для строительства
Устройство временного щита электроснабжения
Устройство въезда на участок
Дорога на участке до пятна застройки
Подъем пятна застройки
Подготовка пятна застройки для фундаментных работ
Перемещение или вывоз грунта из котлована фундамента
Обеспечение строительного процесса
Доставка стройматериалов
Генератор для обеспечения электричеством
Уборка и вывоз строительного мусора
Организация проживания рабочих (бытовка)
Биотуалет для рабочих
Гарантия на все выполненные работы
Гарантия
5 лет
5 лет
5 лет
Отзывы покупателей
Рейтинг покупателей
0 / 5 5 5 1
На основе 1 оценок покупателей
0%
0%
0%
0%
0%
Отзывы о проекте D2612
Отзыв о проекте D2612
Чтобы оставить отзыв, пожалуйста авторизуйтесь.
Подбор строительной компании
Не знаете кому доверить строительство дома? Мы можем помочь! Подберем для вас из сотен наших партнеров несколько компаний с лучшем соотношением цена/качество под конкретно ваш запрос.
Подобрать