Главная Проекты домов Проект дома в английском стиле

D2690 Проект дома в английском стиле

Сравнить проект В избранное
Технические характеристики
Общие
Материал стен
Газобетон
Общая площадь
143 м²
Жилая площадь
67.5 м²
Площадь застройки
108.2 м²
Приведенная площадь
133.4 м²
Количество жилых комнат/спален
3
Этажи
1 этаж + мансарда
Гараж
Нет гаража
Подвал / цокольный этаж
Без подвала
Длина дома
10.9 м
Ширина дома
10.6 м
Кровля
Гибкая черепица
Облицовка внешних стен
Облицовка камнем
,
Облицовочный кирпич
Толщина несущих наружных стен
400 мм
Межэтажные перекрытия
Монолитные
,
По деревянным балкам
Внутренние не несущие перегородки
Каркасно-обшивные
Фундамент
Ленточный монолитный
Терраса
Без террасы
Дополнительные
Окна
Окна до пола
,
Окна с французским балконом
Сауна/баня внутри
Нет
Площадь гостиной
1.8 м²
Площадь кухни
5.9 м²
Количество санузлов
2
Окно в ванной комнате
Есть
Котельная
Есть
Кладовая
2
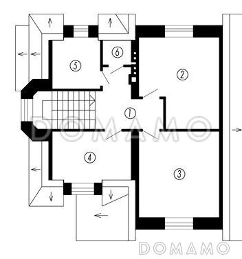
Планы помещений
Описание проекта

Проект особняка, выполненного в английском стиле, который станет прекрасным местом для жизни ценителей старинной архитектуры. Экстерьер украшают традиционные элементы викторианского стиля: множество башенок с небольшими шпилями, эркеры и арочные окна. 

На первом этаже дома располагается просторная гостиная, откуда можно пройти в кухню-столовую, также гардеробная и технические помещения. Второй же этаж полностью отведен под три больших спальных комнаты.

Преимущества и особенности:

  • Наличие в доме котельной позволяет проживать в нем круглый год.

Категории проекта: с мансардой для постоянного проживания пенобетон в английском стиле от 100 до 200 кв.м из пеноблоков с мансардой из газобетона в английском стиле из газобетона готовые из газобетона с мансардой одноэтажные с мансардой одноэтажные до 150 кв. м. одноэтажные с котельной с котельной одноэтажные из газобетона из газосиликатных блоков до 150 кв.м до 200 кв.м 9х12 загородные из керамзитобетонных блоков 11х11 10х12 из блоков одноэтажные из блоков из блоков с мансардой загородные из газобетона Типовые проекты загородных одноэтажных домов без гаража одноэтажные без гаража облицованные кирпичом одноэтажные с тремя спальнями Проекты домов с тремя спальнями одноэтажных из керамзитобетонных блоков с мансардой до 150 кв м полутораэтажные 11 на 11 с мансардой каменные 9 на 12 с мансардой одноэтажные до 200 кв м 10x12 с мансардой из пеноблоков загородные сложной формы с мансардой с котельной с мансардой в английском стиле с мансардой с окнами до пола с мансардой сложной формы с мансардой готовые с мансардой для постоянного проживания с мансардой до 200 кв.м с мансардой от 100 до 150 кв.м одноэтажные из газобетона до 150 кв. м одноэтажные из газобетона с мансардой одноэтажные из газобетона с 3 спальнями из газобетона до 150 кв.м из газобетона до 200 кв.м из газобетона от 100 до 200 кв.м из газобетона с котельной из газобетона готовые из газобетона с тремя спальнями из газобетона 11х11 из газобетона для постоянного проживания двухэтажные из газобетона без гаража двухэтажные из газобетона без террасы двухэтажные из газобетона с котельной двухэтажные из газобетона в английском стиле двухэтажные из газобетона до 150 кв. м двухэтажные из газобетона до 200 кв. м двухэтажные из газобетона без подвала двухэтажные из газобетона с 3 спальнями из газобетона с мансардой для постоянного проживания из газобетона с мансардой готовые из газобетона с мансардой с 3 спальнями одноэтажные с мансардой для постоянного проживания до 150 кв.м для постоянного проживания до 150 кв.м без гаража до 150 кв.м с окнами до пола до 150 кв.м готовые до 150 кв.м с котельной до 150 кв.м без бани до 150 кв.м без террасы до 150 кв.м без подвала до 150 кв.м с 3 спальнями из пеноблоков в английском стиле из пеноблоков с окнами до пола из пеноблоков нестандартные из пеноблоков для постоянного проживания из пеноблоков готовые из пеноблоков 11х11 из пеноблоков до 150 м кв. из пеноблоков от 100 до 200 м2 из пеноблоков с 3 спальнями из клееного бруса без гаража Показать все категории Скрыть категории

Похожие проекты
Состав проекта
Входит в стоимость
Цена, руб. Сроки, дней
Эскизный проект (Раздел "АР") Входит в стоимость Готов к отправке
Комплект архитектурно-строительных чертежей (АС) Входит в стоимость Готов к отправке
Готово к продаже
Цена, руб. Сроки, дней
Зеркальная версия проекта 5 000 ₽ Готов к отправке в корзину
Паспорт рабочего проекта 2 500 ₽ Готов к отправке в корзину
Разрабатывается отдельно
Цена, руб. Сроки, дней
Адаптация фундамента (изменение типа фундамента) по запросу 14 рабочих дней
Дизайн интерьера (стоимость от 2200руб. за квад.метр площади) по запросу 30 рабочих дней
Внесение изменений в проект по запросу 20 рабочих дней
Фэншуй дома 20 000 ₽ 14 рабочих дней в корзину
Фэншуй участка 15 000 ₽ 14 рабочих дней в корзину
Фэншуй полная консультация дом+участок с выездом на объект 100 000 ₽ 30 рабочих дней в корзину
Опции проекта вы можете заказать в корзине при оформлении заказа
Предложения строителей Выбрать регион
Минимальная
4 535 600 ₽
Стандарт
5 602 800 ₽
Под чистовую отделку
7 337 000 ₽
Показать подробные комплектации
Минимальная
13 606 800 ₽
Стандарт
16 008 000 ₽
Под чистовую отделку
20 810 400 ₽
Показать подробные комплектации
Минимальная
6 823 410 ₽
Стандарт
10 125 060 ₽
Под чистовую отделку
16 068 030 ₽
Показать подробные комплектации
Минимальная
4 669 000 ₽
Стандарт
5 602 800 ₽
Под чистовую отделку
6 269 800 ₽
Показать подробные комплектации
Минимальная
4 305 618 ₽
Стандарт
6 319 158 ₽
Под чистовую отделку
6 760 712 ₽
Показать подробные комплектации
Минимальная
4 669 000 ₽
Стандарт
5 336 000 ₽
Под чистовую отделку
7 003 500 ₽
Показать подробные комплектации
Подбор строительной компании
Не знаете кому доверить строительство дома? Мы можем помочь! Подберем для вас из сотен наших партнеров несколько компаний с лучшем соотношением цена/качество под конкретно ваш запрос.
Подобрать
Посмотреть еще 32 компании Свернуть
Отзывы покупателей
Рейтинг покупателей
0 / 5 5 5 1
На основе 1 оценок покупателей
0%
0%
0%
0%
0%
Отзывы о проекте D2690
Отзыв о проекте D2690
Чтобы оставить отзыв, пожалуйста авторизуйтесь.
Подбор строительной компании
Не знаете кому доверить строительство дома? Мы можем помочь! Подберем для вас из сотен наших партнеров несколько компаний с лучшем соотношением цена/качество под конкретно ваш запрос.
Подобрать