Главная Проекты домов Проект большого двухэтажного дома из кирпича с цокольным этажом и подземным гаражом

D3253 Проект большого двухэтажного дома из кирпича с цокольным этажом и подземным гаражом

Сравнить проект В избранное
Технические характеристики
Общие
Материал стен
Кирпич
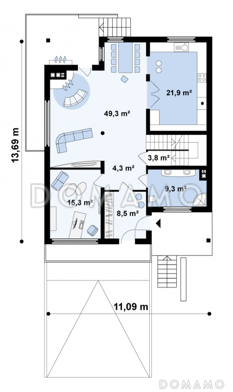
Общая площадь
347 м²
Площадь застройки
136.7 м²
Приведенная площадь
362.25 м²
Количество жилых комнат/спален
5
Этажи
2 этажа
Гараж
Подземный гараж
Количество машин
2
Подвал / цокольный этаж
С окнами
Длина дома
13.69 м
Ширина дома
11.09 м
Высота в коньке
9.0 м
Кровля
Металлочерепица
Облицовка внешних стен
Мокрая штукатурка
Толщина несущих наружных стен
380 мм
Межэтажные перекрытия
Монолитные
Внутренние не несущие перегородки
Кирпичные
Фундамент
Ленточный заглубленный из ФБС
Терраса
Терраса крытая
Дополнительные
Окна
Окна до пола
Камин
Есть
Сауна/баня внутри
Нет
Площадь гостиной
49.3 м²
Площадь кухни
21.9 м²
Количество санузлов
2
Окно в ванной комнате
Есть
Котельная
Есть
Кабинет
Есть
Постирочная
Есть
Спортзал / детский / игровой зал
Есть
Кладовая
2
Балкон / лоджия
Балкон
Длина участка
25.29 м
Ширина участка
18.09 м
Планы помещений
Фасады
Описание проекта
Компания Domamo предлагает проект большого двухэтажного дома из кирпича с цокольным этажом и подземным гаражом D3253. Общая площадь - 347 м2, размер - 13.69х11.09 м. Фундамент - ленточный заглубленный из фбс, кровля - металлочерепица, внешняя отделка - мокрая штукатурка. Для заказа проекта или внесения изменений свяжитесь с нами с помощью форм обратной связи на сайте или по телефону +7 (343) 357-92-70.
Категории проекта: с гаражом для постоянного проживания кирпич в классическом стиле от 300 до 400 кв.м кирпичные дома хай-тек классические кирпичные дома дома из кирпича с гаражом с террасой из кирпича с террасой готовые с цокольным этажом загородные из кирпича двухэтажные из кирпича двухэтажные кирпичные с гаражом двухэтажные двухэтажные с гаражом кирпичные с цокольным этажом кирпичные с котельной с котельной с двухскатной крышей загородные с камином прямоугольные с балконом с барбекю двухэтажные с цокольным этажом Проекты двухэтажных домов с террасой Проекты двухэтажных домов с верандой с террасой и камином с кабинетом с гаражом под одной крышей с гаражом на 2 машины с гаражом и террасой двухэтажные с террасой и гаражом с подземным гаражом с балконом и террасой с 5 спальнями двухэтажные с камином двухэтажные с двускатной крышей двухэтажные с балконом двухэтажные с балконом и террасой двухэтажные в классическом стиле классические для постоянного проживания классические с гаражом классические с гаражом на 2 машины классические с окнами в пол классические с террасой классические готовые классические элитные классические с котельной классические с большой гостиной классические с большой кухней классические с подвалом классические с 2 санузлами классические с прачечной классические с балконом классические прямоугольные классические с камином классические с двухскатной крышей классические с кабинетом из клееного бруса без гаража Показать все категории Скрыть категории

Похожие проекты
Состав проекта
Входит в стоимость
Цена, руб. Сроки, дней
Комплект архитектурно-строительных чертежей (АС) Входит в стоимость 33 рабочих дня
Готово к продаже
Цена, руб. Сроки, дней
Паспорт рабочего проекта 8 000 ₽ 5 рабочих дней в корзину
Дополнительная копия проекта формата А3 6 500 ₽ 5 рабочих дней в корзину
Электронная копия проекта (скан распечатанной версии) 4 000 ₽ 3 рабочих дня в корзину
Разрабатывается отдельно
Цена, руб. Сроки, дней
Адаптация фундамента (изменение типа фундамента) по запросу 14 рабочих дней
Дизайн интерьера (стоимость от 2200руб. за квад.метр площади) по запросу 30 рабочих дней
Внесение изменений в проект по запросу 20 рабочих дней
Инженерные разделы: ВК + ОВ + ЭО 35 880 ₽ 33 рабочих дня в корзину
Разработка Генплана участка, в масштабе 1:250 7 500 ₽ 15 рабочих дней в корзину
Фэншуй дома 20 000 ₽ 14 рабочих дней в корзину
Фэншуй участка 15 000 ₽ 14 рабочих дней в корзину
Фэншуй полная консультация дом+участок с выездом на объект 100 000 ₽ 30 рабочих дней в корзину
Опции проекта вы можете заказать в корзине при оформлении заказа
Предложения строителей Выбрать регион
Минимальная
12 678 750 ₽
Стандарт
15 576 750 ₽
Под чистовую отделку
20 286 000 ₽
Показать подробные комплектации
Минимальная
29 559 600 ₽
Стандарт
34 776 000 ₽
Под чистовую отделку
45 208 800 ₽
Показать подробные комплектации
Минимальная
14 258 160 ₽
Стандарт
20 941 672 ₽
Под чистовую отделку
32 971 995 ₽
Показать подробные комплектации
Минимальная
13 063 821 ₽
Стандарт
15 000 410 ₽
Под чистовую отделку
19 206 784 ₽
Показать подробные комплектации
Минимальная
6 089 820 ₽
Стандарт
7 541 284 ₽
Под чистовую отделку
9 076 862 ₽
Показать подробные комплектации
Подбор строительной компании
Не знаете кому доверить строительство дома? Мы можем помочь! Подберем для вас из сотен наших партнеров несколько компаний с лучшем соотношением цена/качество под конкретно ваш запрос.
Подобрать
Посмотреть еще 20 компаний Свернуть
Отзывы покупателей
Рейтинг покупателей
0 / 5 5 5 1
На основе 1 оценок покупателей
0%
0%
0%
0%
0%
Отзывы о проекте D3253
Отзыв о проекте D3253
Чтобы оставить отзыв, пожалуйста авторизуйтесь.
Подбор строительной компании
Не знаете кому доверить строительство дома? Мы можем помочь! Подберем для вас из сотен наших партнеров несколько компаний с лучшем соотношением цена/качество под конкретно ваш запрос.
Подобрать