Главная Проекты домов Проект загородного дома из SIP панелей с тремя спальными комнатами на мансардном этаже

D3793 Проект загородного дома из SIP панелей с тремя спальными комнатами на мансардном этаже

Сравнить проект В избранное
Проект загородного дома из SIP панелей с тремя спальными комнатами на мансардном этаже / 1
Проект загородного дома из SIP панелей с тремя спальными комнатами на мансардном этаже / 2
Проект загородного дома из SIP панелей с тремя спальными комнатами на мансардном этаже / 1
Проект загородного дома из SIP панелей с тремя спальными комнатами на мансардном этаже / 2
D3793
171 м²
Подготовка проекта:
25 рабочих дней
Стоимость проекта
Купить проект
Задайте вопросы по проекту нашему архитектору
8 (800) 200-28-83
Время работы: пн-вс: с 9:00 до 20:00
Задать вопрос по проекту

Технические характеристики
Общие
Материал стен
SIP
Общая площадь
171 м²
Жилая площадь
95.5 м²
Приведенная площадь
171.06 м²
Количество жилых комнат/спален
4
Этажи
1 этаж + мансарда
Гараж
Нет гаража
Подвал / цокольный этаж
Без подвала
Длина дома
10.8 м
Ширина дома
10.7 м
Высота в коньке
9.7 м
Кровля
Гибкая черепица
Облицовка внешних стен
Мокрая штукатурка
Толщина несущих наружных стен
375-400 мм
Межэтажные перекрытия
По деревянным балкам
Внутренние не несущие перегородки
Каркасно-обшивные
Фундамент
Монолитная ж/бетонная плита
Терраса
Терраса крытая
Дополнительные
Окна
Окна до пола
Камин
Есть
Сауна/баня внутри
Нет
Площадь гостиной
27.9 м²
Площадь кухни
16.6 м²
Количество санузлов
2
Окно в ванной комнате
Есть
Котельная
Есть
Кабинет
Есть
Кладовая
2
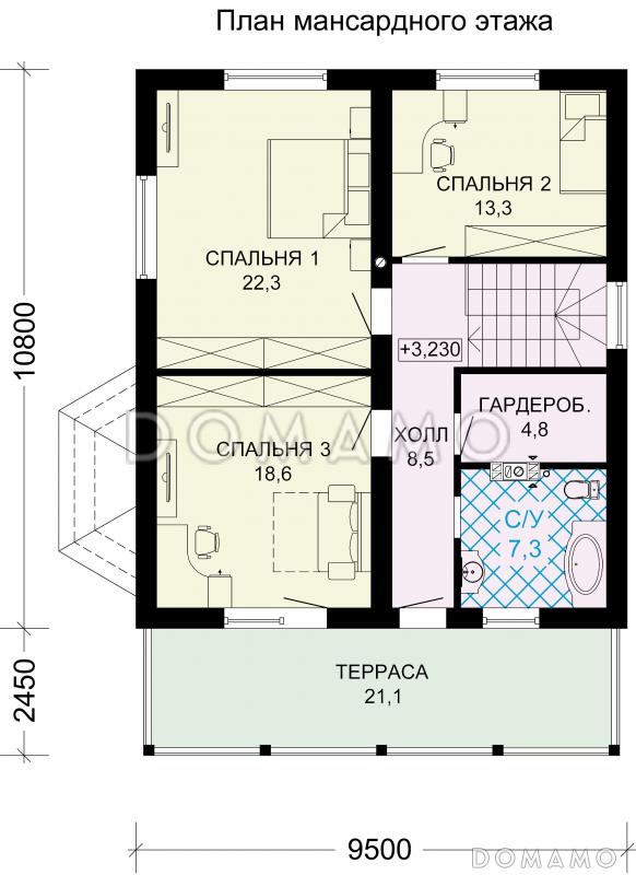
Планы помещений
Фасады
Описание проекта

Коттедж с четырьмя просторными спальнями подойдет для семьи из 4-5 человек. Передний фасад дома украшают массивные балки и ограждения террасы и балкона.

Классическая планировка мансардного коттеджа включает в себя гостиную-столовую на первом этаже, котельную, 4 спальни. Три спальни расположены на мансарде, одна — внизу. Санузлы предусмотрены на обоих этажах.

Преимущества и особенности:

  • на верхнем этаже запланирована гардеробная, что поможет не захламлять жилые комнаты,

  • в столовой есть эркер: здесь можно поставить обеденный стол,

  • спальню на первом этаже оценят пожилые члены семьи.

Категории проекта: с мансардой для постоянного проживания из сип панелей в английском стиле в скандинавском стиле современные по технологии Velox от 100 до 200 кв.м в европейском стиле с эркером с террасой из бруса в стиле замка готовые в финском стиле одноэтажные с мансардой одноэтажные с котельной с котельной из сип панелей с мансардой до 200 кв.м с двухскатной крышей 9х12 загородные 11х11 с камином квадратные 10х12 с эркером и мансардой Проекты одноэтажных домов из сип панелей Проекты одноэтажных домов с эркером Проекты одноэтажных домов с террасой Типовые проекты загородных одноэтажных домов без гаража одноэтажные без гаража с террасой и камином с кабинетом одноэтажные финские одноэтажные с 4 спальнями с мансардой и террасой полутораэтажные 11 на 11 с мансардой с 4 спальнями 9 на 12 с мансардой одноэтажные до 200 кв м 10x12 с мансардой с мансардой с котельной с мансардой с камином с мансардой с двухскатной крышей с мансардой скандинавские с мансардой современные с мансардой с окнами до пола с мансардой квадратные с мансардой готовые с мансардой для постоянного проживания с мансардой до 200 кв.м одноэтажные с мансардой из SIP-панелей одноэтажные с мансардой для постоянного проживания одноэтажные с мансардой с большой кухней одноэтажные с мансардой скандинавские одноэтажные с мансардой современные современные без гаража современные с двухскатной крышей современные с окнами в пол современные с террасой современные 11х11 современные от 100 до 200 кв. м скандинавские для постоянного проживания скандинавские без гаража скандинавские с окнами в пол скандинавские с террасой скандинавские с большой кухней скандинавские готовые скандинавские квадратные скандинавские от 100 до 200 м2 скандинавские 11х11 скандинавские с камином скандинавские с двухскатной крышей скандинавские дорогие скандинавские с котельной скандинавские с кабинетом европейские 11х11 из клееного бруса без гаража Показать все категории Скрыть категории

Похожие проекты
Состав проекта
Входит в стоимость
Цена, руб. Сроки, дней
Комплект архитектурно-строительных чертежей (АС) Входит в стоимость 25 рабочих дней
Готово к продаже
Цена, руб. Сроки, дней
Инженерные разделы: ВК + ОВ + ЭО 23 000 ₽ 3 рабочих дня в корзину
Электронная копия проекта (скан распечатанной версии) 4 000 ₽ 3 рабочих дня в корзину
Разрабатывается отдельно
Цена, руб. Сроки, дней
Адаптация фундамента (изменение типа фундамента) по запросу 14 рабочих дней
Дизайн интерьера (стоимость от 2200руб. за квад.метр площади) по запросу 30 рабочих дней
Внесение изменений в проект по запросу 20 рабочих дней
Фэншуй дома 20 000 ₽ 14 рабочих дней в корзину
Фэншуй участка 15 000 ₽ 14 рабочих дней в корзину
Фэншуй полная консультация дом+участок с выездом на объект 100 000 ₽ 30 рабочих дней в корзину
Опции проекта вы можете заказать в корзине при оформлении заказа
Предложения строителей Выбрать регион
Минимальная
4 960 740 ₽
Стандарт
5 473 920 ₽
Под чистовую отделку
8 895 120 ₽
Показать подробные комплектации
Отзывы покупателей
Рейтинг покупателей
0 / 5 5 5 1
На основе 1 оценок покупателей
0%
0%
0%
0%
0%
Отзывы о проекте D3793
Отзыв о проекте D3793
Чтобы оставить отзыв, пожалуйста авторизуйтесь.
Подбор строительной компании
Не знаете кому доверить строительство дома? Мы можем помочь! Подберем для вас из сотен наших партнеров несколько компаний с лучшем соотношением цена/качество под конкретно ваш запрос.
Подобрать