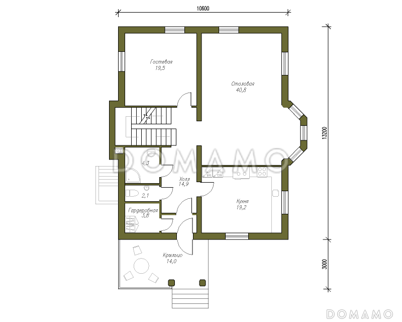
Достаточно большой по размерам и, в то же время, компактный по расположению кирпичный коттедж, выполненный в классическом стиле, рассчитан на круглогодичное проживание большой семьи из 4-8 человек. Имеет два полноценных этажа, мансарду и цокольный этаж с душевым комплексом и спортзалом, который можно переоборудовать под мастерскую или другое функциональное помещение.
Проектом предусмотрено помещение под котельную, просторная кухня, большой гардероб, гостевая спальня на первом этаже и 4 спальни на втором. Имеется шесть санузлов, в т. ч. отдельный в хозяйской спальне (где имеется и свой гардероб). Доступ от цокольного этажа до просторной мансарды осуществляется по широкой удобной лестнице.
| Минимальная | 13 336 320 ₽ |
| Стандарт | 20 004 480 ₽ |
| Под чистовую отделку | 22 338 336 ₽ |
| Показать подробные комплектации | |