Главная Проекты домов Проект дома с небольшой комнатой на первом этаже, кухней с окном, террасой, балконами

D4033 Проект дома с небольшой комнатой на первом этаже, кухней с окном, террасой, балконами

Сравнить проект В избранное
Проект дома с небольшой комнатой на первом этаже, кухней с окном, террасой, балконами / 1
Проект дома с небольшой комнатой на первом этаже, кухней с окном, террасой, балконами / 2
Проект дома с небольшой комнатой на первом этаже, кухней с окном, террасой, балконами / 3
Проект дома с небольшой комнатой на первом этаже, кухней с окном, террасой, балконами / 4
Проект дома с небольшой комнатой на первом этаже, кухней с окном, террасой, балконами / 5
Проект дома с небольшой комнатой на первом этаже, кухней с окном, террасой, балконами / 6
Проект дома с небольшой комнатой на первом этаже, кухней с окном, террасой, балконами / 1
Проект дома с небольшой комнатой на первом этаже, кухней с окном, террасой, балконами / 2
Проект дома с небольшой комнатой на первом этаже, кухней с окном, террасой, балконами / 3
Проект дома с небольшой комнатой на первом этаже, кухней с окном, террасой, балконами / 4
Проект дома с небольшой комнатой на первом этаже, кухней с окном, террасой, балконами / 5
Проект дома с небольшой комнатой на первом этаже, кухней с окном, террасой, балконами / 6
D4033
124 м²
Подготовка проекта:
Готов к отправке
Стоимость проекта
Купить проект
Задайте вопросы по проекту нашему архитектору
8 (800) 200-28-83
Время работы: пн-вс: с 9:00 до 20:00
Задать вопрос по проекту

Технические характеристики
Общие
Материал стен
Газобетон
Общая площадь
124 м²
Жилая площадь
70.19 м²
Площадь застройки
131.11 м²
Приведенная площадь
124.1 м²
Количество жилых комнат/спален
4
Этажи
2 этажа
Гараж
Нет гаража
Подвал / цокольный этаж
Без подвала
Длина дома
11.61 м
Ширина дома
8.21 м
Кровля
Металлочерепица
Облицовка внешних стен
Мокрая штукатурка
Толщина несущих наружных стен
375 мм
Межэтажные перекрытия
Монолитные
Фундамент
Ленточный заглубленный из ФБС
Терраса
Терраса открытая
Дополнительные
Окна
Окна до пола
Камин
Есть
Сауна/баня внутри
Нет
Площадь гостиной
24.3 м²
Площадь кухни
7.2 м²
Количество санузлов
2
Окно в ванной комнате
Есть
Котельная
Есть
Хозяйская гардеробная
Есть
Кладовая
2
Дом для узких участков
Есть
Балкон / лоджия
Балкон
Длина участка
21.61 м
Ширина участка
16.21 м
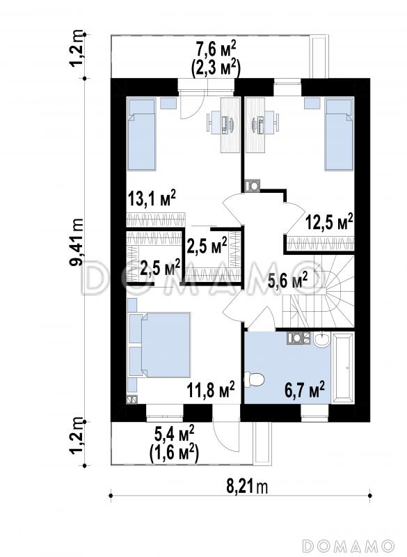
Планы помещений
Описание проекта
Компания Domamo предлагает проект дома с небольшой комнатой на первом этаже, кухней с окном, террасой, балконами D4033. Общая площадь - 124 м2, размер - 11.61х8.21 м. Фундамент - ленточный заглубленный из фбс, кровля - металлочерепица, внешняя отделка - мокрая штукатурка. Для заказа проекта или внесения изменений свяжитесь с нами с помощью форм обратной связи на сайте или по телефону +7 (343) 357-92-70.
Категории проекта: для постоянного проживания пенобетон современные от 100 до 200 кв.м в европейском стиле с террасой из газобетона готовые двухэтажные с котельной двухэтажные из газобетона из газосиликатных блоков двухэтажные из пеноблоков до 150 кв.м до 200 кв.м с двухскатной крышей загородные из керамзитобетонных блоков с камином с гардеробной прямоугольные с балконом из газобетона с террасой из блоков двухэтажные из блоков из пеноблоков с террасой загородные из газобетона Проекты двухэтажных домов с террасой Проекты двухэтажных домов с верандой без гаража с террасой и камином двухэтажные до 150 кв м двухэтажные 200 кв м с 4 спальнями до 140 кв м до 130 кв м двухэтажные до 130 кв.м с балконом и террасой узкие двухэтажные из пеноблоков загородные двухэтажные до 180 кв.м двухэтажные с камином двухэтажные с двускатной крышей двухэтажные с 4 спальнями двухэтажные с балконом двухэтажные с балконом и террасой двухэтажные в современном стиле двухэтажные до 150 кв.м с террасой двухэтажные без гаража из газобетона до 150 кв.м из газобетона до 200 кв.м из газобетона от 100 до 200 кв.м из газобетона с двухскатной крышей из газобетона современные из газобетона с балконом из газобетона с котельной из газобетона прямоугольные из газобетона готовые из газобетона с камином из газобетона с четырьмя спальнями из газобетона для узких участков из газобетона узкие из газобетона для постоянного проживания двухэтажные из газобетона без гаража двухэтажные из газобетона с террасой двухэтажные из газобетона с камином двухэтажные из газобетона с котельной двухэтажные из газобетона современные двухэтажные из газобетона с двухскатной крышей двухэтажные из газобетона для узких участков двухэтажные из газобетона до 150 кв. м двухэтажные из газобетона до 200 кв. м двухэтажные из газобетона без подвала двухэтажные из газобетона с 4 спальнями современные без гаража современные с двухскатной крышей современные с окнами в пол современные с террасой современные узкие современные до 150 кв. м современные от 100 до 200 кв. м до 150 кв.м для постоянного проживания до 150 кв.м без гаража до 150 кв.м с двухскатной крышей до 150 кв.м с окнами до пола до 150 кв.м для узких участков до 150 кв.м готовые до 150 кв.м с балконом до 150 кв.м прямоугольные до 150 кв.м с котельной до 150 кв.м без бани до 150 кв.м с террасой до 150 кв.м без подвала до 150 кв.м с 4 спальнями до 150 кв.м с камином из пеноблоков в современном стиле из пеноблоков с двухскатной крышей из пеноблоков с окнами до пола из пеноблоков прямоугольные из пеноблоков с балконом из пеноблоков для постоянного проживания из пеноблоков для узких участков из пеноблоков готовые из пеноблоков с камином из пеноблоков до 150 м кв. из пеноблоков от 100 до 200 м2 из пеноблоков узкие из пеноблоков с 4 спальнями из клееного бруса без гаража Показать все категории Скрыть категории

Похожие проекты
Состав проекта
Входит в стоимость
Цена, руб. Сроки, дней
Комплект архитектурно-строительных чертежей (АС) Входит в стоимость Готов к отправке
Готово к продаже
Цена, руб. Сроки, дней
Паспорт рабочего проекта 8 000 ₽ 5 рабочих дней в корзину
Инженерные разделы: ВК + ОВ + ЭО 15 840 ₽ Готов к отправке в корзину
Дополнительная копия проекта формата А3 6 500 ₽ 5 рабочих дней в корзину
Электронная копия проекта (скан распечатанной версии) 4 000 ₽ 3 рабочих дня в корзину
Разрабатывается отдельно
Цена, руб. Сроки, дней
Адаптация фундамента (изменение типа фундамента) по запросу 14 рабочих дней
Дизайн интерьера (стоимость от 2200руб. за квад.метр площади) по запросу 30 рабочих дней
Внесение изменений в проект по запросу 20 рабочих дней
Разработка Генплана участка, в масштабе 1:250 7 500 ₽ 15 рабочих дней в корзину
Фэншуй дома 20 000 ₽ 14 рабочих дней в корзину
Фэншуй участка 15 000 ₽ 14 рабочих дней в корзину
Фэншуй полная консультация дом+участок с выездом на объект 100 000 ₽ 30 рабочих дней в корзину
Опции проекта вы можете заказать в корзине при оформлении заказа
Отзывы покупателей
Рейтинг покупателей
0 / 5 5 5 1
На основе 1 оценок покупателей
0%
0%
0%
0%
0%
Отзывы о проекте D4033
Отзыв о проекте D4033
Чтобы оставить отзыв, пожалуйста авторизуйтесь.
Подбор строительной компании
Не знаете кому доверить строительство дома? Мы можем помочь! Подберем для вас из сотен наших партнеров несколько компаний с лучшем соотношением цена/качество под конкретно ваш запрос.
Подобрать