Главная Проекты домов Проект коттеджа с круглым холлом и башенкой

D427 Проект коттеджа с круглым холлом и башенкой

Сравнить проект В избранное
Проект коттеджа с круглым холлом и башенкой / 1
Проект коттеджа с круглым холлом и башенкой / 1
D427
507/641 м²
Подготовка проекта:
Готов к отправке
Стоимость проекта
Купить проект
Задайте вопросы по проекту нашему архитектору
8 (800) 200-28-83
Время работы: пн-вс: с 9:00 до 20:00
Задать вопрос по проекту

Технические характеристики
Общие
Материал стен
Кирпич
Общая площадь
507/641 м²
Жилая площадь
203 м²
Площадь застройки
354 м²
Приведенная площадь
582.24 м²
Количество жилых комнат/спален
6
Этажи
2 этажа
Гараж
Нет гаража
Подвал / цокольный этаж
С окнами
Длина дома
23 м
Ширина дома
16.3 м
Высота в коньке
16 м
Кровля
Гибкая черепица
Облицовка внешних стен
Мокрая штукатурка
Толщина несущих наружных стен
640 мм
Межэтажные перекрытия
Монолитные
Внутренние не несущие перегородки
Кирпичные
Фундамент
Монолитная ж/бетонная плита
Терраса
Терраса крытая
Дополнительные
Окна
Панорамные окна
,
Круглые окна
Второй свет
Есть
Камин
Есть
Сауна/баня внутри
Нет
Площадь гостиной
43.4 м²
Площадь кухни
15.1 м²
Количество санузлов
6
Окно в ванной комнате
Есть
Котельная
Есть
Кабинет
Есть
Постирочная
Есть
Спортзал / детский / игровой зал
Есть
Бильярдная
Есть
Хозяйский санузел
Есть
Хозяйская гардеробная
Есть
Кладовая
6
Балкон / лоджия
Балкон
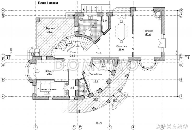
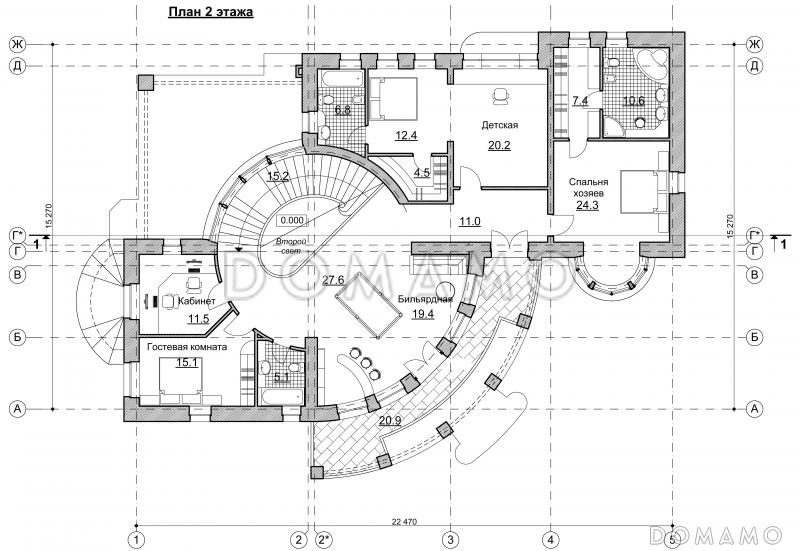
Планы помещений
Фасады
Описание проекта

Двухэтажный 9-комнатный жилой дом имеет Г-образную в плане форму с крупным центральный коммуникационным узлом. Вокруг входа в здание формируются все основные помещения. Главный вход находится в центре полукруглой колоннады, частично перекрытой балконами второго этажа. Центральный вход ведет в центрический в плане двухсветный холл с широкой полукруглой лестницей, связывающей первый, второй и цокольный этажи. По правую сторону холла расположены все основные постоянно используемые помещения : кухня, столовая, гостиная - на первом этаже, спальня родителей и детская с рабочей комнатой - на втором. По левую сторону от центрального холла расположены помещения кабинета, двух гостевых комнат и компьютерный зал. В цокольном этаже находится помещение котельной.

Структура дома позволяет развитие обоих крыльев. Например, к правому можно пристроить бассейн, к левому - гараж. В архитектуре здания использованы элементы неоклассицизма 30-х годов ХХ века: это полукруглая колоннада, остекленная цилиндрическая шахта лестницы, изящная обзорная башенка и др.

В отделке фасадов предполагается использование белой, светло-серой и светло-терракотовой штукатурки и рваного камня (доломита или песчаника). Кровля - металлочерепица серо-синего цвета.

Категории проекта: для постоянного проживания кирпич от 500 кв.м с террасой из кирпича с террасой готовые в стиле модерн с цокольным этажом загородные из кирпича двухэтажные из кирпича двухэтажные кирпичные с цокольным этажом кирпичные с котельной с котельной со вторым светом загородные с четырехскатной крышей с мансардной крышей с бильярдной с камином с гардеробной с балконом с панорамным остеклением двухэтажные с цокольным этажом Проекты двухэтажных домов с террасой Проекты двухэтажных домов с верандой на две семьи без гаража с террасой и камином с кабинетом купольные особняки с панорамными окнами и террасой с балконом и террасой большие сложной формы двухэтажные с камином двухэтажные со вторым светом двухэтажные с панорамными окнами двухэтажные с балконом двухэтажные с балконом и террасой двухэтажные без гаража большие готовые большие в стиле модерн большие с четырехскатной крышей большие с вторым светом большие с балконом большие сложной формы большие с камином большие с окном в ванной комнате большие с панорамными окнами большие без гаража большие с большой кухней большие с изолированной кухней большие с террасой большие с прачечной большие с котельной большие с кабинетом большие с мастер-спальней большие с спортзалом недорогие с панорамными окнами из клееного бруса без гаража Показать все категории Скрыть категории

Похожие проекты
Состав проекта
Входит в стоимость
Цена, руб. Сроки, дней
Комплект архитектурно-строительных чертежей (АС) Входит в стоимость Готов к отправке
Разрабатывается отдельно
Цена, руб. Сроки, дней
Адаптация фундамента (изменение типа фундамента) по запросу 14 рабочих дней
Дизайн интерьера (стоимость от 2200руб. за квад.метр площади) по запросу 30 рабочих дней
Внесение изменений в проект по запросу 20 рабочих дней
Фэншуй дома 20 000 ₽ 14 рабочих дней в корзину
Фэншуй участка 15 000 ₽ 14 рабочих дней в корзину
Фэншуй полная консультация дом+участок с выездом на объект 100 000 ₽ 30 рабочих дней в корзину
Опции проекта вы можете заказать в корзине при оформлении заказа
Предложения строителей Свердловская область
Подбор строительной компании
Не знаете кому доверить строительство дома? Мы можем помочь! Подберем для вас из сотен наших партнеров несколько компаний с лучшем соотношением цена/качество под конкретно ваш запрос.
Подобрать
Посмотреть еще 2 компании Свернуть
Отзывы покупателей
Рейтинг покупателей
0 / 5 5 5 1
На основе 1 оценок покупателей
0%
0%
0%
0%
0%
Отзывы о проекте D427
Отзыв о проекте D427
Чтобы оставить отзыв, пожалуйста авторизуйтесь.
Подбор строительной компании
Не знаете кому доверить строительство дома? Мы можем помочь! Подберем для вас из сотен наших партнеров несколько компаний с лучшем соотношением цена/качество под конкретно ваш запрос.
Подобрать