D4307 ПД-034

Сравнить проект В избранное
ПД-034 / 1
ПД-034 / 2
ПД-034 / 3
ПД-034 / 1
ПД-034 / 2
ПД-034 / 3
D4307
Проект с подрядом
Компания: Домстрой36
Стоимость строительства
1 400 000 ₽
Заказать подробную смету
+7 (925) XXX-XX-XX Показать телефон
Задать вопрос по проекту
Технические характеристики
Общие
Материал стен
Каркас
,
Каркасно-панельные
,
Фахверк
Жилая площадь
40 м²
Площадь застройки
9х12 м²
Приведенная площадь
110 м²
Этажи
1 этаж
Гараж
Нет гаража
Количество машин
нет
Подвал / цокольный этаж
Без подвала
Длина дома
9 м
Ширина дома
12 м
Высота в коньке
4.5 м
Кровля
Металлочерепица
Облицовка внешних стен
Без облицовки
,
Деревянная вагонка
,
Кровельный материал
,
Мокрая штукатурка
,
Сайдинг
,
Фасадные панели
Толщина несущих наружных стен
150 мм
Межэтажные перекрытия
По деревянным балкам
,
Сборные
,
Щитовые
Внутренние не несущие перегородки
Гипсолитовые
,
Каркасно-обшивные
Фундамент
Свайный
Дополнительные
Окна
Окна до пола
,
Панорамные окна
,
Круглые окна
,
Окна с французским балконом
Площадь гостиной
110 м²
Окно в ванной комнате
Есть
Хозяйский санузел
Есть
Хозяйская гардеробная
Есть
Дом для неровных участков (с рельефом)
Есть
Дом для узких участков
Есть
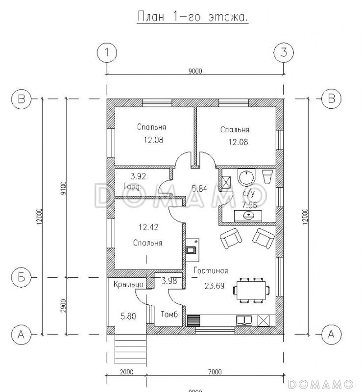
Планы помещений
Описание проекта
Комплектация сруба дома из проф.бруса включает в себя: Доставка и сборка на участок заказчика. Обвязочный брус по фундаменту 150х150/100х150мм. Гидроизоляция фундамента – рубероид. Лаги 1 этажа из бруса 100х150мм с шагом не более 700мм. Лаги перекрытия из доски 40х150мм с шагом не более 600мм. Первый этаж: Сруб из проф.бруса 145х145мм, высотой 2.60м – 18 венцов Перегородки этажа из проф.бруса 95х145мм, высотой 2.60м – 18 венцов Чердачный этаж: Стены из проф.бруса 145х145мм Сборка бруса на деревянные нагеля Крыша: Стропильная система из доски 40х150мм, с шагом 600мм. Обрешётка крыши монтируется из доски 25х150мм, с шагом 250мм. Система вентилируемая кровля с гидроизоляцией. Гидроизоляция – Изонит А. Кровельное покрытие – металлочерепица. Общее: Дом собирается по технологии в «тёплый угол» на деревянные нагеля. Внутренняя, наружная отделка.
Категории проекта: для постоянного проживания каркасные каркасно-панельные дачные дома гостевые каркасно-панельные в немецком стиле одноэтажные с плоской крышей с двухскатной крышей 9х12 загородные с четырехскатной крышей с ломаной крышей с мансардной крышей с гардеробной прямоугольные с панорамным остеклением Проекты одноэтажных каркасных домов Проекты гостевых каркасных домов дачные одноэтажные Типовые проекты загородных одноэтажных домов без гаража одноэтажные без гаража каркасные для постоянного проживания на склоне одноэтажные 9 на 12 одноэтажные с плоской крышей одноэтажные каркасные для круглогодичного проживания одноэтажные шале одноэтажные для узких участков дачные каркасные каркасно-щитовые щитовые для постоянного проживания одноэтажные с двухскатной крышей одноэтажные с четырехскатной крышей одноэтажные прямоугольные одноэтажные с панорамными окнами одноэтажные с окнами в пол одноэтажные для неровных участков одноэтажные гостевые одноэтажные с большой гостиной без гаража с подрядом для узких участков с двухскатной крышей с большой гостиной недорогие гостевые недорогие с панорамными окнами из клееного бруса без гаража с плоской крышей и большой гостиной с плоской крышей проект с подрядом с плоской крышей для постоянного проживания с плоской крышей и окном в ванной комнате с плоской крышей прямоугольные с плоской крышей и окнами в пол в гостиной с плоской крышей и окнами в пол на кухне с плоской крышей и окнами до пола с плоской крышей и панорамными окнами с плоской крышей и облицовкой деревянной вагонкой с плоской крышей и облицовкой мокрой штукатуркой с плоской крышей и облицовкой фасадными панелями с плоской крышей и хозяйской гардеробной с плоской крышей и хозяйским санузлом Проекты домов с подрядом Показать все категории Скрыть категории

Похожие проекты
Состав проекта
Входит в стоимость
Цена, руб. Сроки, дней
Комплект архитектурно-строительных чертежей (АС) Входит в стоимость Готов к отправке
Разрабатывается отдельно
Цена, руб. Сроки, дней
Адаптация фундамента (изменение типа фундамента) по запросу 14 рабочих дней
Дизайн интерьера (стоимость от 2200руб. за квад.метр площади) по запросу 30 рабочих дней
Внесение изменений в проект по запросу 20 рабочих дней
Фэншуй дома 20 000 ₽ 14 рабочих дней в корзину
Фэншуй участка 15 000 ₽ 14 рабочих дней в корзину
Фэншуй полная консультация дом+участок с выездом на объект 100 000 ₽ 30 рабочих дней в корзину
Опции проекта вы можете заказать в корзине при оформлении заказа
Комплектации
Сравнить 0 комплектаций
Свернуть все
Развернуть все
Минимальная
1 400 000 ₽
Сравнить
Стандарт
1 620 000 ₽
Сравнить
Под чистовую отделку
1 836 000 ₽
Сравнить
Кровля
Кровельное покрытие
Металлочерепица
Металлочерепица
Металлочерепица
Обрешетка
брус 50х150
50х150
50х200
Контробрешетка
Противоконденсатная (ветро-гидроизоляционная) пленка
парогидроизоляция
парогидроизоляция
парогидроизоляция
Стропильная система
50х150
50х150
50х150
Утепление чердачного перекрытия и стропильной системы
Подшивка свесов кровли
доска 25х150
софиты
Подшивка потолков террас и лоджий
Водосточная система
пластиковая
металл
Система снегозадержания
металл
Молниезащита
Фундамент
Сваи ж/бетонные
Сваи стальные винтовые
108мм
108мм
108мм
Лента ж/бетонная монолитная мелкозаглубленная
Лента ж/бетонная монолитная на глубину промерзания
Лента ж/бетонная сборная (из ФБС) на глубину промерзания
Плита ж/бетонная монолитная мелкозаглубленная
УШП (Утепленная Шведская Плита)
Бетоннная отмостка по периметру дома
Дренажная система по периметру дома
Ливневая система
Облицовка цоколя фундамента
профлист
Система контурного заземления
Стены
Несущая часть стены
Фасадная отделка
osb
цсп
имитация бруса
Ветрозащита
да
да
да
Утепление стены
150
150
200
Пароизоляция
да
да
да
Внутренняя обшивка/штукатурка со стороны помещения
гипсокартон
вагонка
Пол первого этажа
Несущая часть перекрытия
50х150
50х150
50х200
Теплоизоляция цокольного перекрытия
Стяжка/подготовка под чистый пол
Перекрытия над первым и последующими этажами
Несущая часть перекрытия
Звукоизоляция/теплоизоляция в перекрытии
Стяжка/подготовка под чистый пол
Отделка потолка нижележащего этажа
гипсокартон
вагонка
Окна и внешние двери
Окна
пвх
пвх
Оконные наличники
Откосы в помещении
вагонка
Отливы снаружи
металл
металл
Подоконники
пвх
Входные двери
металл
металл
металл
Внутренние конструкции
Внутренние несущие стены
Внутренние ненесущие стены
Звукоизоляция внутренних стен/перегородок
Межэтажная строительная (черновая) лестница
Межэтажная постоянная (чистовая) лестница
Межкомнатные двери
Высота потолков 1 этажа
2.5
2.6
2.7
Высота потолков 2 этажа
2.5
Настилы полов и ограждения крылец, террас, балконов
Гидроизоляция полов балконов
Инженерное оснащение
Жидкостной теплый пол
Электрический теплый пол
Система вентиляции
Только вводы воды, электричества, выводы канализации
Электроразводка и электрощит
Разводка хол. и гор. водоснабжения (ХВС и ГВС)
Разводка батарей и/или системы теплого пола. Без оборудования котельной.
Иное инженерное оснащение
Подготовка участка для строительства
Устройство временного щита электроснабжения
Устройство въезда на участок
Дорога на участке до пятна застройки
Подъем пятна застройки
Подготовка пятна застройки для фундаментных работ
Перемещение или вывоз грунта из котлована фундамента
Обеспечение строительного процесса
Доставка стройматериалов
Генератор для обеспечения электричеством
Уборка и вывоз строительного мусора
Организация проживания рабочих (бытовка)
Биотуалет для рабочих
Гарантия на все выполненные работы
Гарантия
5 лет
Отзывы покупателей
Рейтинг покупателей
0 / 5 5 5 1
На основе 1 оценок покупателей
0%
0%
0%
0%
0%
Отзывы о проекте D4307
Отзыв о проекте D4307
Чтобы оставить отзыв, пожалуйста авторизуйтесь.
Подбор строительной компании
Не знаете кому доверить строительство дома? Мы можем помочь! Подберем для вас из сотен наших партнеров несколько компаний с лучшем соотношением цена/качество под конкретно ваш запрос.
Подобрать