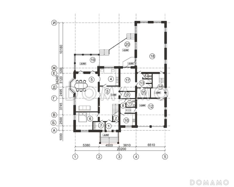
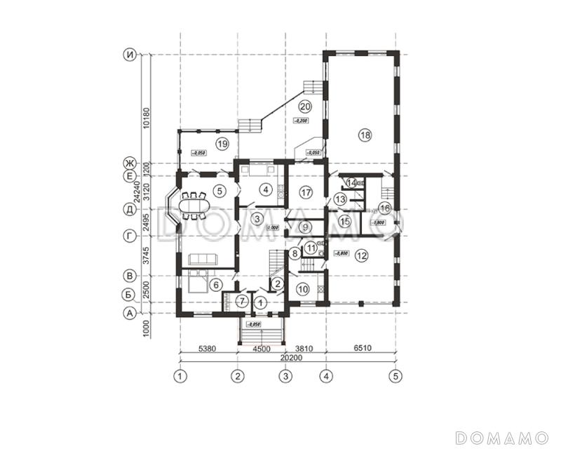
Двухэтажный дом объединяет в себе стиль европейского жилья и большую внутреннюю площадь, где размещается ряд функциональных помещений для труда, отдыха, здоровья, организации домашних праздников и торжественных приемов. В планировку дома вошли:
| Минимальная | 17 285 400 ₽ |
| Стандарт | 25 928 100 ₽ |
| Под чистовую отделку | 28 953 045 ₽ |
| Показать подробные комплектации | |