Главная Проекты домов Проект двухэтажного дома с погребом, сауной, террасой и балконом

D4689 Проект двухэтажного дома с погребом, сауной, террасой и балконом

Сравнить проект В избранное
Проект двухэтажного дома с погребом, сауной, террасой и балконом / 1
Проект двухэтажного дома с погребом, сауной, террасой и балконом / 2
Проект двухэтажного дома с погребом, сауной, террасой и балконом / 3
Проект двухэтажного дома с погребом, сауной, террасой и балконом / 4
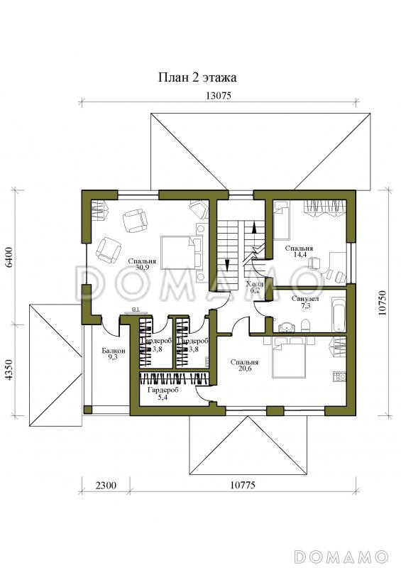
Проект двухэтажного дома с погребом, сауной, террасой и балконом / 5
Проект двухэтажного дома с погребом, сауной, террасой и балконом / 6
Проект двухэтажного дома с погребом, сауной, террасой и балконом / 7
Проект двухэтажного дома с погребом, сауной, террасой и балконом / 8
Проект двухэтажного дома с погребом, сауной, террасой и балконом / 9
Проект двухэтажного дома с погребом, сауной, террасой и балконом / 1
Проект двухэтажного дома с погребом, сауной, террасой и балконом / 2
Проект двухэтажного дома с погребом, сауной, террасой и балконом / 3
Проект двухэтажного дома с погребом, сауной, террасой и балконом / 4
Проект двухэтажного дома с погребом, сауной, террасой и балконом / 5
Проект двухэтажного дома с погребом, сауной, террасой и балконом / 6
Проект двухэтажного дома с погребом, сауной, террасой и балконом / 7
Проект двухэтажного дома с погребом, сауной, террасой и балконом / 8
Проект двухэтажного дома с погребом, сауной, террасой и балконом / 9
D4689
222 м²
Подготовка проекта:
Готов к отправке
Стоимость проекта
Купить проект
Задайте вопросы по проекту нашему архитектору
8 (800) 200-28-83
Время работы: пн-вс: с 9:00 до 20:00
Задать вопрос по проекту

Технические характеристики
Общие
Материал стен
Газобетон
Общая площадь
222 м²
Жилая площадь
114 м²
Площадь застройки
201 м²
Приведенная площадь
227.04 м²
Количество жилых комнат/спален
4
Этажи
2 этажа
Гараж
Нет гаража
Количество машин
нет
Подвал / цокольный этаж
Без окон
Погреб
Есть
Длина дома
15.6 м
Ширина дома
14.8 м
Высота в коньке
9.3 м
Кровля
Металлочерепица
Облицовка внешних стен
Мокрая штукатурка
,
Облицовка камнем
Толщина несущих наружных стен
375 мм
Межэтажные перекрытия
Монолитные
Внутренние не несущие перегородки
Газобетонные
Фундамент
Малозаглубленные ростверки
Терраса
Терраса крытая
Дополнительные
Камин
Есть
Сауна/баня внутри
Есть
Площадь гостиной
30.9 м²
Площадь кухни
14.4 м²
Количество санузлов
2
Котельная
Есть
Хозяйская гардеробная
Есть
Кладовая
4
Балкон / лоджия
Балкон
Планы помещений
Описание проекта
Компания Domamo предлагает проект двухэтажного дома с погребом, сауной, террасой и балконом D4689. Общая площадь - 222 м2, размер - 15.6х14.8 м. Фундамент - малозаглубленные ростверки, кровля - металлочерепица, внешняя отделка - мокрая штукатурка облицовка камнем. Для заказа проекта или внесения изменений свяжитесь с нами с помощью форм обратной связи на сайте или по телефону +7 (343) 357-92-70.
Категории проекта: для постоянного проживания пенобетон в классическом стиле современные от 200 до 300 кв.м в европейском стиле с террасой из газобетона с цокольным этажом из газобетона готовые с цокольным этажом двухэтажные с подвалом с котельной двухэтажные из газобетона из газосиликатных блоков двухэтажные из пеноблоков с баней загородные с четырехскатной крышей из керамзитобетонных блоков с камином с сауной с гардеробной с балконом из газобетона с баней из газобетона с террасой из блоков двухэтажные из блоков из пеноблоков с баней из пеноблоков с террасой загородные из газобетона Проекты двухэтажных домов с террасой Проекты двухэтажных домов с верандой Проекты двухэтажных домов с подвалом без гаража с террасой и камином каменные с 4 спальнями двухэтажные с сауной с балконом и террасой из пеноблоков загородные от 200 до 250 м сложной формы двухэтажные с камином двухэтажные с 4 спальнями двухэтажные с балконом двухэтажные с балконом и террасой двухэтажные в классическом стиле двухэтажные в современном стиле двухэтажные без гаража из газобетона от 200 до 300 кв.м из газобетона с четырехскатной крышей из газобетона в классическом стиле из газобетона современные из газобетона с балконом из газобетона с котельной из газобетона готовые из газобетона с камином из газобетона с четырьмя спальнями из газобетона для постоянного проживания двухэтажные из газобетона без гаража двухэтажные из газобетона с террасой двухэтажные из газобетона с камином двухэтажные из газобетона с котельной двухэтажные из газобетона классические двухэтажные из газобетона современные двухэтажные из газобетона с четырехскатной крышей двухэтажные из газобетона с вальмовой крышей двухэтажные из газобетона с подвалом двухэтажные из газобетона с баней двухэтажные из газобетона с 4 спальнями современные без гаража современные с террасой современные с подвалом классические для постоянного проживания классические без гаража классические с 4 спальнями классические с террасой классические готовые классические с котельной классические с подвалом классические с сауной классические с 2 санузлами классические с балконом классические нестандартные классические с камином классические с четырехскатной крышей классические с вальмовой крышей из пеноблоков в современном стиле из пеноблоков в классическом стиле из пеноблоков с четырехскатной крышей из пеноблоков с вальмовой крышей из пеноблоков нестандартные из пеноблоков с балконом из пеноблоков для постоянного проживания из пеноблоков готовые из пеноблоков с камином из пеноблоков от 200 до 300 м2 из пеноблоков с 4 спальнями из клееного бруса без гаража Показать все категории Скрыть категории

Похожие проекты
Состав проекта
Входит в стоимость
Цена, руб. Сроки, дней
Комплект архитектурно-строительных чертежей (АС) Входит в стоимость Готов к отправке
Готово к продаже
Цена, руб. Сроки, дней
Паспорт рабочего проекта 5 000 ₽ 3 рабочих дня в корзину
Дополнительная копия проекта формата А3 4 000 ₽ Готов к отправке в корзину
Электронная копия проекта (скан распечатанной версии) 4 000 ₽ 3 рабочих дня в корзину
Разрабатывается отдельно
Цена, руб. Сроки, дней
Адаптация фундамента (изменение типа фундамента) по запросу 14 рабочих дней
Дизайн интерьера (стоимость от 2200руб. за квад.метр площади) по запросу 30 рабочих дней
Внесение изменений в проект по запросу 20 рабочих дней
Зеркалирование проекта (для которого нет зеркальной версии) 8 000 ₽ 5 рабочих дней в корзину
Разработка Генплана участка, в масштабе 1:250 7 500 ₽ 5 рабочих дней в корзину
Фэншуй дома 20 000 ₽ 14 рабочих дней в корзину
Фэншуй участка 15 000 ₽ 14 рабочих дней в корзину
Фэншуй полная консультация дом+участок с выездом на объект 100 000 ₽ 30 рабочих дней в корзину
Опции проекта вы можете заказать в корзине при оформлении заказа
Отзывы покупателей
Рейтинг покупателей
0 / 5 5 5 1
На основе 1 оценок покупателей
0%
0%
0%
0%
0%
Отзывы о проекте D4689
Отзыв о проекте D4689
Чтобы оставить отзыв, пожалуйста авторизуйтесь.
Подбор строительной компании
Не знаете кому доверить строительство дома? Мы можем помочь! Подберем для вас из сотен наших партнеров несколько компаний с лучшем соотношением цена/качество под конкретно ваш запрос.
Подобрать