Главная Проекты домов Проект одноэтажного просторного дома в стиле хай-тек с эксплуатируемой кровлей и просторной террасой

D4751 Проект одноэтажного просторного дома в стиле хай-тек с эксплуатируемой кровлей и просторной террасой

Сравнить проект В избранное
Проект одноэтажного просторного дома в стиле хай-тек с эксплуатируемой кровлей и просторной террасой / 1
Проект одноэтажного просторного дома в стиле хай-тек с эксплуатируемой кровлей и просторной террасой / 2
Проект одноэтажного просторного дома в стиле хай-тек с эксплуатируемой кровлей и просторной террасой / 3
Проект одноэтажного просторного дома в стиле хай-тек с эксплуатируемой кровлей и просторной террасой / 4
Проект одноэтажного просторного дома в стиле хай-тек с эксплуатируемой кровлей и просторной террасой / 5
Проект одноэтажного просторного дома в стиле хай-тек с эксплуатируемой кровлей и просторной террасой / 1
Проект одноэтажного просторного дома в стиле хай-тек с эксплуатируемой кровлей и просторной террасой / 2
Проект одноэтажного просторного дома в стиле хай-тек с эксплуатируемой кровлей и просторной террасой / 3
Проект одноэтажного просторного дома в стиле хай-тек с эксплуатируемой кровлей и просторной террасой / 4
Проект одноэтажного просторного дома в стиле хай-тек с эксплуатируемой кровлей и просторной террасой / 5
D4751
252 м²
Подготовка проекта:
15 рабочих дней
Стоимость проекта
Купить проект
Задайте вопросы по проекту нашему архитектору
8 (800) 200-28-83
Время работы: пн-вс: с 9:00 до 20:00
Задать вопрос по проекту

Технические характеристики
Общие
Материал стен
Каркас
Общая площадь
252 м²
Жилая площадь
94 м²
Площадь застройки
278 м²
Приведенная площадь
190.91 м²
Количество жилых комнат/спален
4
Этажи
1 этаж
Гараж
Нет гаража
Количество машин
нет
Подвал / цокольный этаж
Без подвала
Длина дома
19.5 м
Ширина дома
18.6 м
Высота в коньке
4.9 м
Кровля
Рулонная кровля
Облицовка внешних стен
Мокрая штукатурка
Толщина несущих наружных стен
200 мм
Межэтажные перекрытия
По деревянным балкам
Внутренние не несущие перегородки
Каркасно-обшивные
Фундамент
Малозаглубленные ростверки
Терраса
Терраса открытая
Дополнительные
Окна
Окна до пола
Сауна/баня внутри
Нет
Площадь гостиной
15.7 м²
Площадь кухни
35.5 м²
Количество санузлов
2
Окно в ванной комнате
Есть
Котельная
Есть
Кабинет
Есть
Хозяйский санузел
Есть
Хозяйская гардеробная
Есть
Кладовая
2
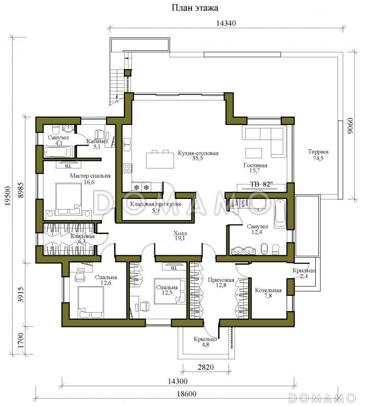
Планы помещений
Фасады
Описание проекта
Компания Domamo предлагает проект одноэтажного просторного дома в стиле хай-тек с эксплуатируемой кровлей и просторной террасой D4751. Общая площадь - 252 м2, размер - 19.5х18.6 м. Фундамент - малозаглубленные ростверки, кровля - рулонная кровля, внешняя отделка - мокрая штукатурка. Для заказа проекта или внесения изменений свяжитесь с нами с помощью форм обратной связи на сайте или по телефону +7 (343) 357-92-70.
Категории проекта: для постоянного проживания каркасные в стиле хай-тек современные дачные дома гостевые от 200 до 300 кв.м в европейском стиле с террасой готовые в стиле минимализм одноэтажные одноэтажные с котельной с котельной дачные с верандой с плоской крышей загородные с гардеробной одноэтажные в стиле хай-тек в стиле хай-тек с плоской крышей Проекты одноэтажных каркасных домов Проекты гостевых каркасных домов Проекты каркасных домов с террасой Проекты одноэтажных домов с террасой дачные одноэтажные Типовые проекты загородных одноэтажных домов без гаража одноэтажные без гаража дачные с террасой с кабинетом каркасные для постоянного проживания одноэтажные с 4 спальнями одноэтажные с плоской крышей одноэтажные каркасные для круглогодичного проживания дачные каркасные с 4 спальнями современный с плоской крышей сложной формы одноэтажные современные одноэтажные в стиле минимализм одноэтажные с окнами в пол одноэтажные гостевые одноэтажные с кабинетом одноэтажные с 2 санузлами без гаража в стиле минимализм современные готовые с котельной с четырьмя спальнями современные без гаража современные с окнами в пол современные с террасой европейские с плоской крышей хай-тек для постоянного проживания гостевые в стиле хай-тек дачные в стиле хай-тек хай-тек без гаража хай-тек с окнами в пол хай-тек с террасой хай-тек нестандартные хай-тек готовые хай-тек с котельной хай-тек с кабинетом хай-тек с мастер-спальней хай-тек с 4 спальнями хай-тек без бани хай-тек без подвала хай-тек от 200 до 300 м2 в стиле минимализм для постоянного проживания в стиле минимализм гостевые в стиле минимализм дачные в стиле минимализм без гаража в стиле минимализм нестандартные в стиле минимализм с плоской крышей в стиле минимализм с окнами в пол в стиле минимализм с террасой в стиле минимализм с 4 спальнями в стиле минимализм с кабинетом в стиле минимализм с котельной в стиле минимализм элитные в стиле минимализм от 200 до 300 м2 в стиле минимализм с гардеробной в стиле минимализм с ростверкным фундаментом недорогие гостевые из клееного бруса без гаража с плоской крышей и большой террасой с плоской крышей готовые с плоской крышей для постоянного проживания с плоской крышей и окном в ванной комнате с плоской крышей сложной формы с плоской крышей и окнами в пол в гостиной с плоской крышей и окнами до пола с плоской крышей и облицовкой мокрой штукатуркой с плоской крышей и хозяйской гардеробной с плоской крышей и хозяйским санузлом с плоской крышей и кабинетом с плоской крышей и котельной с плоской крышей без сауны Показать все категории Скрыть категории

Похожие проекты
Состав проекта
Входит в стоимость
Цена, руб. Сроки, дней
Комплект архитектурно-строительных чертежей (АС) Входит в стоимость Готов к отправке
Готово к продаже
Цена, руб. Сроки, дней
Паспорт рабочего проекта 5 000 ₽ 3 рабочих дня в корзину
Дополнительная копия проекта формата А3 4 000 ₽ Готов к отправке в корзину
Электронная копия проекта (скан распечатанной версии) 4 000 ₽ 3 рабочих дня в корзину
Разрабатывается отдельно
Цена, руб. Сроки, дней
Адаптация фундамента (изменение типа фундамента) по запросу 14 рабочих дней
Дизайн интерьера (стоимость от 2200руб. за квад.метр площади) по запросу 30 рабочих дней
Внесение изменений в проект по запросу 20 рабочих дней
Инженерные разделы: ВК + ОВ + ЭО 40 000 ₽ 20 рабочих дней в корзину
Зеркалирование проекта (для которого нет зеркальной версии) 8 000 ₽ 5 рабочих дней в корзину
Разработка Генплана участка, в масштабе 1:250 7 500 ₽ 5 рабочих дней в корзину
Фэншуй дома 20 000 ₽ 14 рабочих дней в корзину
Фэншуй участка 15 000 ₽ 14 рабочих дней в корзину
Фэншуй полная консультация дом+участок с выездом на объект 100 000 ₽ 30 рабочих дней в корзину
Опции проекта вы можете заказать в корзине при оформлении заказа
Отзывы покупателей
Рейтинг покупателей
0 / 5 5 5 1
На основе 1 оценок покупателей
0%
0%
0%
0%
0%
Отзывы о проекте D4751
Отзыв о проекте D4751
Чтобы оставить отзыв, пожалуйста авторизуйтесь.
Подбор строительной компании
Не знаете кому доверить строительство дома? Мы можем помочь! Подберем для вас из сотен наших партнеров несколько компаний с лучшем соотношением цена/качество под конкретно ваш запрос.
Подобрать