Главная Проекты домов Проект одноэтажного мансардного дома из СИП панелей с тремя спальнями, кабинетом, эркером и крытой террасой

D4849 Проект одноэтажного мансардного дома из СИП панелей с тремя спальнями, кабинетом, эркером и крытой террасой

Сравнить проект В избранное
Проект одноэтажного мансардного дома из СИП панелей с тремя спальнями, кабинетом, эркером и крытой террасой / 1
Проект одноэтажного мансардного дома из СИП панелей с тремя спальнями, кабинетом, эркером и крытой террасой / 2
Проект одноэтажного мансардного дома из СИП панелей с тремя спальнями, кабинетом, эркером и крытой террасой / 1
Проект одноэтажного мансардного дома из СИП панелей с тремя спальнями, кабинетом, эркером и крытой террасой / 2
D4849
114 м²
Подготовка проекта:
25 рабочих дней
Стоимость проекта
Купить проект
Задайте вопросы по проекту нашему архитектору
8 (800) 200-28-83
Время работы: пн-вс: с 9:00 до 20:00
Задать вопрос по проекту

Технические характеристики
Общие
Материал стен
SIP
Общая площадь
114 м²
Жилая площадь
69.9 м²
Приведенная площадь
114.88 м²
Количество жилых комнат/спален
4
Этажи
1 этаж + мансарда
Гараж
Нет гаража
Подвал / цокольный этаж
Без подвала
Длина дома
13.440 м
Ширина дома
9.700 м
Высота в коньке
9.260 м
Кровля
Гибкая черепица
Облицовка внешних стен
Мокрая штукатурка
Межэтажные перекрытия
По деревянным балкам
Фундамент
Монолитная ж/бетонная плита
Терраса
Терраса крытая
Дополнительные
Окна
Окна до пола
Мансардные окна
Есть
Камин
Есть
Сауна/баня внутри
Нет
Площадь гостиной
13.3 м²
Площадь кухни
7.9 м²
Количество санузлов
2
Окно в ванной комнате
Есть
Котельная
Есть
Кабинет
Есть
Кладовая
1
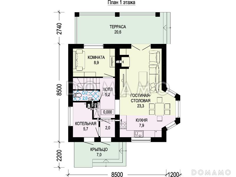
Планы помещений
Фасады
Описание проекта
Компания Domamo предлагает проект одноэтажного мансардного дома из сип панелей с тремя спальнями, кабинетом, эркером и крытой террасой D4849. Общая площадь - 114 м2, размер - 13.440х9.700 м. Фундамент - монолитная ж/бетонная плита, кровля - гибкая черепица, внешняя отделка - мокрая штукатурка. Для заказа проекта или внесения изменений свяжитесь с нами с помощью форм обратной связи на сайте или по телефону +7 (343) 357-92-70.
Категории проекта: с мансардой для постоянного проживания из сип панелей в английском стиле по технологии Velox от 100 до 200 кв.м с эркером с террасой готовые одноэтажные с мансардой одноэтажные до 150 кв. м. одноэтажные с котельной с котельной из сип панелей с мансардой до 120 кв.м до 150 кв.м до 200 кв.м загородные с камином квадратные с эркером и мансардой Проекты одноэтажных домов из сип панелей Проекты одноэтажных домов с эркером Проекты одноэтажных домов с террасой Типовые проекты загородных одноэтажных домов без гаража одноэтажные без гаража с террасой и камином с кабинетом одноэтажные с 4 спальнями с мансардой до 150 кв м с мансардой и террасой полутораэтажные с мансардой до 120 кв.м одноэтажные до 120 кв.м с 4 спальнями одноэтажные до 200 кв м до 140 кв м до 130 кв м одноэтажные с мансардными окнами с мансардой с котельной с мансардой с камином с мансардой в английском стиле с мансардой с окнами до пола с мансардой с мансардными окнами с мансардой квадратные с мансардой готовые с мансардой для постоянного проживания с мансардой до 200 кв.м с мансардой от 100 до 150 кв.м одноэтажные с мансардой из SIP-панелей одноэтажные с мансардой для постоянного проживания до 120 кв.м из SIP-панелей до 120 кв.м готовые до 120 кв.м для постоянного проживания до 120 кв.м без гаража до 120 кв.м с окнами в пол до 120 кв.м с террасой до 120 кв.м с котельной до 120 кв.м с кабинетом до 120 кв.м с 4 спальнями до 120 кв.м квадратные до 150 кв.м из SIP-панелей до 150 кв.м для постоянного проживания до 150 кв.м без гаража до 150 кв.м с окнами до пола до 150 кв.м готовые до 150 кв.м с мансардными окнами до 150 кв.м квадратные до 150 кв.м с котельной до 150 кв.м с кабинетом до 150 кв.м без бани до 150 кв.м с террасой до 150 кв.м без подвала до 150 кв.м с 4 спальнями до 150 кв.м с камином из клееного бруса без гаража Показать все категории Скрыть категории

Похожие проекты
Состав проекта
Входит в стоимость
Цена, руб. Сроки, дней
Комплект архитектурно-строительных чертежей (АС) Входит в стоимость 25 рабочих дней
Готово к продаже
Цена, руб. Сроки, дней
Инженерные разделы: ВК + ОВ + ЭО 23 000 ₽ 3 рабочих дня в корзину
Электронная копия проекта (скан распечатанной версии) 4 000 ₽ 3 рабочих дня в корзину
Разрабатывается отдельно
Цена, руб. Сроки, дней
Адаптация фундамента (изменение типа фундамента) по запросу 14 рабочих дней
Дизайн интерьера (стоимость от 2200руб. за квад.метр площади) по запросу 30 рабочих дней
Внесение изменений в проект по запросу 20 рабочих дней
Фэншуй дома 20 000 ₽ 14 рабочих дней в корзину
Фэншуй участка 15 000 ₽ 14 рабочих дней в корзину
Фэншуй полная консультация дом+участок с выездом на объект 100 000 ₽ 30 рабочих дней в корзину
Опции проекта вы можете заказать в корзине при оформлении заказа
Отзывы покупателей
Рейтинг покупателей
0 / 5 5 5 1
На основе 1 оценок покупателей
0%
0%
0%
0%
0%
Отзывы о проекте D4849
Отзыв о проекте D4849
Чтобы оставить отзыв, пожалуйста авторизуйтесь.
Подбор строительной компании
Не знаете кому доверить строительство дома? Мы можем помочь! Подберем для вас из сотен наших партнеров несколько компаний с лучшем соотношением цена/качество под конкретно ваш запрос.
Подобрать