Главная Проекты домов Проект загородного дома в классическом стиле с просторной гостиной, террасой, кладовой на кухне

D4969 Проект загородного дома в классическом стиле с просторной гостиной, террасой, кладовой на кухне

Сравнить проект В избранное
Проект загородного дома в классическом стиле с просторной гостиной, террасой, кладовой на кухне / 1
Проект загородного дома в классическом стиле с просторной гостиной, террасой, кладовой на кухне / 2
Проект загородного дома в классическом стиле с просторной гостиной, террасой, кладовой на кухне / 3
Проект загородного дома в классическом стиле с просторной гостиной, террасой, кладовой на кухне / 4
Проект загородного дома в классическом стиле с просторной гостиной, террасой, кладовой на кухне / 1
Проект загородного дома в классическом стиле с просторной гостиной, террасой, кладовой на кухне / 2
Проект загородного дома в классическом стиле с просторной гостиной, террасой, кладовой на кухне / 3
Проект загородного дома в классическом стиле с просторной гостиной, террасой, кладовой на кухне / 4
D4969
199 м²
Подготовка проекта:
Готов к отправке
Стоимость проекта
Купить проект
Задайте вопросы по проекту нашему архитектору
8 (800) 200-28-83
Время работы: пн-вс: с 9:00 до 20:00
Задать вопрос по проекту

Технические характеристики
Общие
Материал стен
Газобетон
Общая площадь
199 м²
Жилая площадь
124.6 м²
Площадь застройки
181.3 м²
Приведенная площадь
198.91 м²
Количество жилых комнат/спален
5
Этажи
2 этажа
Гараж
Нет гаража
Подвал / цокольный этаж
Без подвала
Длина дома
17.30 м
Ширина дома
10.91 м
Кровля
Металлочерепица
Облицовка внешних стен
Мокрая штукатурка
,
Облицовочный кирпич
Толщина несущих наружных стен
375 мм
Межэтажные перекрытия
Сборные
Фундамент
Ленточный монолитный
Терраса
Терраса крытая
Дополнительные
Окна
Круглые окна
Камин
Есть
Сауна/баня внутри
Нет
Площадь гостиной
39.5 м²
Площадь кухни
9.6 м²
Количество санузлов
3
Окно в ванной комнате
Есть
Котельная
Есть
Кладовая
1
Длина участка
27.30 м
Ширина участка
16.91 м
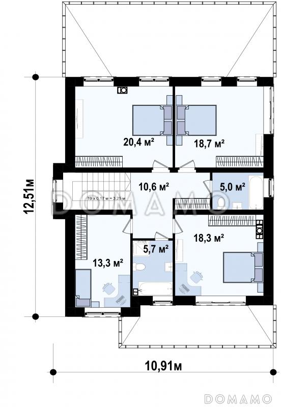
Планы помещений
Описание проекта
Компания Domamo предлагает проект загородного дома в классическом стиле с просторной гостиной, террасой, кладовой на кухне D4969. Общая площадь - 199 м2, размер - 17.30х10.91 м. Фундамент - ленточный монолитный, кровля - металлочерепица, внешняя отделка - облицовочный кирпич мокрая штукатурка. Для заказа проекта или внесения изменений свяжитесь с нами с помощью форм обратной связи на сайте или по телефону +7 (343) 357-92-70.
Категории проекта: для постоянного проживания пенобетон в классическом стиле от 100 до 200 кв.м с террасой из газобетона готовые двухэтажные с котельной двухэтажные из газобетона из газосиликатных блоков двухэтажные из пеноблоков до 200 кв.м загородные с четырехскатной крышей из керамзитобетонных блоков с камином прямоугольные из газобетона с террасой из блоков двухэтажные из блоков из пеноблоков с террасой загородные из газобетона Проекты двухэтажных домов с террасой Проекты двухэтажных домов с верандой без гаража с террасой и камином облицованные кирпичом двухэтажные 200 кв м двухэтажные от 150 до 200 кв м из пеноблоков загородные с 5 спальнями двухэтажные с камином двухэтажные в классическом стиле двухэтажные без гаража из газобетона до 200 кв.м из газобетона от 100 до 200 кв.м из газобетона с четырехскатной крышей из газобетона в классическом стиле из газобетона с котельной из газобетона прямоугольные из газобетона готовые из газобетона с камином из газобетона для постоянного проживания двухэтажные из газобетона без гаража двухэтажные из газобетона с террасой двухэтажные из газобетона с камином двухэтажные из газобетона с котельной двухэтажные из газобетона классические двухэтажные из газобетона с четырехскатной крышей двухэтажные из газобетона до 200 кв. м двухэтажные из газобетона без подвала классические для постоянного проживания классические без гаража классические с террасой классические готовые классические с котельной классические без подвала классические прямоугольные классические с камином классические с четырехскатной крышей из пеноблоков в классическом стиле из пеноблоков с четырехскатной крышей из пеноблоков прямоугольные из пеноблоков для постоянного проживания из пеноблоков готовые из пеноблоков с камином из пеноблоков от 100 до 200 м2 из клееного бруса без гаража Показать все категории Скрыть категории

Похожие проекты
Состав проекта
Входит в стоимость
Цена, руб. Сроки, дней
Комплект архитектурно-строительных чертежей (АС) Входит в стоимость Готов к отправке
Готово к продаже
Цена, руб. Сроки, дней
Паспорт рабочего проекта 8 000 ₽ 5 рабочих дней в корзину
Инженерные разделы: ВК + ОВ + ЭО 20 130 ₽ Готов к отправке в корзину
Дополнительная копия проекта формата А3 6 500 ₽ 5 рабочих дней в корзину
Электронная копия проекта (скан распечатанной версии) 4 000 ₽ 3 рабочих дня в корзину
Разрабатывается отдельно
Цена, руб. Сроки, дней
Адаптация фундамента (изменение типа фундамента) по запросу 14 рабочих дней
Дизайн интерьера (стоимость от 2200руб. за квад.метр площади) по запросу 30 рабочих дней
Внесение изменений в проект по запросу 20 рабочих дней
Разработка Генплана участка, в масштабе 1:250 7 500 ₽ 15 рабочих дней в корзину
Фэншуй дома 20 000 ₽ 14 рабочих дней в корзину
Фэншуй участка 15 000 ₽ 14 рабочих дней в корзину
Фэншуй полная консультация дом+участок с выездом на объект 100 000 ₽ 30 рабочих дней в корзину
Опции проекта вы можете заказать в корзине при оформлении заказа
Варианты проекта Сравнить все варианты
Избранные проекты
Избранные строители
Отзывы покупателей
Рейтинг покупателей
0 / 5 5 5 1
На основе 1 оценок покупателей
0%
0%
0%
0%
0%
Отзывы о проекте D4969
Отзыв о проекте D4969
Чтобы оставить отзыв, пожалуйста авторизуйтесь.
Подбор строительной компании
Не знаете кому доверить строительство дома? Мы можем помочь! Подберем для вас из сотен наших партнеров несколько компаний с лучшем соотношением цена/качество под конкретно ваш запрос.
Подобрать