Главная Проекты домов Проект двухэтажного дома в стиле хай-тек с мастерской-гаражом, очень просторной террасой и вторым светом

D5622 Проект двухэтажного дома в стиле хай-тек с мастерской-гаражом, очень просторной террасой и вторым светом

Сравнить проект В избранное
Технические характеристики
Общие
Материал стен
Кирпич
Общая площадь
254 м²
Жилая площадь
93 м²
Площадь застройки
223 м²
Приведенная площадь
201.459 м²
Количество жилых комнат/спален
4
Этажи
2 этажа
Гараж
Нет гаража
Количество машин
1
Подвал / цокольный этаж
Без подвала
Длина дома
17.4 м
Ширина дома
11.9 м
Высота в коньке
7.7 м
Кровля
Рулонная кровля
Облицовка внешних стен
Мокрая штукатурка
Толщина несущих наружных стен
380 мм
Межэтажные перекрытия
Монолитные
Внутренние не несущие перегородки
Кирпичные
Фундамент
Малозаглубленные ростверки
Терраса
Терраса открытая
Дополнительные
Окна
Окна до пола
Второй свет
Есть
Сауна/баня внутри
Нет
Купель
Есть
Площадь гостиной
36.54 м²
Площадь кухни
6 м²
Количество санузлов
2
Окно в ванной комнате
Есть
Котельная
Есть
Кабинет
Есть
Постирочная
Есть
Хозяйская гардеробная
Есть
Кладовая
2
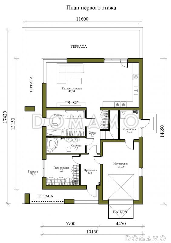
Планы помещений
Описание проекта
Компания Domamo предлагает проект двухэтажного дома в стиле хай-тек с мастерской-гаражом, очень просторной террасой и вторым светом D5622. Общая площадь - 254 м2, размер - 17.4х11.9 м. Фундамент - малозаглубленные ростверки, кровля - рулонная кровля, внешняя отделка - мокрая штукатурка. Для заказа проекта или внесения изменений свяжитесь с нами с помощью форм обратной связи на сайте или по телефону +7 (343) 357-92-70.
Категории проекта: для постоянного проживания кирпич в стиле хай-тек современные от 200 до 300 кв.м кирпичные дома хай-тек в европейском стиле кирпичные европейские дома с террасой из кирпича с террасой готовые в стиле минимализм загородные из кирпича двухэтажные из кирпича двухэтажные кирпичные с котельной с котельной со вторым светом с плоской крышей загородные с гардеробной прямоугольные в стиле хай-тек с плоской крышей современные кирпичные Проекты двухэтажных домов с террасой Проекты двухэтажных домов с верандой без гаража с кабинетом с 4 спальнями современный с плоской крышей двухэтажные со вторым светом двухэтажные с 4 спальнями двухэтажные в современном стиле двухэтажные без гаража современные без гаража современные с окнами в пол современные с террасой современные со вторым светом европейские с плоской крышей двухэтажные в стиле хай-тек хай-тек для постоянного проживания хай-тек без гаража хай-тек с окнами в пол хай-тек с террасой хай-тек с вторым светом хай-тек прямоугольные хай-тек готовые хай-тек с котельной хай-тек с кабинетом хай-тек с прачечной хай-тек с 4 спальнями хай-тек без бани хай-тек без подвала хай-тек от 200 до 300 м2 в стиле минимализм для постоянного проживания в стиле минимализм без гаража в стиле минимализм прямоугольные в стиле минимализм с плоской крышей в стиле минимализм с окнами в пол в стиле минимализм с террасой в стиле минимализм с 4 спальнями в стиле минимализм с кабинетом в стиле минимализм с котельной в стиле минимализм элитные в стиле минимализм от 200 до 300 м2 в стиле минимализм с гардеробной в стиле минимализм с ростверкным фундаментом из клееного бруса без гаража с плоской крышей двухэтажные с плоской крышей и большой террасой с плоской крышей и большой гостиной с плоской крышей готовые с плоской крышей для постоянного проживания с плоской крышей и окном в ванной комнате с плоской крышей прямоугольные с плоской крышей и окнами в пол в гостиной с плоской крышей и окнами в пол на кухне с плоской крышей и окнами до пола с плоской крышей и монолитными перекрытиями с плоской крышей и облицовкой мокрой штукатуркой с плоской крышей кирпичные с плоской крышей и хозяйской гардеробной с плоской крышей и постирочной с плоской крышей и кабинетом с плоской крышей и котельной с плоской крышей без сауны Показать все категории Скрыть категории

Похожие проекты
Состав проекта
Входит в стоимость
Цена, руб. Сроки, дней
Комплект архитектурно-строительных чертежей (АС) Входит в стоимость Готов к отправке
Готово к продаже
Цена, руб. Сроки, дней
Паспорт рабочего проекта 5 000 ₽ 3 рабочих дня в корзину
Дополнительная копия проекта формата А3 4 000 ₽ Готов к отправке в корзину
Электронная копия проекта (скан распечатанной версии) 4 000 ₽ 3 рабочих дня в корзину
Разрабатывается отдельно
Цена, руб. Сроки, дней
Адаптация фундамента (изменение типа фундамента) по запросу 14 рабочих дней
Дизайн интерьера (стоимость от 2200руб. за квад.метр площади) по запросу 30 рабочих дней
Внесение изменений в проект по запросу 20 рабочих дней
Инженерные разделы: ВК + ОВ + ЭО 40 000 ₽ 20 рабочих дней в корзину
Зеркалирование проекта (для которого нет зеркальной версии) 8 000 ₽ 5 рабочих дней в корзину
Разработка Генплана участка, в масштабе 1:250 7 500 ₽ 5 рабочих дней в корзину
Фэншуй дома 20 000 ₽ 14 рабочих дней в корзину
Фэншуй участка 15 000 ₽ 14 рабочих дней в корзину
Фэншуй полная консультация дом+участок с выездом на объект 100 000 ₽ 30 рабочих дней в корзину
Опции проекта вы можете заказать в корзине при оформлении заказа
Предложения строителей Выбрать регион
Минимальная
7 051 100 ₽
Стандарт
8 662 780 ₽
Под чистовую отделку
11 281 760 ₽
Показать подробные комплектации
Минимальная
17 124 100 ₽
Стандарт
20 146 000 ₽
Под чистовую отделку
26 189 800 ₽
Показать подробные комплектации
Минимальная
9 412 211 ₽
Стандарт
13 824 185 ₽
Под чистовую отделку
21 765 738 ₽
Показать подробные комплектации
Минимальная
8 072 502 ₽
Стандарт
9 269 174 ₽
Под чистовую отделку
11 868 411 ₽
Показать подробные комплектации
Минимальная
3 951 224 ₽
Стандарт
4 892 969 ₽
Под чистовую отделку
5 889 290 ₽
Показать подробные комплектации
Подбор строительной компании
Не знаете кому доверить строительство дома? Мы можем помочь! Подберем для вас из сотен наших партнеров несколько компаний с лучшем соотношением цена/качество под конкретно ваш запрос.
Подобрать
Посмотреть еще 20 компаний Свернуть
Отзывы покупателей
Рейтинг покупателей
0 / 5 5 5 1
На основе 1 оценок покупателей
0%
0%
0%
0%
0%
Отзывы о проекте D5622
Отзыв о проекте D5622
Чтобы оставить отзыв, пожалуйста авторизуйтесь.
Подбор строительной компании
Не знаете кому доверить строительство дома? Мы можем помочь! Подберем для вас из сотен наших партнеров несколько компаний с лучшем соотношением цена/качество под конкретно ваш запрос.
Подобрать