Главная Проекты домов Проект одноэтажного дома с мансардой и ломанной крышей

D5659 Проект одноэтажного дома с мансардой и ломанной крышей

Сравнить проект В избранное
Проект одноэтажного дома с мансардой и ломанной крышей / 1
Проект одноэтажного дома с мансардой и ломанной крышей / 2
Проект одноэтажного дома с мансардой и ломанной крышей / 3
Проект одноэтажного дома с мансардой и ломанной крышей / 1
Проект одноэтажного дома с мансардой и ломанной крышей / 2
Проект одноэтажного дома с мансардой и ломанной крышей / 3
D5659
133.5 м²
Подготовка проекта:
Готов к отправке
Стоимость проекта
Купить проект
Задайте вопросы по проекту нашему архитектору
8 (800) 200-28-83
Время работы: пн-вс: с 9:00 до 20:00
Задать вопрос по проекту

Технические характеристики
Общие
Материал стен
Газобетон
Общая площадь
133.5 м²
Жилая площадь
76.9 м²
Площадь застройки
107.8 м²
Приведенная площадь
114.46 м²
Количество жилых комнат/спален
3
Этажи
1 этаж + мансарда
Гараж
Нет гаража
Количество машин
нет
Подвал / цокольный этаж
Без подвала
Длина дома
13.5 м
Ширина дома
10.1 м
Высота в коньке
9.3 м
Кровля
Гибкая черепица
Облицовка внешних стен
Мокрая штукатурка
Толщина несущих наружных стен
400 мм
Межэтажные перекрытия
По деревянным балкам
Внутренние не несущие перегородки
Газобетонные
Фундамент
Малозаглубленные ростверки
Терраса
Терраса крытая
Дополнительные
Окна
Окна до пола
Мансардные окна
Есть
Камин
Есть
Сауна/баня внутри
Нет
Купель
Есть
Площадь гостиной
23.3 м²
Площадь кухни
7.8 м²
Количество санузлов
2
Окно в ванной комнате
Есть
Котельная
Есть
Кладовая
1
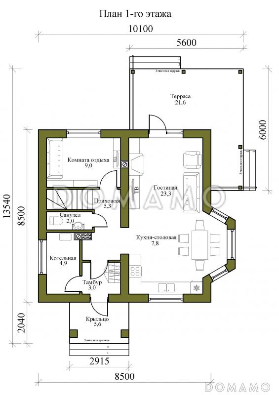
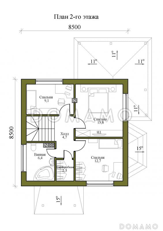
Планы помещений
Описание проекта
Компания Domamo предлагает проект одноэтажного дома с мансардой и ломанной крышей D5659. Общая площадь - 133.5 м2, размер - 13.5х10.1 м. Фундамент - малозаглубленные ростверки, кровля - гибкая черепица, внешняя отделка - мокрая штукатурка. Для заказа проекта или внесения изменений свяжитесь с нами с помощью форм обратной связи на сайте или по телефону +7 (343) 357-92-70.
Категории проекта: с мансардой для постоянного проживания пенобетон в классическом стиле современные дачные дома гостевые от 100 до 200 кв.м в европейском стиле с эркером с террасой из пеноблоков с мансардой из газобетона с мансардой и эркером из газобетона с эркером из газобетона в немецком стиле из газобетона готовые из газобетона с мансардой одноэтажные с мансардой одноэтажные до 150 кв. м. одноэтажные с котельной с котельной одноэтажные из газобетона из газосиликатных блоков дачные с мансардой дачные из пеноблоков дачные с верандой до 150 кв.м до 200 кв.м загородные с ломаной крышей с мансардной крышей из керамзитобетонных блоков с камином из газобетона с террасой с эркером и мансардой из блоков одноэтажные из блоков из блоков с мансардой из блоков с эркером Проекты домов из пеноблоков с эркером из пеноблоков с террасой загородные из газобетона Проекты одноэтажных домов с эркером Проекты одноэтажных домов с террасой дачные одноэтажные Типовые проекты загородных одноэтажных домов без гаража одноэтажные без гаража дачные с террасой с террасой и камином дачные с камином одноэтажные с тремя спальнями Проекты домов с тремя спальнями одноэтажных из керамзитобетонных блоков с мансардой до 150 кв м с мансардой и террасой полутораэтажные дачные с мансардой и верандой одноэтажные до 200 кв м до 140 кв м из пеноблоков загородные сложной формы одноэтажные с мансардными окнами с мансардой с котельной с мансардой с камином с мансардой в классическом стиле с мансардой современные с мансардой в европейском стиле с мансардой с окнами до пола с мансардой с мансардными окнами с мансардой сложной формы с мансардой готовые с мансардой для постоянного проживания с мансардой гостевые с мансардой до 200 кв.м с мансардой от 100 до 150 кв.м одноэтажные из газобетона с террасой одноэтажные из газобетона до 150 кв. м одноэтажные из газобетона с мансардой одноэтажные из газобетона с 3 спальнями мансардная крыша из газобетона до 150 кв.м из газобетона до 200 кв.м из газобетона от 100 до 200 кв.м из газобетона в европейском стиле из газобетона в классическом стиле из газобетона современные из газобетона с котельной из газобетона готовые из газобетона с камином из газобетона с тремя спальнями из газобетона дачные из газобетона гостевые из газобетона для постоянного проживания двухэтажные из газобетона без гаража двухэтажные из газобетона с террасой двухэтажные из газобетона с камином двухэтажные из газобетона с котельной двухэтажные из газобетона в европейском стиле двухэтажные из газобетона классические двухэтажные из газобетона современные двухэтажные из газобетона до 150 кв. м двухэтажные из газобетона до 200 кв. м двухэтажные из газобетона без подвала двухэтажные из газобетона с эркером двухэтажные из газобетона с 3 спальнями из газобетона с мансардой современные из газобетона с мансардой в европейском стиле из газобетона с мансардой в классическом стиле из газобетона с мансардой с террасой из газобетона с мансардой с камином из газобетона с мансардой для постоянного проживания из газобетона с мансардой дачные из газобетона с мансардой готовые из газобетона с мансардой с 3 спальнями одноэтажные с мансардой для постоянного проживания одноэтажные с мансардой гостевые одноэтажные с мансардой дачные одноэтажные с мансардой в европейском стиле одноэтажные с мансардой классические одноэтажные с мансардой современные современные без гаража современные с окнами в пол современные с террасой современные до 150 кв. м современные от 100 до 200 кв. м классические для постоянного проживания классические гостевые классические дачные классические без гаража классические с 3 спальнями классические с окнами в пол классические с террасой классические готовые классические с котельной классические без подвала классические с 2 санузлами классические нестандартные классические с камином классические с мансардной крышей европейские для постоянного проживания европейские дачные европейские гостевые европейские готовые европейские без подвала европейские с террасой европейские с 2 санузлами европейские с котельной европейские с кладовой европейские с мансардными окнами европейские с окнами в пол европейские с мансардной крышей европейские с камином европейские до 150 м2 европейские 100-200 м2 до 150 кв.м для постоянного проживания до 150 кв.м гостевые до 150 кв.м дачные до 150 кв.м без гаража до 150 кв.м с окнами до пола до 150 кв.м классические до 150 кв.м готовые до 150 кв.м с мансардными окнами до 150 кв.м с котельной до 150 кв.м без бани до 150 кв.м с террасой до 150 кв.м без подвала до 150 кв.м с 3 спальнями до 150 кв.м с камином из пеноблоков в современном стиле из пеноблоков в европейском стиле из пеноблоков в классическом стиле из пеноблоков с мансардной крышей из пеноблоков с окнами до пола из пеноблоков нестандартные из пеноблоков для постоянного проживания из пеноблоков гостевые из пеноблоков готовые из пеноблоков с камином из пеноблоков до 150 м кв. из пеноблоков от 100 до 200 м2 из пеноблоков с 3 спальнями недорогие с мансардой недорогие без гаража недорогие с террасой недорогие для постоянного проживания недорогие гостевые недорогие дачные недорогие с мансардной крышей недорогие с окнами до пола недорогие без бани недорогие с котельной недорогие с мансардными окнами недорогие с камином недорогие сложной формы недорогие до 150 м2 недорогие от 100 до 200 м2 из клееного бруса без гаража Показать все категории Скрыть категории

Похожие проекты
Состав проекта
Входит в стоимость
Цена, руб. Сроки, дней
Комплект архитектурно-строительных чертежей (АС) Входит в стоимость Готов к отправке
Готово к продаже
Цена, руб. Сроки, дней
Паспорт рабочего проекта 5 000 ₽ 3 рабочих дня в корзину
Дополнительная копия проекта формата А3 4 000 ₽ Готов к отправке в корзину
Электронная копия проекта (скан распечатанной версии) 4 000 ₽ 3 рабочих дня в корзину
Разрабатывается отдельно
Цена, руб. Сроки, дней
Адаптация фундамента (изменение типа фундамента) по запросу 14 рабочих дней
Дизайн интерьера (стоимость от 2200руб. за квад.метр площади) по запросу 30 рабочих дней
Внесение изменений в проект по запросу 20 рабочих дней
Зеркалирование проекта (для которого нет зеркальной версии) 8 000 ₽ 5 рабочих дней в корзину
Разработка Генплана участка, в масштабе 1:250 7 500 ₽ 5 рабочих дней в корзину
Фэншуй дома 20 000 ₽ 14 рабочих дней в корзину
Фэншуй участка 15 000 ₽ 14 рабочих дней в корзину
Фэншуй полная консультация дом+участок с выездом на объект 100 000 ₽ 30 рабочих дней в корзину
Опции проекта вы можете заказать в корзине при оформлении заказа
Отзывы покупателей
Рейтинг покупателей
0 / 5 5 5 1
На основе 1 оценок покупателей
0%
0%
0%
0%
0%
Отзывы о проекте D5659
Отзыв о проекте D5659
Чтобы оставить отзыв, пожалуйста авторизуйтесь.
Подбор строительной компании
Не знаете кому доверить строительство дома? Мы можем помочь! Подберем для вас из сотен наших партнеров несколько компаний с лучшем соотношением цена/качество под конкретно ваш запрос.
Подобрать