Главная Проекты домов Проект двухэтажного особняка с мансардой, террасой и большой гардеробной

D5997 Проект двухэтажного особняка с мансардой, террасой и большой гардеробной

Сравнить проект В избранное
Проект двухэтажного особняка с мансардой, террасой и большой гардеробной / 1
Проект двухэтажного особняка с мансардой, террасой и большой гардеробной / 2
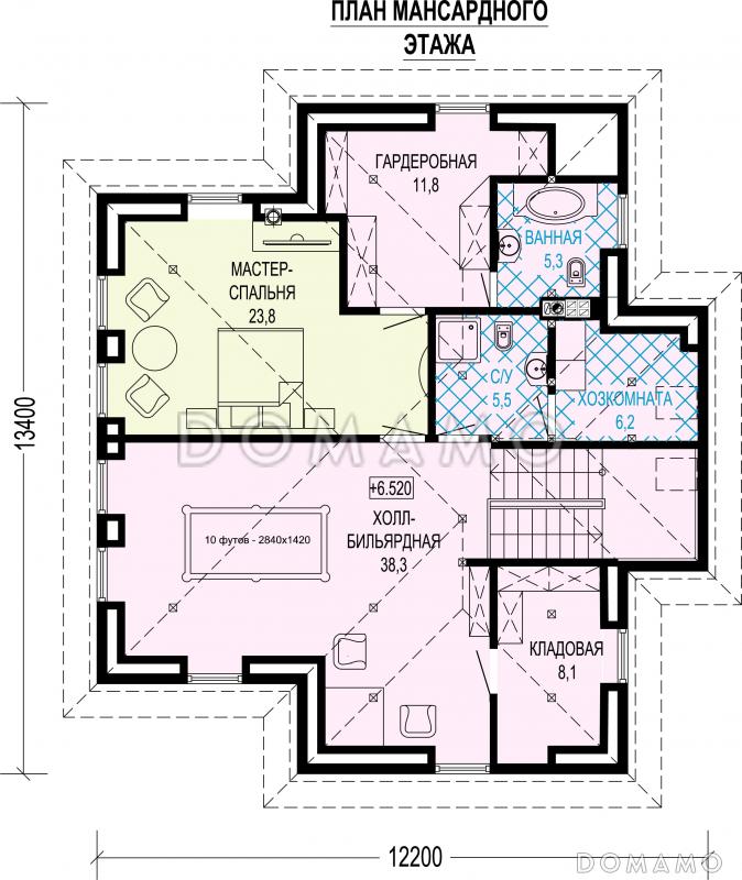
Проект двухэтажного особняка с мансардой, террасой и большой гардеробной / 1
Проект двухэтажного особняка с мансардой, террасой и большой гардеробной / 2
D5997
320 м²
Подготовка проекта:
15 рабочих дней
Стоимость проекта
Купить проект
Задайте вопросы по проекту нашему архитектору
8 (800) 200-28-83
Время работы: пн-вс: с 9:00 до 20:00
Задать вопрос по проекту

Технические характеристики
Общие
Материал стен
Газобетон
Общая площадь
320 м²
Жилая площадь
153.9 м²
Приведенная площадь
317.76 м²
Количество жилых комнат/спален
6
Этажи
2 этажа + мансарда
Гараж
Нет гаража
Подвал / цокольный этаж
Без подвала
Длина дома
16.5 м
Ширина дома
12.8 м
Высота в коньке
11.48 м
Кровля
Металлочерепица
Облицовка внешних стен
Облицовочный кирпич
Толщина несущих наружных стен
380 мм
Межэтажные перекрытия
Монолитные
Внутренние не несущие перегородки
Газобетонные
Фундамент
Монолитная ж/бетонная плита
Терраса
Терраса крытая
Дополнительные
Окна
Окна до пола
Мансардные окна
Есть
Камин
Есть
Сауна/баня внутри
Нет
Площадь гостиной
35.3 м²
Площадь кухни
10.9 м²
Количество санузлов
5
Окно в ванной комнате
Есть
Котельная
Есть
Бильярдная
Есть
Хозяйский санузел
Есть
Хозяйская гардеробная
Есть
Кладовая
4
Планы помещений
Фасады
Описание проекта
Компания Domamo предлагает проект двухэтажного особняка с мансардой, террасой и большой гардеробной D5997. Общая площадь - 320 м2, размер - 16.5х12.8 м. Фундамент - монолитная ж/бетонная плита, кровля - металлочерепица, внешняя отделка - облицовочный кирпич. Для заказа проекта или внесения изменений свяжитесь с нами с помощью форм обратной связи на сайте или по телефону +7 (343) 357-92-70.
Категории проекта: с мансардой для постоянного проживания пенобетон современные от 300 до 400 кв.м в европейском стиле с террасой из пеноблоков с мансардой из газобетона в немецком стиле из газобетона готовые из газобетона с мансардой двухэтажные двухэтажные с мансардой с котельной двухэтажные из газобетона из газосиликатных блоков двухэтажные из пеноблоков загородные с мансардной крышей из керамзитобетонных блоков с бильярдной с камином с гардеробной из газобетона с террасой из блоков двухэтажные из блоков из блоков с мансардой из пеноблоков с террасой загородные из газобетона Проекты двухэтажных домов с террасой Проекты двухэтажных домов с верандой на две семьи без гаража с террасой и камином облицованные кирпичом с мансардой и террасой из пеноблоков загородные сложной формы двухэтажные с камином двухэтажные в современном стиле двухэтажные без гаража с мансардой с котельной с мансардой с камином с мансардой современные с мансардой в европейском стиле с мансардой с окнами до пола с мансардой с мансардными окнами с мансардой сложной формы с мансардой готовые с мансардой для постоянного проживания с мансардой элитные из газобетона от 300 до 400 кв.м из газобетона в европейском стиле из газобетона современные из газобетона с котельной из газобетона готовые из газобетона с камином из газобетона для постоянного проживания двухэтажные из газобетона большие из газобетона с мансардой современные из газобетона с мансардой в европейском стиле из газобетона с мансардой с террасой из газобетона с мансардой с камином из газобетона с мансардой для постоянного проживания из газобетона с мансардой готовые из газобетона с мансардой с гардеробной современные без гаража современные с окнами в пол современные с террасой современные большие европейские для постоянного проживания европейские дорогие европейские готовые европейские без подвала европейские с террасой европейские с котельной европейские с кладовой европейские с мансардными окнами европейские с окнами в пол европейские с мансардной крышей европейские с камином европейские 300-400 м2 из пеноблоков в современном стиле из пеноблоков в европейском стиле из пеноблоков с мансардной крышей из пеноблоков с окнами до пола из пеноблоков нестандартные из пеноблоков для постоянного проживания из пеноблоков готовые из пеноблоков с камином из пеноблоков от 300 до 400 м2 из пеноблоков большие из клееного бруса без гаража Показать все категории Скрыть категории

Похожие проекты
Состав проекта
Входит в стоимость
Цена, руб. Сроки, дней
Комплект архитектурно-строительных чертежей (АС) Входит в стоимость 15 рабочих дней
Готово к продаже
Цена, руб. Сроки, дней
Зеркальная версия проекта Входит в стоимость 15 рабочих дней
Паспорт рабочего проекта 5 000 ₽ 15 рабочих дней в корзину
Инженерные разделы: ВК + ОВ + ЭО 25 000 ₽ 15 рабочих дней в корзину
Дополнительная копия проекта формата А3 3 000 ₽ 15 рабочих дней в корзину
Две дополнительные копии проекта формата А3 + 1 паспорт рабочего проекта 10 100 ₽ 15 рабочих дней в корзину
Электронная копия проекта (скан распечатанной версии) 4 000 ₽ 3 рабочих дня в корзину
Разрабатывается отдельно
Цена, руб. Сроки, дней
Адаптация фундамента (изменение типа фундамента) по запросу 14 рабочих дней
Дизайн интерьера (стоимость от 2200руб. за квад.метр площади) по запросу 30 рабочих дней
Внесение изменений в проект по запросу 20 рабочих дней
Фэншуй дома 20 000 ₽ 14 рабочих дней в корзину
Фэншуй участка 15 000 ₽ 14 рабочих дней в корзину
Фэншуй полная консультация дом+участок с выездом на объект 100 000 ₽ 30 рабочих дней в корзину
Опции проекта вы можете заказать в корзине при оформлении заказа
Варианты проекта Сравнить все варианты
Избранные проекты
Избранные строители
Отзывы покупателей
Рейтинг покупателей
0 / 5 5 5 1
На основе 1 оценок покупателей
0%
0%
0%
0%
0%
Отзывы о проекте D5997
Отзыв о проекте D5997
Чтобы оставить отзыв, пожалуйста авторизуйтесь.
Подбор строительной компании
Не знаете кому доверить строительство дома? Мы можем помочь! Подберем для вас из сотен наших партнеров несколько компаний с лучшем соотношением цена/качество под конкретно ваш запрос.
Подобрать