Главная Проекты домов Проект двухэтажного дома из газобетона и бруса, с тремя балконами и террасой

D6049 Проект двухэтажного дома из газобетона и бруса, с тремя балконами и террасой

Сравнить проект В избранное
Проект двухэтажного дома из газобетона и бруса, с тремя балконами и террасой / 1
Проект двухэтажного дома из газобетона и бруса, с тремя балконами и террасой / 2
Проект двухэтажного дома из газобетона и бруса, с тремя балконами и террасой / 1
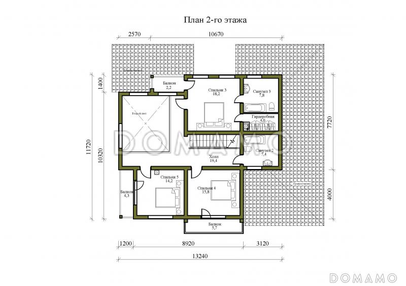
Проект двухэтажного дома из газобетона и бруса, с тремя балконами и террасой / 2
D6049
267 м²
Подготовка проекта:
8 рабочих дней
Стоимость проекта
Купить проект
Задайте вопросы по проекту нашему архитектору
8 (800) 200-28-83
Время работы: пн-вс: с 9:00 до 20:00
Задать вопрос по проекту

Технические характеристики
Общие
Материал стен
Брус
,
Газобетон
Общая площадь
267 м²
Жилая площадь
122.2 м²
Площадь застройки
224.5 м²
Приведенная площадь
240.78 м²
Количество жилых комнат/спален
5
Этажи
2 этажа
Гараж
Нет гаража
Количество машин
2
Подвал / цокольный этаж
Без подвала
Длина дома
16.4 м
Ширина дома
12.0 м
Высота в коньке
9.0 м
Кровля
Металлочерепица
Облицовка внешних стен
Без облицовки
,
Облицовка камнем
Толщина несущих наружных стен
375 мм
Межэтажные перекрытия
Монолитные
Внутренние не несущие перегородки
Газобетонные
Фундамент
Монолитная ж/бетонная плита
Терраса
Терраса крытая
Дополнительные
Окна
Окна до пола
Второй свет
Есть
Камин
Есть
Сауна/баня внутри
Нет
Площадь гостиной
28.3 м²
Площадь кухни
17.6 м²
Количество санузлов
3
Окно в ванной комнате
Есть
Котельная
Есть
Хозяйский санузел
Есть
Хозяйская гардеробная
Есть
Кладовая
1
Балкон / лоджия
Балкон
Планы помещений
Описание проекта
Компания Domamo предлагает проект двухэтажного дома из газобетона и бруса, с тремя балконами и террасой D6049. Общая площадь - 267 м2, размер - 16.4х12.0 м. Фундамент - монолитная ж/бетонная плита, кровля - металлочерепица, внешняя отделка - без облицовки облицовка камнем. Для заказа проекта или внесения изменений свяжитесь с нами с помощью форм обратной связи на сайте или по телефону +7 (343) 357-92-70.
Категории проекта: деревянные для постоянного проживания пенобетон из бруса в английском стиле в скандинавском стиле от 200 до 300 кв.м в европейском стиле с террасой двухэтажные дома из бруса из бруса в стиле хай-тек из бруса в стиле модерн европейские дома из профилированного бруса дома шале из бруса финские дома из бруса из бруса в стиле минимализм из бруса в немецком стиле современные дома из бруса из бруса в стиле замка из газобетона в стиле хай-тек из газобетона в стиле шале из газобетона в английском стиле из газобетона в немецком стиле из газобетона готовые из профилированного бруса в финском стиле двухэтажные с котельной со вторым светом двухэтажные из газобетона из газосиликатных блоков двухэтажные деревянные двухэтажные из пеноблоков с двухскатной крышей загородные из керамзитобетонных блоков с камином с гардеробной с балконом из газобетона с террасой из блоков двухэтажные из блоков из пеноблоков с террасой загородные дома из бруса загородные из газобетона Проекты деревянных домов с террасой Проекты двухэтажных домов с террасой Проекты двухэтажных домов с верандой без гаража с террасой и камином из бруса для постоянного проживания деревянные для круглогодичного проживания каменные с балконом и террасой из пеноблоков загородные с 5 спальнями сложной формы двухэтажные с камином двухэтажные с двускатной крышей двухэтажные со вторым светом двухэтажные с балконом двухэтажные с балконом и террасой двухэтажные без гаража из газобетона от 200 до 300 кв.м из газобетона с двухскатной крышей из газобетона в скандинавском стиле из газобетона с балконом из газобетона с котельной из газобетона готовые из газобетона с камином из газобетона с большой кухней из газобетона для постоянного проживания из газобетона со вторым светом двухэтажные из газобетона без гаража двухэтажные из газобетона с террасой двухэтажные из газобетона с камином двухэтажные из газобетона с котельной двухэтажные из газобетона со вторым светом двухэтажные из газобетона с двухскатной крышей двухэтажные из газобетона без подвала скандинавские для постоянного проживания скандинавские без гаража скандинавские с гаражом на 2 машины скандинавские с окнами в пол скандинавские с террасой скандинавские с большой кухней скандинавские готовые скандинавские с вторым светом скандинавские с балконом скандинавские с камином скандинавские от 200 до 300 м2 скандинавские с двухскатной крышей скандинавские с котельной деревянные в скандинавском стиле деревянные с окнами в пол деревянные с вторым светом деревянные с балконом деревянные с камином деревянные без гаража деревянные готовые деревянные без подвала деревянные с большой кухней деревянные от 200 до 300 м2 из пеноблоков в скандинавском стиле из пеноблоков с двухскатной крышей из пеноблоков с окнами до пола из пеноблоков с вторым светом из пеноблоков нестандартные из пеноблоков с балконом из пеноблоков для постоянного проживания из пеноблоков готовые из пеноблоков с камином из пеноблоков от 200 до 300 м2 из пеноблоков с большой кухней недорогие двухэтажные недорогие без гаража недорогие с террасой недорогие для постоянного проживания недорогие с двухскатной крышей недорогие с окнами до пола недорогие без бани недорогие с котельной недорогие с вторым светом недорогие с балконом недорогие с камином недорогие сложной формы недорогие от 200 до 300 м2 из клееного бруса без гаража из бруса готовые из бруса с окном в ванной комнате из бруса с камином из бруса сложной формы из бруса с балконом из бруса с вторым светом из бруса с окнами до пола из бруса скандинавские из бруса с двухскатной крышей из бруса с фундаментом из монолитной железобетонной плиты из бруса без облицовки из бруса с кровлей из металлочерепицы из бруса с хозяйской гардеробной из бруса с хозяйским санузлом из бруса с котельной из бруса без сауны из бруса с выходом на террасу из гостиной из бруса с крытой террасой из бруса без подвала из бруса без гаража из бруса от 200 до 300 м2 из бруса с большой кухней Показать все категории Скрыть категории

Похожие проекты
Состав проекта
Входит в стоимость
Цена, руб. Сроки, дней
Комплект архитектурно-строительных чертежей (АС) Входит в стоимость Готов к отправке
Готово к продаже
Цена, руб. Сроки, дней
Паспорт рабочего проекта 5 000 ₽ 3 рабочих дня в корзину
Дополнительная копия проекта формата А3 4 000 ₽ Готов к отправке в корзину
Электронная копия проекта (скан распечатанной версии) 4 000 ₽ 3 рабочих дня в корзину
Разрабатывается отдельно
Цена, руб. Сроки, дней
Адаптация фундамента (изменение типа фундамента) по запросу 14 рабочих дней
Дизайн интерьера (стоимость от 2200руб. за квад.метр площади) по запросу 30 рабочих дней
Внесение изменений в проект по запросу 20 рабочих дней
Инженерные разделы: ВК + ОВ + ЭО 40 000 ₽ 20 рабочих дней в корзину
Зеркалирование проекта (для которого нет зеркальной версии) 8 000 ₽ 5 рабочих дней в корзину
Разработка Генплана участка, в масштабе 1:250 7 500 ₽ 5 рабочих дней в корзину
Фэншуй дома 20 000 ₽ 14 рабочих дней в корзину
Фэншуй участка 15 000 ₽ 14 рабочих дней в корзину
Фэншуй полная консультация дом+участок с выездом на объект 100 000 ₽ 30 рабочих дней в корзину
Опции проекта вы можете заказать в корзине при оформлении заказа
Предложения строителей Свердловская область
Подбор строительной компании
Не знаете кому доверить строительство дома? Мы можем помочь! Подберем для вас из сотен наших партнеров несколько компаний с лучшем соотношением цена/качество под конкретно ваш запрос.
Подобрать
Посмотреть еще 1 компанию Свернуть
Отзывы покупателей
Рейтинг покупателей
0 / 5 5 5 1
На основе 1 оценок покупателей
0%
0%
0%
0%
0%
Отзывы о проекте D6049
Отзыв о проекте D6049
Чтобы оставить отзыв, пожалуйста авторизуйтесь.
Подбор строительной компании
Не знаете кому доверить строительство дома? Мы можем помочь! Подберем для вас из сотен наших партнеров несколько компаний с лучшем соотношением цена/качество под конкретно ваш запрос.
Подобрать