Главная Проекты домов Проект двухэтажного дома с крытой террасой на первом и открытой террасой на втором этажах

D6144 Проект двухэтажного дома с крытой террасой на первом и открытой террасой на втором этажах

Сравнить проект В избранное
Проект двухэтажного дома с крытой террасой на первом и открытой террасой на втором этажах / 1
Проект двухэтажного дома с крытой террасой на первом и открытой террасой на втором этажах / 2
Проект двухэтажного дома с крытой террасой на первом и открытой террасой на втором этажах / 3
Проект двухэтажного дома с крытой террасой на первом и открытой террасой на втором этажах / 4
Проект двухэтажного дома с крытой террасой на первом и открытой террасой на втором этажах / 1
Проект двухэтажного дома с крытой террасой на первом и открытой террасой на втором этажах / 2
Проект двухэтажного дома с крытой террасой на первом и открытой террасой на втором этажах / 3
Проект двухэтажного дома с крытой террасой на первом и открытой террасой на втором этажах / 4
D6144
373 м²
Технические характеристики
Общие
Материал стен
Газобетон
Общая площадь
373 м²
Жилая площадь
130 м²
Площадь застройки
306 м²
Приведенная площадь
369.61 м²
Количество жилых комнат/спален
4
Этажи
2 этажа
Гараж
Нет гаража
Количество машин
2
Подвал / цокольный этаж
Без подвала
Длина дома
21.4 м
Ширина дома
18.4 м
Высота в коньке
10.4 м
Кровля
Металлочерепица
Облицовка внешних стен
Мокрая штукатурка
Толщина несущих наружных стен
375 мм
Межэтажные перекрытия
Монолитные
Внутренние не несущие перегородки
Газобетонные
,
Кирпичные
Фундамент
Малозаглубленные ростверки
Терраса
Терраса открытая
,
Терраса крытая
Дополнительные
Окна
Окна до пола
Камин
Есть
Сауна/баня внутри
Есть
Площадь гостиной
41.3 м²
Площадь кухни
17.2 м²
Количество санузлов
4
Котельная
Есть
Постирочная
Есть
Хозяйский санузел
Есть
Хозяйская гардеробная
Есть
Кладовая
4
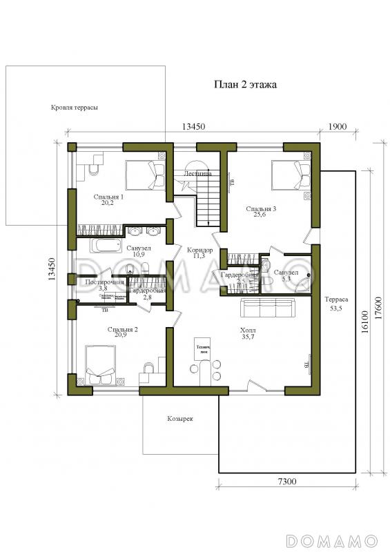
Планы помещений
Описание проекта
Компания Domamo предлагает проект двухэтажного дома с крытой террасой на первом и открытой террасой на втором этажах D6144. Общая площадь - 373 м2, размер - 21.4х18.4 м. Фундамент - малозаглубленные ростверки, кровля - металлочерепица, внешняя отделка - мокрая штукатурка. Для заказа проекта или внесения изменений свяжитесь с нами с помощью форм обратной связи на сайте или по телефону +7 (343) 357-92-70.
Категории проекта: для постоянного проживания пенобетон современные от 300 до 400 кв.м в европейском стиле с террасой из газобетона в немецком стиле из газобетона готовые двухэтажные с котельной двухэтажные из газобетона из газосиликатных блоков двухэтажные из пеноблоков с баней загородные с четырехскатной крышей из керамзитобетонных блоков с камином с сауной с гардеробной из газобетона с баней из газобетона с террасой из блоков двухэтажные из блоков из пеноблоков с баней из пеноблоков с террасой загородные из газобетона Проекты двухэтажных домов с террасой Проекты двухэтажных домов с верандой без гаража с террасой и камином с 4 спальнями двухэтажные с сауной из пеноблоков загородные сложной формы двухэтажные с камином двухэтажные с 4 спальнями двухэтажные в современном стиле двухэтажные без гаража из газобетона от 300 до 400 кв.м из газобетона с четырехскатной крышей из газобетона в европейском стиле из газобетона современные из газобетона с котельной из газобетона готовые из газобетона с камином из газобетона с большой кухней из газобетона с четырьмя спальнями из газобетона большие из газобетона для постоянного проживания двухэтажные из газобетона без гаража двухэтажные из газобетона с террасой двухэтажные из газобетона с камином двухэтажные из газобетона с прачечной двухэтажные из газобетона с котельной двухэтажные из газобетона в европейском стиле двухэтажные из газобетона современные двухэтажные из газобетона с четырехскатной крышей двухэтажные из газобетона с вальмовой крышей двухэтажные из газобетона большие двухэтажные из газобетона без подвала двухэтажные из газобетона с баней двухэтажные из газобетона с 4 спальнями двухэтажные из газобетона с большой гостиной современные без гаража современные с окнами в пол современные с террасой современные большие европейские для постоянного проживания европейские готовые европейские с гаражом на 2 машины европейские без подвала европейские с террасой европейские с сауной европейские с котельной европейские с прачечной европейские с кладовой европейские с окнами в пол европейские с четырехскатной крышей европейские с вальмовой крышей европейские с камином европейские 300-400 м2 из пеноблоков в современном стиле из пеноблоков в европейском стиле из пеноблоков с четырехскатной крышей из пеноблоков с вальмовой крышей из пеноблоков с окнами до пола из пеноблоков нестандартные из пеноблоков для постоянного проживания из пеноблоков готовые из пеноблоков с камином из пеноблоков от 300 до 400 м2 из пеноблоков большие из пеноблоков с 4 спальнями из пеноблоков с большой гостиной из пеноблоков с большой кухней из клееного бруса без гаража Показать все категории Скрыть категории

Похожие проекты
Состав проекта
Входит в стоимость
Цена, руб. Сроки, дней
Комплект архитектурно-строительных чертежей (АС) Входит в стоимость Готов к отправке
Готово к продаже
Цена, руб. Сроки, дней
Паспорт рабочего проекта 5 000 ₽ 3 рабочих дня в корзину
Дополнительная копия проекта формата А3 4 000 ₽ Готов к отправке в корзину
Электронная копия проекта (скан распечатанной версии) 4 000 ₽ 3 рабочих дня в корзину
Разрабатывается отдельно
Цена, руб. Сроки, дней
Адаптация фундамента (изменение типа фундамента) по запросу 14 рабочих дней
Дизайн интерьера (стоимость от 2200руб. за квад.метр площади) по запросу 30 рабочих дней
Внесение изменений в проект по запросу 20 рабочих дней
Зеркалирование проекта (для которого нет зеркальной версии) 8 000 ₽ 5 рабочих дней в корзину
Разработка Генплана участка, в масштабе 1:250 7 500 ₽ 5 рабочих дней в корзину
Фэншуй дома 20 000 ₽ 14 рабочих дней в корзину
Фэншуй участка 15 000 ₽ 14 рабочих дней в корзину
Фэншуй полная консультация дом+участок с выездом на объект 100 000 ₽ 30 рабочих дней в корзину
Опции проекта вы можете заказать в корзине при оформлении заказа
Предложения строителей Свердловская область
Подбор строительной компании
Не знаете кому доверить строительство дома? Мы можем помочь! Подберем для вас из сотен наших партнеров несколько компаний с лучшем соотношением цена/качество под конкретно ваш запрос.
Подобрать
Посмотреть еще 3 компании Свернуть
Отзывы покупателей
Рейтинг покупателей
0 / 5 5 5 1
На основе 1 оценок покупателей
0%
0%
0%
0%
0%
Отзывы о проекте D6144
Отзыв о проекте D6144
Чтобы оставить отзыв, пожалуйста авторизуйтесь.
Подбор строительной компании
Не знаете кому доверить строительство дома? Мы можем помочь! Подберем для вас из сотен наших партнеров несколько компаний с лучшем соотношением цена/качество под конкретно ваш запрос.
Подобрать