Главная Проекты домов Проект коттеджа с бассейном и стеклянным куполом

D626 Проект коттеджа с бассейном и стеклянным куполом

Сравнить проект В избранное
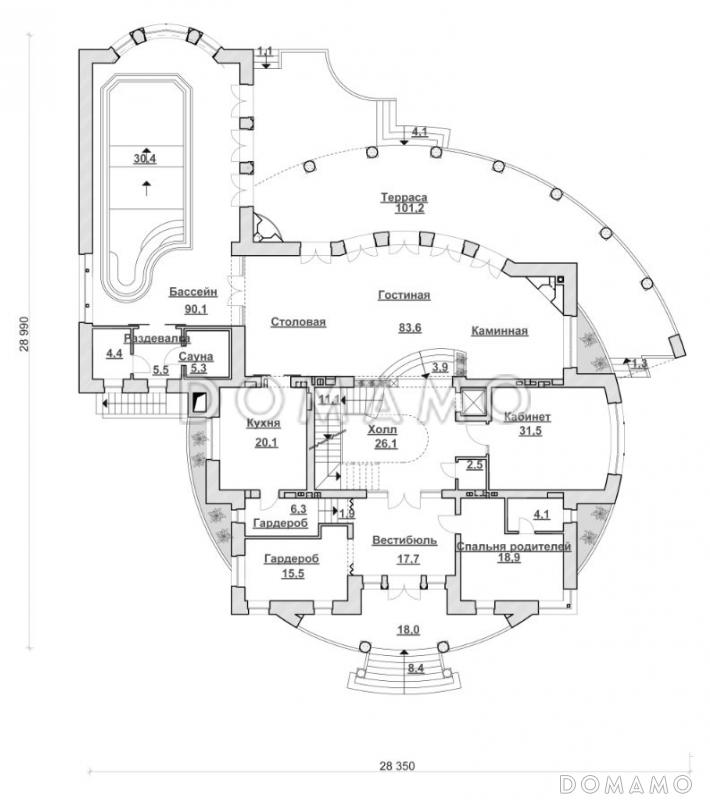
Проект коттеджа с бассейном и стеклянным куполом / 1
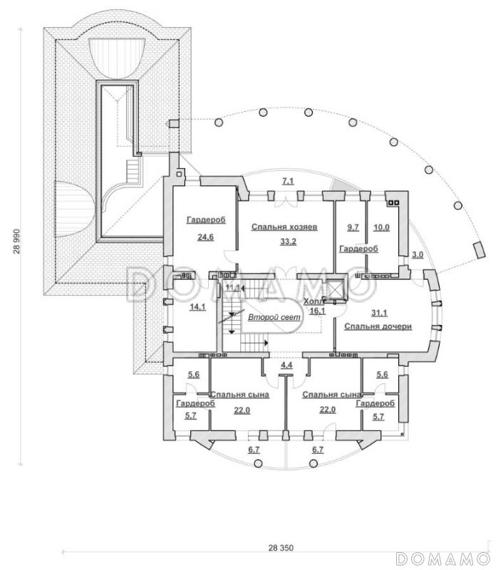
Проект коттеджа с бассейном и стеклянным куполом / 2
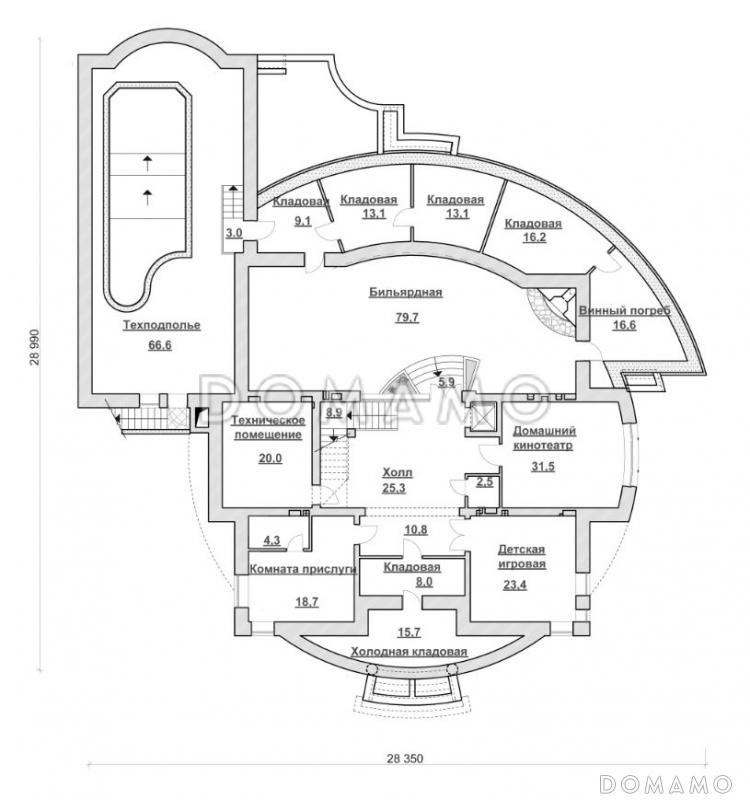
Проект коттеджа с бассейном и стеклянным куполом / 3
Проект коттеджа с бассейном и стеклянным куполом / 1
Проект коттеджа с бассейном и стеклянным куполом / 2
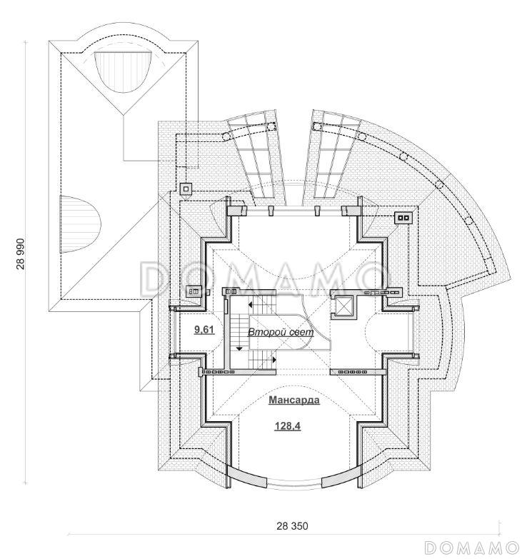
Проект коттеджа с бассейном и стеклянным куполом / 3
D626
1143 м²
Подготовка проекта:
Готов к отправке
Стоимость проекта
Купить проект
Задайте вопросы по проекту нашему архитектору
8 (800) 200-28-83
Время работы: пн-вс: с 9:00 до 20:00
Задать вопрос по проекту

Технические характеристики
Общие
Материал стен
Кирпич
Общая площадь
1143 м²
Жилая площадь
524 м²
Площадь застройки
596 м²
Приведенная площадь
1088.31 м²
Количество жилых комнат/спален
7
Этажи
2 этажа + мансарда
Гараж
Нет гаража
Подвал / цокольный этаж
С окнами
Длина дома
29 м
Ширина дома
28.35 м
Кровля
Металлочерепица
Облицовка внешних стен
Мокрая штукатурка
,
Облицовка камнем
Толщина несущих наружных стен
640 мм
Межэтажные перекрытия
Монолитные
Внутренние не несущие перегородки
Кирпичные
Фундамент
Монолитная ж/бетонная плита
Терраса
Терраса крытая
Дополнительные
Окна
Окна до пола
,
Круглые окна
Камин
Есть
Сауна/баня внутри
Есть
Бассейн
Есть
Площадь гостиной
83.6 м²
Площадь кухни
20.1 м²
Количество санузлов
5
Окно в ванной комнате
Есть
Котельная
Есть
Кабинет
Есть
Бильярдная
Есть
Хозяйский санузел
Есть
Хозяйская гардеробная
Есть
Кладовая
15
Балкон / лоджия
Балкон
Планы помещений
Фасады
Описание проекта

Просторный особняк с семью жилыми комнатами подойдет для семьи из нескольких поколений. Здание оригинальной формы дополнено флигелем, соединенным с основной частью дома полукруглой террасой. Крышу украшает стеклянный купол, наполняющий дневным светом холл.

Планировка предусматривает 2 этажа и еще два уровня: цоколь и мансарду. На них располагаются подсобные помещения и дополнительные комнаты. Дневная зона на первом этаже представляет собой столовую, гостиную и каминную с панорамным обзором. Также, на этом этаже расположены спальня и кабинет. Во флигеле находится бассейн с сауной. Спальни хозяев и детские размещены на втором этаже.

Преимущества и особенности:

  • стеклянный купол в центре крыши делает лестничный холл светлее,

  • все спальни на втором этаже дополняются гардеробными и ванными,

  • на цокольном этаже кроме кладовых и комнаты прислуги имеется домашний кинотеатр, а также зал, в котором можно организовать бильярдную.

Категории проекта: с мансардой для постоянного проживания кирпич в классическом стиле современные от 500 кв.м кирпичные дома хай-тек классические кирпичные дома кирпичные дома с мансардой в европейском стиле с террасой из кирпича с террасой готовые с цокольным этажом загородные из кирпича двухэтажные из кирпича двухэтажные из кирпича с мансардой двухэтажные двухэтажные с мансардой кирпичные с цокольным этажом кирпичные с котельной с котельной с баней с цокольным этажом и мансардой с бассейном загородные с четырехскатной крышей с мансардной крышей с баней и бассейном с бильярдной с камином с сауной с гардеробной с балконом с барбекю кирпичные с баней кирпичные с бассейном двухэтажные с цокольным этажом современные кирпичные Проекты двухэтажных домов с террасой Проекты двухэтажных домов с верандой на две семьи без гаража с террасой и камином с кабинетом с мансардой и террасой особняки каменные двухэтажные с сауной с балконом и террасой большие сложной формы двухэтажные с камином двухэтажные с балконом двухэтажные с балконом и террасой двухэтажные с бассейном двухэтажные в классическом стиле двухэтажные в современном стиле двухэтажные без гаража с мансардой с баней с мансардой с котельной с мансардой с камином с мансардой с бассейном с мансардой с четырехскатной крышей с мансардой в классическом стиле с мансардой современные с мансардой с окнами до пола с мансардой с балконом с мансардой сложной формы с мансардой готовые с мансардой для постоянного проживания с мансардой элитные с мансардой большие современные без гаража современные с окнами в пол современные с террасой современные большие современные с подвалом классические для постоянного проживания классические без гаража классические с окнами в пол классические с террасой классические готовые классические элитные классические с котельной классические с большой гостиной классические с большой кухней классические с изолированной кухней классические с подвалом классические с сауной классические с балконом классические нестандартные классические с камином классические с бассейном классические с четырехскатной крышей классические с мансардной крышей классические с кабинетом большие готовые большие в классическом стиле большие с четырехскатной крышей большие с балконом большие сложной формы большие с камином большие с бассейном большие с окном в ванной комнате большие с окнами в пол большие без гаража большие с большой кухней большие с изолированной кухней большие с террасой большие с баней большие с котельной большие с кабинетом большие с мастер-спальней из клееного бруса без гаража Показать все категории Скрыть категории

Похожие проекты
Состав проекта
Входит в стоимость
Цена, руб. Сроки, дней
Комплект архитектурно-строительных чертежей (АС) Входит в стоимость Готов к отправке
Разрабатывается отдельно
Цена, руб. Сроки, дней
Адаптация фундамента (изменение типа фундамента) по запросу 14 рабочих дней
Дизайн интерьера (стоимость от 2200руб. за квад.метр площади) по запросу 30 рабочих дней
Внесение изменений в проект по запросу 20 рабочих дней
Фэншуй дома 20 000 ₽ 14 рабочих дней в корзину
Фэншуй участка 15 000 ₽ 14 рабочих дней в корзину
Фэншуй полная консультация дом+участок с выездом на объект 100 000 ₽ 30 рабочих дней в корзину
Опции проекта вы можете заказать в корзине при оформлении заказа
Предложения строителей Свердловская область
Подбор строительной компании
Не знаете кому доверить строительство дома? Мы можем помочь! Подберем для вас из сотен наших партнеров несколько компаний с лучшем соотношением цена/качество под конкретно ваш запрос.
Подобрать
Посмотреть еще 2 компании Свернуть
Отзывы покупателей
Рейтинг покупателей
0 / 5 5 5 1
На основе 1 оценок покупателей
0%
0%
0%
0%
0%
Отзывы о проекте D626
Отзыв о проекте D626
Чтобы оставить отзыв, пожалуйста авторизуйтесь.
Подбор строительной компании
Не знаете кому доверить строительство дома? Мы можем помочь! Подберем для вас из сотен наших партнеров несколько компаний с лучшем соотношением цена/качество под конкретно ваш запрос.
Подобрать