Главная Проекты домов Проект трехэтажного кирпичного дома с двойным гаражом

D6328 Проект трехэтажного кирпичного дома с двойным гаражом

Сравнить проект В избранное
Проект трехэтажного кирпичного дома с двойным гаражом / 1
Проект трехэтажного кирпичного дома с двойным гаражом / 2
Проект трехэтажного кирпичного дома с двойным гаражом / 3
Проект трехэтажного кирпичного дома с двойным гаражом / 1
Проект трехэтажного кирпичного дома с двойным гаражом / 2
Проект трехэтажного кирпичного дома с двойным гаражом / 3
D6328
262 м²
Подготовка проекта:
25 рабочих дней
Стоимость проекта
Купить проект
Задайте вопросы по проекту нашему архитектору
8 (800) 200-28-83
Время работы: пн-вс: с 9:00 до 20:00
Задать вопрос по проекту

Технические характеристики
Общие
Материал стен
Кирпич
Общая площадь
262 м²
Жилая площадь
114 м²
Приведенная площадь
261.66 м²
Количество жилых комнат/спален
4
Этажи
2 этажа
Гараж
Подземный гараж
Количество машин
2
Подвал / цокольный этаж
С окнами
Длина дома
11.9 м
Ширина дома
11.8 м
Высота в коньке
11.9 м
Кровля
Натуральная черепица
Облицовка внешних стен
Мокрая штукатурка
Толщина несущих наружных стен
380 мм
Межэтажные перекрытия
Монолитные
Внутренние не несущие перегородки
Кирпичные
Фундамент
Монолитная ж/бетонная плита
Терраса
Без террасы
Дополнительные
Окна
Окна до пола
Камин
Есть
Сауна/баня внутри
Есть
Площадь гостиной
38.2 м²
Площадь кухни
13.5 м²
Количество санузлов
4
Окно в ванной комнате
Есть
Котельная
Есть
Кладовая
3
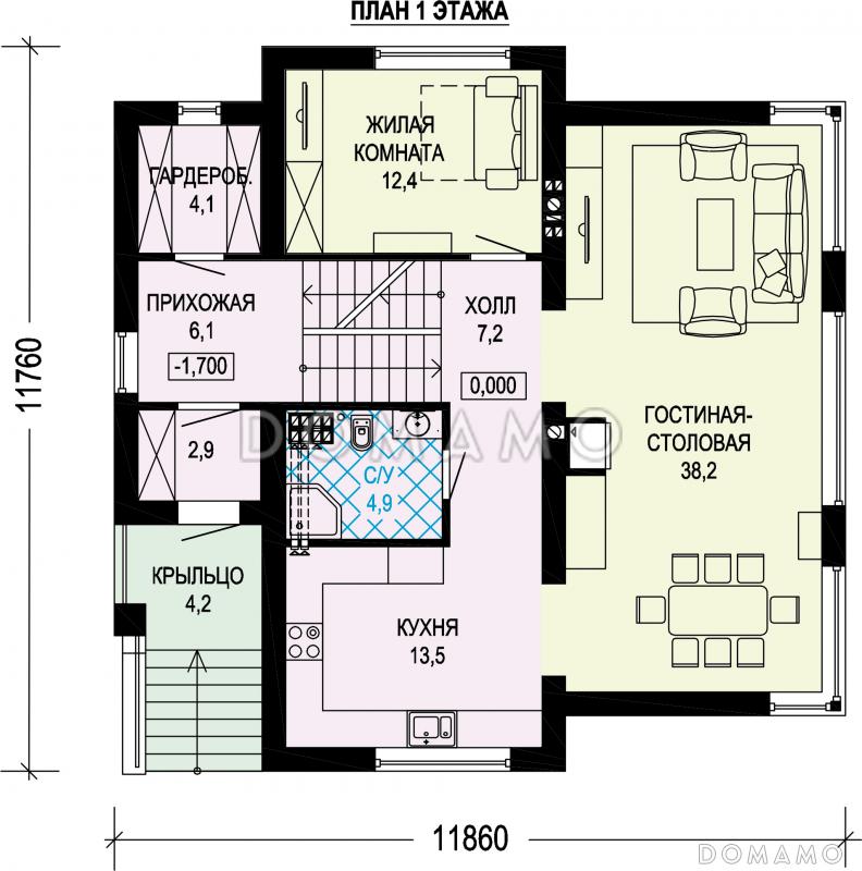
Планы помещений
Описание проекта
Компания Domamo предлагает проект трехэтажного кирпичного дома с двойным гаражом D6328. Общая площадь - 262 м2, размер - 11.9х11.8 м. Фундамент - монолитная ж/бетонная плита, кровля - натуральная черепица, внешняя отделка - мокрая штукатурка. Для заказа проекта или внесения изменений свяжитесь с нами с помощью форм обратной связи на сайте или по телефону +7 (343) 357-92-70.

Похожие проекты
Состав проекта
Входит в стоимость
Цена, руб. Сроки, дней
Комплект архитектурно-строительных чертежей (АС) Входит в стоимость 25 рабочих дней
Готово к продаже
Цена, руб. Сроки, дней
Зеркальная версия проекта Входит в стоимость 25 рабочих дней
Паспорт рабочего проекта 5 000 ₽ 25 рабочих дней в корзину
Инженерные разделы: ВК + ОВ + ЭО 25 000 ₽ 25 рабочих дней в корзину
Дополнительная копия проекта формата А3 3 000 ₽ 25 рабочих дней в корзину
Две дополнительные копии проекта формата А3 + 1 паспорт рабочего проекта 10 100 ₽ 25 рабочих дней в корзину
Электронная копия проекта (скан распечатанной версии) 4 000 ₽ 3 рабочих дня в корзину
Разрабатывается отдельно
Цена, руб. Сроки, дней
Адаптация фундамента (изменение типа фундамента) по запросу 14 рабочих дней
Дизайн интерьера (стоимость от 2200руб. за квад.метр площади) по запросу 30 рабочих дней
Внесение изменений в проект по запросу 20 рабочих дней
Фэншуй дома 20 000 ₽ 14 рабочих дней в корзину
Фэншуй участка 15 000 ₽ 14 рабочих дней в корзину
Фэншуй полная консультация дом+участок с выездом на объект 100 000 ₽ 30 рабочих дней в корзину
Опции проекта вы можете заказать в корзине при оформлении заказа
Предложения строителей Свердловская область
Подбор строительной компании
Не знаете кому доверить строительство дома? Мы можем помочь! Подберем для вас из сотен наших партнеров несколько компаний с лучшем соотношением цена/качество под конкретно ваш запрос.
Подобрать
Посмотреть еще 2 компании Свернуть
Отзывы покупателей
Рейтинг покупателей
0 / 5 5 5 1
На основе 1 оценок покупателей
0%
0%
0%
0%
0%
Отзывы о проекте D6328
Отзыв о проекте D6328
Чтобы оставить отзыв, пожалуйста авторизуйтесь.
Подбор строительной компании
Не знаете кому доверить строительство дома? Мы можем помочь! Подберем для вас из сотен наших партнеров несколько компаний с лучшем соотношением цена/качество под конкретно ваш запрос.
Подобрать