Главная Проекты домов Проект уютного компактного коттеджа с зеленой крышей и панорамным эркером гостиной

D659 Проект уютного компактного коттеджа с зеленой крышей и панорамным эркером гостиной

Сравнить проект В избранное
Проект уютного компактного коттеджа с зеленой крышей и панорамным эркером гостиной / 1
Проект уютного компактного коттеджа с зеленой крышей и панорамным эркером гостиной / 2
Проект уютного компактного коттеджа с зеленой крышей и панорамным эркером гостиной / 1
Проект уютного компактного коттеджа с зеленой крышей и панорамным эркером гостиной / 2
D659
150 м²
Технические характеристики
Общие
Материал стен
Газобетон
Общая площадь
150 м²
Жилая площадь
95.2 м²
Площадь застройки
108.6 м²
Приведенная площадь
143.3 м²
Количество жилых комнат/спален
5
Этажи
1 этаж + мансарда
Гараж
Нет гаража
Подвал / цокольный этаж
Без подвала
Длина дома
10 м
Ширина дома
8.4 м
Высота в коньке
10 м
Кровля
Гибкая черепица
Облицовка внешних стен
Мокрая штукатурка
,
Облицовочный кирпич
Толщина несущих наружных стен
400 мм
Межэтажные перекрытия
По деревянным балкам
Внутренние не несущие перегородки
Газобетонные
,
Каркасно-обшивные
Фундамент
Монолитная ж/бетонная плита
Терраса
Терраса крытая
Дополнительные
Окна
Окна до пола
Камин
Есть
Сауна/баня внутри
Нет
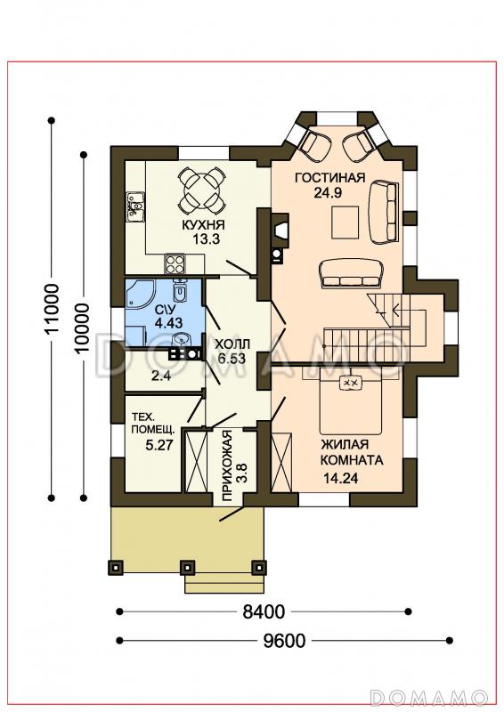
Площадь гостиной
24.9 м²
Площадь кухни
13.3 м²
Количество санузлов
2
Окно в ванной комнате
Есть
Котельная
Есть
Кабинет
Есть
Кладовая
1
Балкон / лоджия
Балкон
Планы помещений
Фасады
Описание проекта

Компактный по площади двухэтажный коттедж из пенобетона, рассчитанный на круглогодичное проживание разновозрастной семьи из 4-х и более человек. Хозяйственные помещения удобно расположены на первом этаже вместе со спальней для гостей и обширной гостиной со светлым эркером — источником естественного света и тепла. Жилая зона состоит из четырех удобных спален и отдельного санузла.

Важно, что высота на 2-ом этаже под скатами кровли - 1,8м. То есть второй этаж используется полностью (без т. н. "застрех").

Также следует отметить следующие особенности:

  • Теплый и недорогой материал стен — ячеистый бетон.
  • Компактная планировка — дополнительное снижение расходов на отопление.
  • Спальня на первом этаже для гостей или пожилых членов семьи.
  • Удобная широкая лестница.
  • Большое пространство гостиной с возможностью объединения с кухней.
  • Удобное расположение технических помещений.
  • Крытая терраса для отдыха.
Категории проекта: с мансардой для постоянного проживания пенобетон от 100 до 200 кв.м 8х10 в европейском стиле с эркером с террасой из пеноблоков с мансардой из газобетона с мансардой и эркером из газобетона с эркером из газобетона в немецком стиле из газобетона готовые из газобетона с мансардой одноэтажные с мансардой одноэтажные до 150 кв. м. одноэтажные с котельной с котельной одноэтажные из газобетона из газосиликатных блоков до 150 кв.м до 200 кв.м с двухскатной крышей 6х10 загородные из керамзитобетонных блоков с камином прямоугольные с балконом в стиле эклектика из газобетона с террасой с эркером и мансардой из блоков одноэтажные из блоков из блоков с мансардой из блоков с эркером Проекты домов из пеноблоков с эркером из пеноблоков с террасой загородные из газобетона Проекты одноэтажных домов с эркером Проекты одноэтажных домов с террасой Типовые проекты загородных одноэтажных домов без гаража одноэтажные без гаража с террасой и камином облицованные кирпичом с кабинетом одноэтажных из керамзитобетонных блоков с мансардой до 150 кв м с мансардой и террасой полутораэтажные одноэтажные до 200 кв м одноэтажные 8х10 с балконом и террасой из пеноблоков загородные с 5 спальнями с мансардой с котельной с мансардой с камином с мансардой с двухскатной крышей с мансардой в европейском стиле с мансардой с окнами до пола с мансардой с балконом с мансардой прямоугольные с мансардой готовые с мансардой для постоянного проживания с мансардой до 200 кв.м с мансардой от 100 до 150 кв.м одноэтажные из газобетона с террасой одноэтажные из газобетона до 150 кв. м одноэтажные из газобетона с мансардой из газобетона до 150 кв.м из газобетона до 200 кв.м из газобетона от 100 до 200 кв.м из газобетона с двухскатной крышей из газобетона в европейском стиле из газобетона с балконом из газобетона с котельной из газобетона прямоугольные из газобетона готовые из газобетона с камином из газобетона с кабинетом из газобетона с изолированной кухней из газобетона 8х10 из газобетона для постоянного проживания двухэтажные из газобетона без гаража двухэтажные из газобетона с террасой двухэтажные из газобетона с камином двухэтажные из газобетона с кабинетом двухэтажные из газобетона с котельной двухэтажные из газобетона в европейском стиле двухэтажные из газобетона с двухскатной крышей двухэтажные из газобетона до 150 кв. м двухэтажные из газобетона до 200 кв. м двухэтажные из газобетона без подвала двухэтажные из газобетона с изолированной кухней двухэтажные из газобетона с эркером из газобетона с мансардой в стиле эклектика из газобетона с мансардой в европейском стиле из газобетона с мансардой с балконом из газобетона с мансардой с террасой из газобетона с мансардой с камином из газобетона с мансардой для постоянного проживания из газобетона с мансардой готовые из газобетона с мансардой с двухскатной крышей из газобетона с мансардой с изолированной кухней из газобетона с мансардой прямоугольные одноэтажные с мансардой для постоянного проживания одноэтажные с мансардой с изолированной кухней одноэтажные с мансардой в европейском стиле одноэтажные с мансардой в стиле эклектика одноэтажные с мансардой с балконом европейские для постоянного проживания европейские готовые европейские без подвала европейские с террасой европейские с изолированной кухней европейские с 2 санузлами европейские с котельной европейские с кабинетом европейские с кладовой европейские с балконом европейские прямоугольные европейские с окнами в пол европейские с двухскатной крышей европейские с камином европейские до 150 м2 европейские 100-200 м2 европейские 8х10 до 150 кв.м для постоянного проживания до 150 кв.м без гаража до 150 кв.м с двухскатной крышей до 150 кв.м с окнами до пола до 150 кв.м эклектика до 150 кв.м готовые до 150 кв.м с балконом до 150 кв.м прямоугольные до 150 кв.м с котельной до 150 кв.м с кабинетом до 150 кв.м с изолированной кухней до 150 кв.м без бани до 150 кв.м с террасой до 150 кв.м без подвала до 150 кв.м с камином из пеноблоков в стиле эклектика из пеноблоков в европейском стиле из пеноблоков с двухскатной крышей из пеноблоков с окнами до пола из пеноблоков прямоугольные из пеноблоков с балконом из пеноблоков для постоянного проживания из пеноблоков готовые из пеноблоков с камином из пеноблоков 8х10 из пеноблоков до 150 м кв. из пеноблоков от 100 до 200 м2 из пеноблоков с изолированной кухней недорогие с мансардой недорогие в стиле эклектика недорогие без гаража недорогие с террасой недорогие для постоянного проживания недорогие с двухскатной крышей недорогие с окнами до пола недорогие с изолированной кухней недорогие без бани недорогие с кабинетом недорогие с котельной недорогие с балконом недорогие с камином недорогие прямоугольные недорогие 8х10 недорогие до 150 м2 недорогие от 100 до 200 м2 из клееного бруса без гаража Показать все категории Скрыть категории

Похожие проекты
Состав проекта
Входит в стоимость
Цена, руб. Сроки, дней
Комплект архитектурно-строительных чертежей (АС) Входит в стоимость 3 рабочих дня
Готово к продаже
Цена, руб. Сроки, дней
Паспорт рабочего проекта 4 000 ₽ 3 рабочих дня в корзину
Дополнительная копия проекта формата А3 3 000 ₽ 3 рабочих дня в корзину
Две дополнительные копии проекта формата А3 + 1 паспорт рабочего проекта 10 000 ₽ 3 рабочих дня в корзину
Разрабатывается отдельно
Цена, руб. Сроки, дней
Адаптация фундамента (изменение типа фундамента) по запросу 14 рабочих дней
Дизайн интерьера (стоимость от 2200руб. за квад.метр площади) по запросу 30 рабочих дней
Внесение изменений в проект по запросу 20 рабочих дней
Фэншуй дома 20 000 ₽ 14 рабочих дней в корзину
Фэншуй участка 15 000 ₽ 14 рабочих дней в корзину
Фэншуй полная консультация дом+участок с выездом на объект 100 000 ₽ 30 рабочих дней в корзину
Опции проекта вы можете заказать в корзине при оформлении заказа
Варианты проекта Сравнить все варианты
Предложения строителей Свердловская область
Подбор строительной компании
Не знаете кому доверить строительство дома? Мы можем помочь! Подберем для вас из сотен наших партнеров несколько компаний с лучшем соотношением цена/качество под конкретно ваш запрос.
Подобрать
Посмотреть еще 3 компании Свернуть
Отзывы покупателей
Рейтинг покупателей
0 / 5 5 5 1
На основе 1 оценок покупателей
0%
0%
0%
0%
0%
Отзывы о проекте D659
Отзыв о проекте D659
Чтобы оставить отзыв, пожалуйста авторизуйтесь.
Подбор строительной компании
Не знаете кому доверить строительство дома? Мы можем помочь! Подберем для вас из сотен наших партнеров несколько компаний с лучшем соотношением цена/качество под конкретно ваш запрос.
Подобрать