Главная Проекты домов Проект двухэтажного дома из керамоблока с кабинетом и 4 спальнями

D6606 Проект двухэтажного дома из керамоблока с кабинетом и 4 спальнями

Сравнить проект В избранное
Технические характеристики
Общие
Материал стен
Керамоблок
Общая площадь
159 м²
Жилая площадь
87.8 м²
Площадь застройки
152.0 м²
Приведенная площадь
158.2 м²
Количество жилых комнат/спален
5
Этажи
2 этажа
Гараж
Нет гаража
Подвал / цокольный этаж
Без подвала
Длина дома
12.4 м
Ширина дома
10.9 м
Высота в коньке
7.5 м
Кровля
Рулонная кровля
Облицовка внешних стен
Деревянная вагонка
,
Мокрая штукатурка
Межэтажные перекрытия
Монолитные
Внутренние не несущие перегородки
Керамоблоки
Фундамент
Ленточный монолитный
Терраса
Терраса крытая
Дополнительные
Окна
Окна до пола
,
Панорамные окна
Сауна/баня внутри
Нет
Площадь гостиной
16.1 м²
Площадь кухни
17.4 м²
Количество санузлов
3
Окно в ванной комнате
Есть
Котельная
Есть
Кабинет
Есть
Хозяйский санузел
Есть
Хозяйская гардеробная
Есть
Кладовая
2
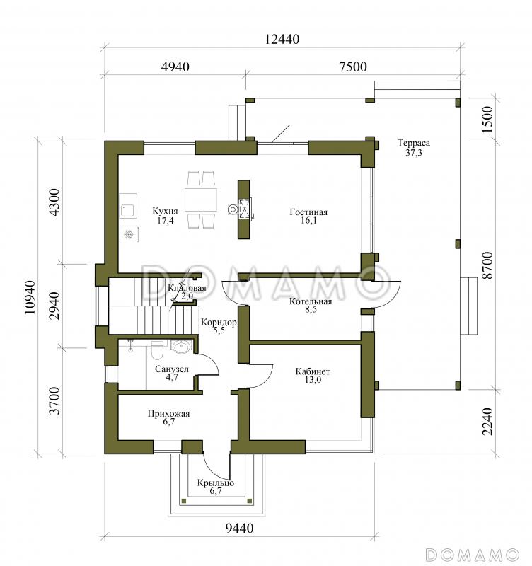
Планы помещений
Описание проекта
Компания Domamo предлагает проект двухэтажного дома из керамоблока с кабинетом и 4 спальнями D6606. Общая площадь - 159 м2, размер - 12.4х10.9 м. Фундамент - ленточный монолитный, кровля - рулонная кровля, внешняя отделка - деревянная вагонка мокрая штукатурка. Для заказа проекта или внесения изменений свяжитесь с нами с помощью форм обратной связи на сайте или по телефону +7 (343) 357-92-70.

Похожие проекты
Состав проекта
Входит в стоимость
Цена, руб. Сроки, дней
Комплект архитектурно-строительных чертежей (АС) Входит в стоимость 25 рабочих дней
Готово к продаже
Цена, руб. Сроки, дней
Паспорт рабочего проекта 5 000 ₽ 25 рабочих дней в корзину
Инженерные разделы: ВК + ОВ + ЭО 40 000 ₽ 25 рабочих дней в корзину
Дополнительная копия проекта формата А3 4 000 ₽ 25 рабочих дней в корзину
Электронная копия проекта (скан распечатанной версии) 4 000 ₽ 25 рабочих дней в корзину
Разрабатывается отдельно
Цена, руб. Сроки, дней
Адаптация фундамента (изменение типа фундамента) по запросу 14 рабочих дней
Дизайн интерьера (стоимость от 2200руб. за квад.метр площади) по запросу 30 рабочих дней
Внесение изменений в проект по запросу 20 рабочих дней
Зеркалирование проекта (для которого нет зеркальной версии) 8 000 ₽ 5 рабочих дней в корзину
Разработка Генплана участка, в масштабе 1:250 7 500 ₽ 5 рабочих дней в корзину
Фэншуй дома 20 000 ₽ 14 рабочих дней в корзину
Фэншуй участка 15 000 ₽ 14 рабочих дней в корзину
Фэншуй полная консультация дом+участок с выездом на объект 100 000 ₽ 30 рабочих дней в корзину
Опции проекта вы можете заказать в корзине при оформлении заказа
Предложения строителей Выбрать регион
Минимальная
16 136 399 ₽
Стандарт
18 983 999 ₽
Под чистовую отделку
24 679 200 ₽
Показать подробные комплектации
Подбор строительной компании
Не знаете кому доверить строительство дома? Мы можем помочь! Подберем для вас из сотен наших партнеров несколько компаний с лучшем соотношением цена/качество под конкретно ваш запрос.
Подобрать
Посмотреть еще 3 компании Свернуть
Отзывы покупателей
Рейтинг покупателей
0 / 5 5 5 1
На основе 1 оценок покупателей
0%
0%
0%
0%
0%
Отзывы о проекте D6606
Отзыв о проекте D6606
Чтобы оставить отзыв, пожалуйста авторизуйтесь.
Подбор строительной компании
Не знаете кому доверить строительство дома? Мы можем помочь! Подберем для вас из сотен наших партнеров несколько компаний с лучшем соотношением цена/качество под конкретно ваш запрос.
Подобрать