Главная Проекты домов Проект двухэтажного дома из газобетона с пристроенным гаражом и верандой

D6687 Проект двухэтажного дома из газобетона с пристроенным гаражом и верандой

Сравнить проект В избранное
Проект двухэтажного дома из газобетона с пристроенным гаражом и верандой / 1
Проект двухэтажного дома из газобетона с пристроенным гаражом и верандой / 2
Проект двухэтажного дома из газобетона с пристроенным гаражом и верандой / 3
Проект двухэтажного дома из газобетона с пристроенным гаражом и верандой / 4
Проект двухэтажного дома из газобетона с пристроенным гаражом и верандой / 5
Проект двухэтажного дома из газобетона с пристроенным гаражом и верандой / 1
Проект двухэтажного дома из газобетона с пристроенным гаражом и верандой / 2
Проект двухэтажного дома из газобетона с пристроенным гаражом и верандой / 3
Проект двухэтажного дома из газобетона с пристроенным гаражом и верандой / 4
Проект двухэтажного дома из газобетона с пристроенным гаражом и верандой / 5
D6687
235 м²
Технические характеристики
Общие
Материал стен
Газобетон
Общая площадь
235 м²
Приведенная площадь
218.666 м²
Количество жилых комнат/спален
4
Этажи
2 этажа
Гараж
Пристроенный гараж
Количество машин
1
Подвал / цокольный этаж
Без подвала
Длина дома
18.6 м
Ширина дома
13.3 м
Кровля
Металлочерепица
Облицовка внешних стен
Облицовка камнем
,
Облицовочный кирпич
Толщина несущих наружных стен
400 мм
Межэтажные перекрытия
Монолитные
Внутренние не несущие перегородки
Газобетонные
Фундамент
Монолитная ж/бетонная плита
Терраса
Терраса открытая
,
Терраса застекленная (веранда)
Дополнительные
Сауна/баня внутри
Нет
Площадь гостиной
21.14 м²
Площадь кухни
19.23 м²
Количество санузлов
3
Котельная
Есть
Хозяйский санузел
Есть
Хозяйская гардеробная
Есть
Кладовая
1
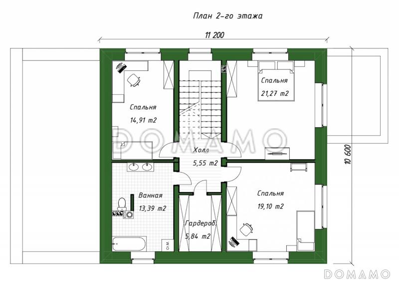
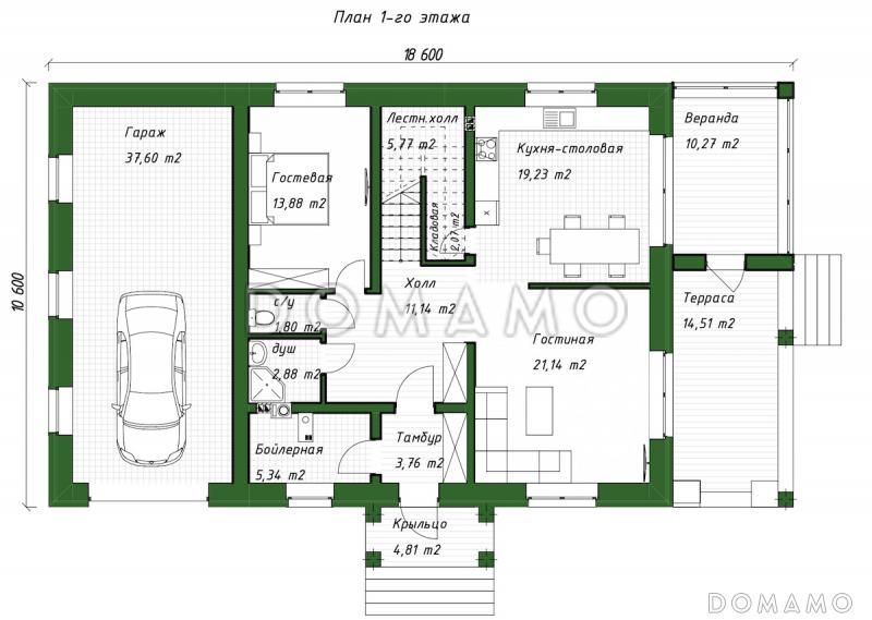
Планы помещений
Фасады
Описание проекта
Компания Domamo предлагает проект двухэтажного дома из газобетона с пристроенным гаражом и верандой D6687. Общая площадь - 235 м2, размер - 18.6х13.3 м. Фундамент - монолитная ж/бетонная плита, кровля - металлочерепица, внешняя отделка - облицовочный кирпич облицовка камнем. Для заказа проекта или внесения изменений свяжитесь с нами с помощью форм обратной связи на сайте или по телефону +7 (343) 357-92-70.

Похожие проекты
Состав проекта
Входит в стоимость
Цена, руб. Сроки, дней
Комплект архитектурно-строительных чертежей (АС) Входит в стоимость Готов к отправке
Готово к продаже
Цена, руб. Сроки, дней
Дополнительная копия проекта формата А3 3 000 ₽ Готов к отправке в корзину
Электронная версия проекта (PDF) 4 000 ₽ Готов к отправке в корзину
Разрабатывается отдельно
Цена, руб. Сроки, дней
Адаптация фундамента (изменение типа фундамента) по запросу 14 рабочих дней
Дизайн интерьера (стоимость от 2200руб. за квад.метр площади) по запросу 30 рабочих дней
Внесение изменений в проект по запросу 20 рабочих дней
Фэншуй дома 20 000 ₽ 14 рабочих дней в корзину
Фэншуй участка 15 000 ₽ 14 рабочих дней в корзину
Фэншуй полная консультация дом+участок с выездом на объект 100 000 ₽ 30 рабочих дней в корзину
Опции проекта вы можете заказать в корзине при оформлении заказа
Предложения строителей Свердловская область
Подбор строительной компании
Не знаете кому доверить строительство дома? Мы можем помочь! Подберем для вас из сотен наших партнеров несколько компаний с лучшем соотношением цена/качество под конкретно ваш запрос.
Подобрать
Посмотреть еще 3 компании Свернуть
Отзывы покупателей
Рейтинг покупателей
0 / 5 5 5 1
На основе 1 оценок покупателей
0%
0%
0%
0%
0%
Отзывы о проекте D6687
Отзыв о проекте D6687
Чтобы оставить отзыв, пожалуйста авторизуйтесь.
Подбор строительной компании
Не знаете кому доверить строительство дома? Мы можем помочь! Подберем для вас из сотен наших партнеров несколько компаний с лучшем соотношением цена/качество под конкретно ваш запрос.
Подобрать