Главная Проекты домов Проект дома из бруса с угловой террасой, вместительной гардеробной и кабинетом

D6780 Проект дома из бруса с угловой террасой, вместительной гардеробной и кабинетом

Сравнить проект В избранное
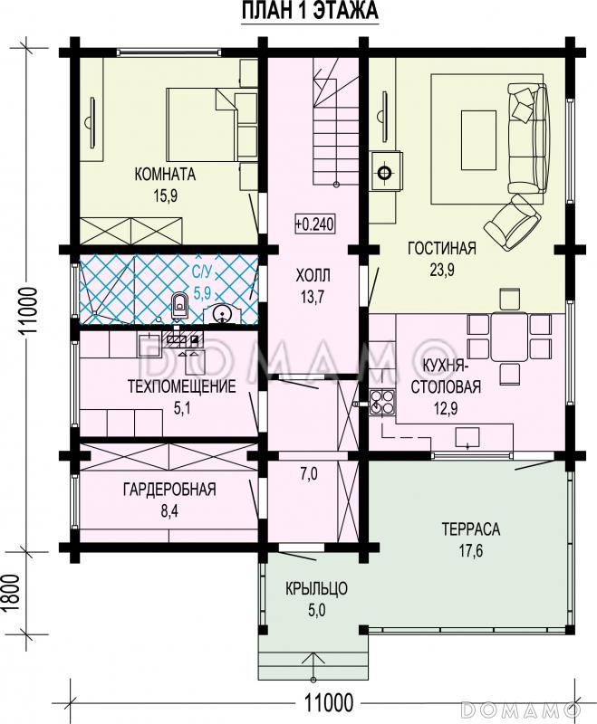
Проект дома из бруса с угловой террасой, вместительной гардеробной и кабинетом / 1
Проект дома из бруса с угловой террасой, вместительной гардеробной и кабинетом / 2
Проект дома из бруса с угловой террасой, вместительной гардеробной и кабинетом / 1
Проект дома из бруса с угловой террасой, вместительной гардеробной и кабинетом / 2
D6780
193 м²
Подготовка проекта:
25 рабочих дней
Стоимость проекта
Купить проект
Задайте вопросы по проекту нашему архитектору
8 (800) 200-28-83
Время работы: пн-вс: с 9:00 до 20:00
Задать вопрос по проекту

Технические характеристики
Общие
Материал стен
Брус
Общая площадь
193 м²
Жилая площадь
103.9 м²
Приведенная площадь
190.58 м²
Количество жилых комнат/спален
5
Этажи
2 этажа
Гараж
Нет гаража
Подвал / цокольный этаж
Без подвала
Длина дома
12.8 м
Ширина дома
11 м
Высота в коньке
9.28 м
Кровля
Металлочерепица
Толщина несущих наружных стен
200 мм
Межэтажные перекрытия
По деревянным балкам
Внутренние не несущие перегородки
Каркасно-обшивные
Фундамент
Ленточный монолитный
Терраса
Терраса крытая
Дополнительные
Окна
Окна до пола
Камин
Есть
Сауна/баня внутри
Нет
Площадь гостиной
23.9 м²
Площадь кухни
12.9 м²
Количество санузлов
3
Окно в ванной комнате
Есть
Котельная
Есть
Кабинет
Есть
Хозяйский санузел
Есть
Кладовая
1
Планы помещений
Фасады
Описание проекта
Компания Domamo предлагает проект дома из бруса с угловой террасой, вместительной гардеробной и кабинетом D6780. Общая площадь - 193 м2, размер - 12.8х11 м. Фундамент - ленточный монолитный, кровля - металлочерепица, внешняя отделка - . Для заказа проекта или внесения изменений свяжитесь с нами с помощью форм обратной связи на сайте или по телефону +7 (343) 357-92-70.
Категории проекта: от 100 до 200 кв.м двухэтажные прямоугольные в русском стиле для с камином в русском стиле без бани в русском стиле с котельной в русском стиле с кабинетом в русском стиле от 100 до 200 кв м из клееного бруса без гаража из бруса готовые из бруса с окном в ванной комнате из бруса с камином из бруса прямоугольные из бруса с окнами до пола из бруса скандинавские из бруса русская усадьба из бруса с вальмовой крышей из бруса с ленточным заглубленным монолитным фундаментом с каркасными стенами из бруса с перекрытиями по деревянным балкам из бруса с кровлей из металлочерепицы из бруса с хозяйским санузлом из бруса с кабинетом из бруса с котельной из бруса без сауны из бруса с выходом на террасу из кухни из бруса с крытой террасой из бруса без подвала из бруса без гаража из бруса с холодным чердаком из бруса от 100 до 200 м2 Показать все категории Скрыть категории

Похожие проекты
Состав проекта
Входит в стоимость
Цена, руб. Сроки, дней
Комплект архитектурно-строительных чертежей (АС) Входит в стоимость 25 рабочих дней
Готово к продаже
Цена, руб. Сроки, дней
Зеркальная версия проекта Входит в стоимость 25 рабочих дней
Паспорт рабочего проекта 5 000 ₽ 25 рабочих дней в корзину
Инженерные разделы: ВК + ОВ + ЭО 23 000 ₽ 25 рабочих дней в корзину
Дополнительная копия проекта формата А3 3 000 ₽ 25 рабочих дней в корзину
Две дополнительные копии проекта формата А3 + 1 паспорт рабочего проекта 10 100 ₽ 25 рабочих дней в корзину
Электронная копия проекта (скан распечатанной версии) 4 000 ₽ 25 рабочих дней в корзину
Разрабатывается отдельно
Цена, руб. Сроки, дней
Адаптация фундамента (изменение типа фундамента) по запросу 14 рабочих дней
Дизайн интерьера (стоимость от 2200руб. за квад.метр площади) по запросу 30 рабочих дней
Внесение изменений в проект по запросу 20 рабочих дней
Фэншуй дома 20 000 ₽ 14 рабочих дней в корзину
Фэншуй участка 15 000 ₽ 14 рабочих дней в корзину
Фэншуй полная консультация дом+участок с выездом на объект 100 000 ₽ 30 рабочих дней в корзину
Опции проекта вы можете заказать в корзине при оформлении заказа
Предложения строителей Свердловская область
Подбор строительной компании
Не знаете кому доверить строительство дома? Мы можем помочь! Подберем для вас из сотен наших партнеров несколько компаний с лучшем соотношением цена/качество под конкретно ваш запрос.
Подобрать
Посмотреть еще 1 компанию Свернуть
Отзывы покупателей
Рейтинг покупателей
0 / 5 5 5 1
На основе 1 оценок покупателей
0%
0%
0%
0%
0%
Отзывы о проекте D6780
Отзыв о проекте D6780
Чтобы оставить отзыв, пожалуйста авторизуйтесь.
Подбор строительной компании
Не знаете кому доверить строительство дома? Мы можем помочь! Подберем для вас из сотен наших партнеров несколько компаний с лучшем соотношением цена/качество под конкретно ваш запрос.
Подобрать