Технические характеристики
Общие
Количество жилых комнат/спален
Фундамент
Монолитная ж/бетонная плита
Терраса
Терраса застекленная (веранда)
Дополнительные
Описание проекта
Премиальный жилой дом из Сибирского кедра "Тиберкуль"
Наш проект жилого дома "Тиберкуль" не только поражает своим уникальным дизайном, но и отличается прочной конструкцией и продуманной планировкой.
Дом построен из сибирского кедра по технологии post&beam, которая относится к премиальным каркасно-бревенчатым технологиям возведения домов. Кедр является одной из самых подходящих и качественных пород древесины для строительства жилых деревянных домов. Такой дом идеально подходит для проживания семьи из 4-6 человек, а также может служить гостевым домом или домом для отдыха на выходных.
Планировка дома
Благодаря сочетанию технологии post&beam с заполнением лафетом, в доме можно организовать внутреннее пространство по-разному. Мы предлагаем следующие варианты:
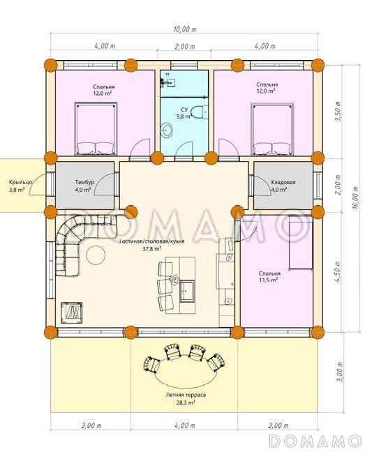
Кухня-гостиная площадью 37 кв.м с панорамным остеклением и выходом на террасу площадью 28,3 кв.м.
Три спальни по 12 кв.м.
Санузел площадью 6 кв.м.
Кладовая площадью 4 квадратных метра.
Дополнительное пространство до 30 кв.м над спальнями с возможностью обустройства второго света.
Технология post&beam позволяет реализовать самые нестандартные планировочные решения. Мы предлагаем вам проектирование в подарок, подробности можно узнать у нашего менеджера.
Преимущества деревянного дома
Дерево — это один из самых эффективных способов создания здоровой окружающей среды. Ощущение единства с природой, легкий аромат, чистый воздух, оптимальная температура и влажность — всё это в кедровом бревенчатом доме способствует расслаблению и снятию стресса. Даже естественный цвет дерева отвлекает от проблем и помогает сосредоточиться на положительных моментах.
Диаметр столбов несущей конструкции составляет 500-600 мм, что придает дому грандиозный вид.
Состав проекта
Входит в стоимость
|
Цена, руб. |
Сроки, дней |
|
|
|
Комплект архитектурно-строительных чертежей (АС)
|
Входит в стоимость |
Готов к отправке |
|
Разрабатывается отдельно
|
Цена, руб. |
Сроки, дней |
|
|
|
Адаптация фундамента (изменение типа фундамента)
|
по запросу |
14 рабочих дней |
|
|
|
Дизайн интерьера (стоимость от 2200руб. за квад.метр площади)
|
по запросу |
30 рабочих дней |
|
|
|
Внесение изменений в проект
|
по запросу |
20 рабочих дней |
|
|
|
Фэншуй дома
|
20 000 ₽ |
14 рабочих дней |
в корзину
|
|
|
Фэншуй участка
|
15 000 ₽ |
14 рабочих дней |
в корзину
|
|
|
Фэншуй полная консультация дом+участок с выездом на объект
|
100 000 ₽ |
30 рабочих дней |
в корзину
|
Опции проекта вы можете заказать в корзине при оформлении заказа