Технические характеристики
Общие
Толщина несущих наружных стен
Внутренние не несущие перегородки
Фундамент
Монолитная ж/бетонная плита
Дополнительные
Дом для неровных участков (с рельефом)
Описание проекта
Проект двухэтажного дома ручной рубки "Шахан"
Загородный двухэтажный дом из кедра "Шахан" — это воплощение роскоши и уюта, которое объединяет в себе уникальные свойства древесины и современный комфорт. Этот дом предлагает своим жильцам множество преимуществ, которые сделают проживание в нем поистине незабываемым.
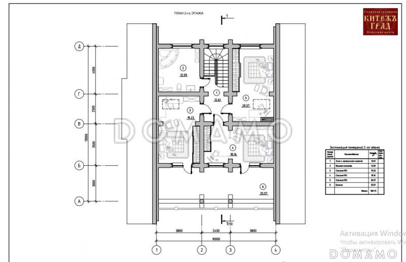
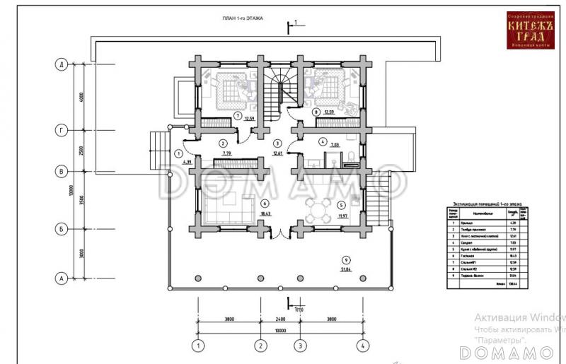
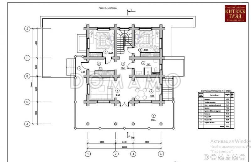
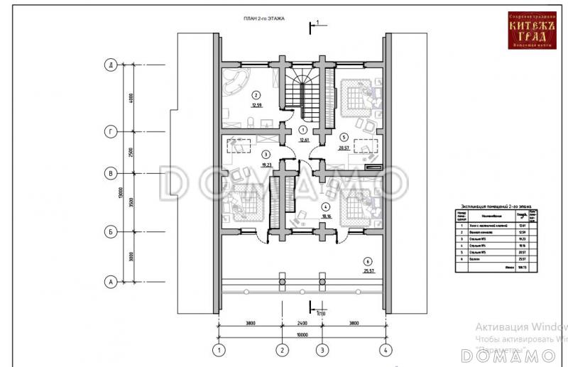
Общая площадь дома составляет 247 кв.м. На первом этаже расположена просторная кухня-гостиная площадью 30 кв.м с выходом на террасу площадью 51 кв.м. Две спальни по 13 кв.м и санузел площадью 7 кв.м обеспечивают комфорт для гостей. На втором этаже располагаются три спальни площадью 18, 19 и 20 кв.м. С двух спален ведет выход на балкон площадью 25,57 кв.м, а также просторный санузел площадью 12 кв.м. Планировка выполнена гармонично и рационально.
Одним из главных преимуществ загородного дома из кедра является его натуральность. Кедр — это одна из наиболее ценных пород дерева, обладающая уникальными свойствами, такими как устойчивость к влаге, наличие эфирных масел и антисептических веществ. Благодаря этому дом сохраняет свой первоначальный вид на протяжении длительного времени, не подвергаясь разрушению и деформации.
Кроме того, дом из кедра обладает отличными теплоизоляционными свойствами, что позволяет ему всегда поддерживать оптимальную температуру внутри, обеспечивая максимальный комфорт жильцам в любое время года.
Еще одним преимуществом этого дома является его функциональность. Просторная планировка позволяет максимально эффективно использовать все пространство и создать уютную и комфортную обстановку.
И, конечно же, загородный дом из кедра "Шахан" предлагает своим жильцам уникальную возможность наслаждаться красотами природы вокруг и окунуться в атмосферу спокойствия и гармонии, что делает его идеальным местом для отдыха и комфортного проживания.
Состав проекта
Входит в стоимость
|
Цена, руб. |
Сроки, дней |
|
|
|
Комплект архитектурно-строительных чертежей (АС)
|
Входит в стоимость |
Готов к отправке |
|
Разрабатывается отдельно
|
Цена, руб. |
Сроки, дней |
|
|
|
Адаптация фундамента (изменение типа фундамента)
|
по запросу |
14 рабочих дней |
|
|
|
Дизайн интерьера (стоимость от 2200руб. за квад.метр площади)
|
по запросу |
30 рабочих дней |
|
|
|
Внесение изменений в проект
|
по запросу |
20 рабочих дней |
|
|
|
Фэншуй дома
|
20 000 ₽ |
14 рабочих дней |
в корзину
|
|
|
Фэншуй участка
|
15 000 ₽ |
14 рабочих дней |
в корзину
|
|
|
Фэншуй полная консультация дом+участок с выездом на объект
|
100 000 ₽ |
30 рабочих дней |
в корзину
|
Опции проекта вы можете заказать в корзине при оформлении заказа