Технические характеристики
Общие
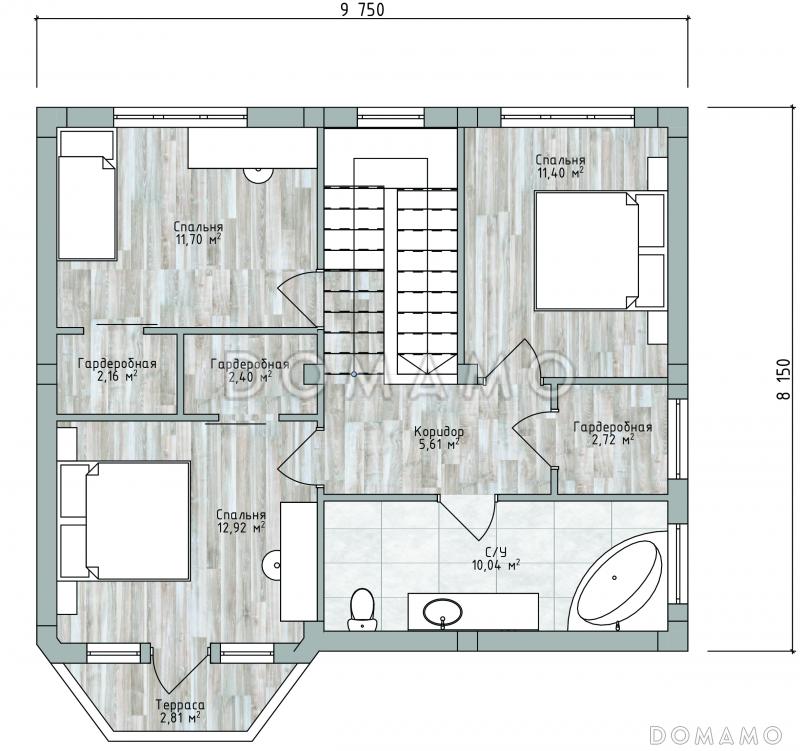
Количество жилых комнат/спален
Толщина несущих наружных стен
Внутренние не несущие перегородки
Терраса
,
Терраса застекленная (веранда)
Дополнительные
Дом для неровных участков (с рельефом)
Описание проекта
Компания Domamo предлагает дд-190 D7104. Общая площадь - 190,72 м2, размер - 13,40х9,50 м. Фундамент - ленточный монолитный, кровля - гибкая черепица, внешняя отделка - мокрая штукатурка. Для заказа проекта или внесения изменений свяжитесь с нами с помощью форм обратной связи на сайте или по телефону +7 (343) 357-92-70.
Состав проекта
Входит в стоимость
|
Цена, руб. |
Сроки, дней |
|
|
|
Комплект архитектурно-строительных чертежей (АС)
|
Входит в стоимость |
Готов к отправке |
|
Разрабатывается отдельно
|
Цена, руб. |
Сроки, дней |
|
|
|
Адаптация фундамента (изменение типа фундамента)
|
по запросу |
14 рабочих дней |
|
|
|
Дизайн интерьера (стоимость от 2200руб. за квад.метр площади)
|
по запросу |
30 рабочих дней |
|
|
|
Внесение изменений в проект
|
по запросу |
20 рабочих дней |
|
|
|
Фэншуй дома
|
20 000 ₽ |
14 рабочих дней |
в корзину
|
|
|
Фэншуй участка
|
15 000 ₽ |
14 рабочих дней |
в корзину
|
|
|
Фэншуй полная консультация дом+участок с выездом на объект
|
100 000 ₽ |
30 рабочих дней |
в корзину
|
Опции проекта вы можете заказать в корзине при оформлении заказа