Главная Проекты домов Проект дома из газобетона с 3 спальнями и ванной на втором этаже

D7243 Проект дома из газобетона с 3 спальнями и ванной на втором этаже

Сравнить проект В избранное
Проект дома из газобетона с 3 спальнями и ванной на втором этаже / 1
Проект дома из газобетона с 3 спальнями и ванной на втором этаже / 2
Проект дома из газобетона с 3 спальнями и ванной на втором этаже / 3
Проект дома из газобетона с 3 спальнями и ванной на втором этаже / 4
Проект дома из газобетона с 3 спальнями и ванной на втором этаже / 5
Проект дома из газобетона с 3 спальнями и ванной на втором этаже / 1
Проект дома из газобетона с 3 спальнями и ванной на втором этаже / 2
Проект дома из газобетона с 3 спальнями и ванной на втором этаже / 3
Проект дома из газобетона с 3 спальнями и ванной на втором этаже / 4
Проект дома из газобетона с 3 спальнями и ванной на втором этаже / 5
D7243
154 м²
Технические характеристики
Общие
Материал стен
Газобетон
Общая площадь
154 м²
Жилая площадь
75.03 м²
Площадь застройки
141.3 м²
Приведенная площадь
167.08 м²
Количество жилых комнат/спален
3
Этажи
2 этажа
Гараж
Нет гаража
Количество машин
нет
Подвал / цокольный этаж
Без подвала
Длина дома
22.01 м
Ширина дома
14.47 м
Высота в коньке
8.6 м
Кровля
Металлочерепица
Облицовка внешних стен
Деревянная вагонка
,
Керамогранит
,
Мокрая штукатурка
Толщина несущих наружных стен
450 мм
Межэтажные перекрытия
Монолитные
Внутренние не несущие перегородки
Газобетонные
Фундамент
Монолитная ж/бетонная плита
Терраса
Терраса крытая
Дополнительные
Окна
Окна до пола
,
Панорамные окна
Камин
Есть
Сауна/баня внутри
Нет
Площадь гостиной
24.72 м²
Площадь кухни
11.96 м²
Количество санузлов
3
Окно в ванной комнате
Есть
Котельная
Есть
Постирочная
Есть
Кладовая
2
Балкон / лоджия
Балкон
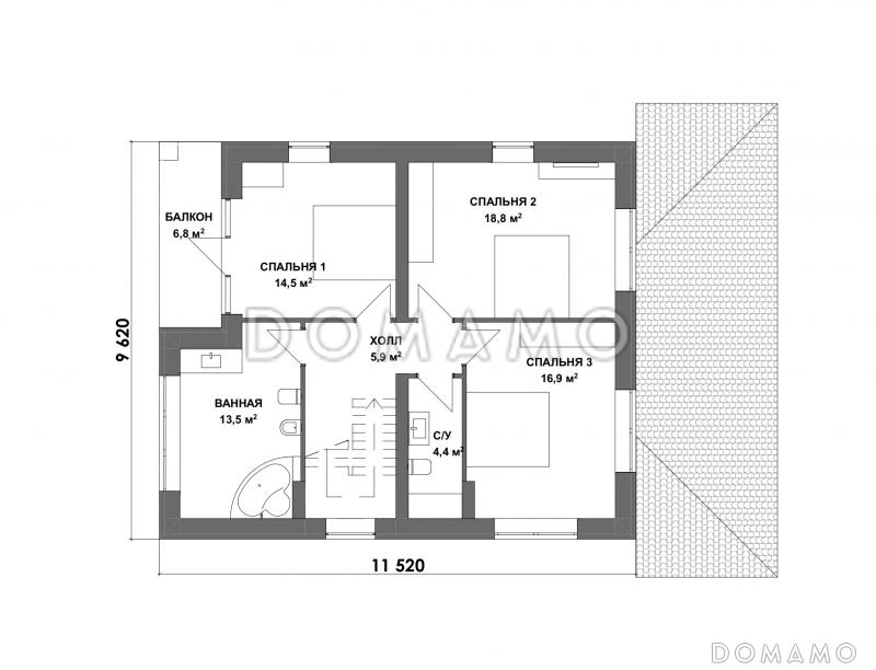
Планы помещений
Описание проекта
Компания Domamo предлагает проект дома из газобетона с 3 спальнями и ванной на втором этаже D7243. Общая площадь - 154 м2, размер - 22.01х14.47 м. Фундамент - монолитная ж/бетонная плита, кровля - металлочерепица, внешняя отделка - деревянная вагонка мокрая штукатурка керамогранит. Для заказа проекта или внесения изменений свяжитесь с нами с помощью форм обратной связи на сайте или по телефону +7 (343) 357-92-70.

Похожие проекты
Состав проекта
Входит в стоимость
Цена, руб. Сроки, дней
Комплект архитектурно-строительных чертежей (АС) Входит в стоимость 5 рабочих дней
Разрабатывается отдельно
Цена, руб. Сроки, дней
Адаптация фундамента (изменение типа фундамента) по запросу 14 рабочих дней
Дизайн интерьера (стоимость от 2200руб. за квад.метр площади) по запросу 30 рабочих дней
Внесение изменений в проект по запросу 20 рабочих дней
Фэншуй дома 20 000 ₽ 14 рабочих дней в корзину
Фэншуй участка 15 000 ₽ 14 рабочих дней в корзину
Фэншуй полная консультация дом+участок с выездом на объект 100 000 ₽ 30 рабочих дней в корзину
Опции проекта вы можете заказать в корзине при оформлении заказа
Предложения строителей Свердловская область
Подбор строительной компании
Не знаете кому доверить строительство дома? Мы можем помочь! Подберем для вас из сотен наших партнеров несколько компаний с лучшем соотношением цена/качество под конкретно ваш запрос.
Подобрать
Посмотреть еще 3 компании Свернуть
Отзывы покупателей
Рейтинг покупателей
0 / 5 5 5 1
На основе 1 оценок покупателей
0%
0%
0%
0%
0%
Отзывы о проекте D7243
Отзыв о проекте D7243
Чтобы оставить отзыв, пожалуйста авторизуйтесь.
Подбор строительной компании
Не знаете кому доверить строительство дома? Мы можем помочь! Подберем для вас из сотен наших партнеров несколько компаний с лучшем соотношением цена/качество под конкретно ваш запрос.
Подобрать