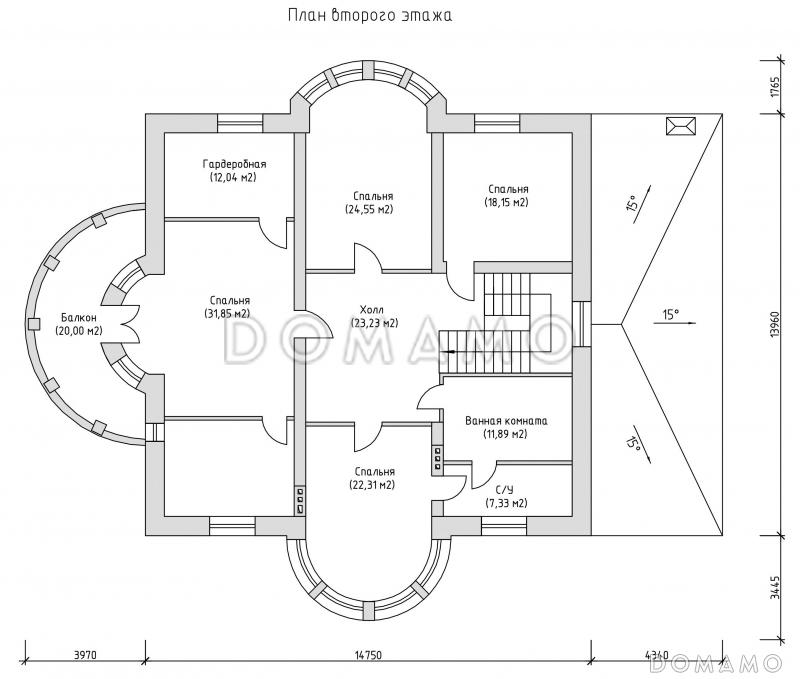
Проект роскошного двухэтажного коттеджа, выполненного в классическом стиле, который отлично подойдет для проживания большой семьи из пяти-шести человек. Экстерьер дома сочетает в себе изысканность и элегантную лаконичность. Фасад украшают массивные колонны у входа, большие панорамные окна на втором этаже, а также декоративные элементы, выполненные из кирпича. На цокольном этаже здания расположено большое подвальное помещение общей площадью 50 м². Отсюда уходит лестница наверх – в гараж. Первый этаж включает в себя просторную гостиную с эркером, объединенную с кухней-столовой и гостевую комнату. На втором этаже – четыре спальных комнаты, в одной из которых предусмотрен выход на большой балкон и в гардеробную.
Ключевые особенности: