Главная Проекты домов Проект коттеджа в стиле деревянного модерна

D831 Проект коттеджа в стиле деревянного модерна

Сравнить проект В избранное
Проект коттеджа в стиле деревянного модерна / 1
Проект коттеджа в стиле деревянного модерна / 2
Проект коттеджа в стиле деревянного модерна / 1
Проект коттеджа в стиле деревянного модерна / 2
D831
393 м²
Подготовка проекта:
Готов к отправке
Стоимость проекта
Купить проект
Задайте вопросы по проекту нашему архитектору
8 (800) 200-28-83
Время работы: пн-вс: с 9:00 до 20:00
Задать вопрос по проекту

Технические характеристики
Общие
Материал стен
Клееный брус
Общая площадь
393 м²
Жилая площадь
197.2 м²
Площадь застройки
260 м²
Приведенная площадь
347 м²
Количество жилых комнат/спален
7
Этажи
2 этажа + мансарда
Гараж
Пристроенный гараж
Количество машин
1
Подвал / цокольный этаж
Без подвала
Длина дома
18 м
Ширина дома
17.4 м
Кровля
Гибкая черепица
Облицовка внешних стен
Без облицовки
Толщина несущих наружных стен
300 мм
Межэтажные перекрытия
По деревянным балкам
Внутренние не несущие перегородки
Каркасно-обшивные
Фундамент
Свайный
Терраса
Терраса застекленная (веранда)
Дополнительные
Окна
Окна до пола
Второй свет
Есть
Камин
Есть
Сауна/баня внутри
Нет
Площадь гостиной
31.3 м²
Площадь кухни
29.1 м²
Количество санузлов
1
Окно в ванной комнате
Есть
Котельная
Есть
Кабинет
Есть
Хозяйская гардеробная
Есть
Кладовая
2
Балкон / лоджия
Балкон
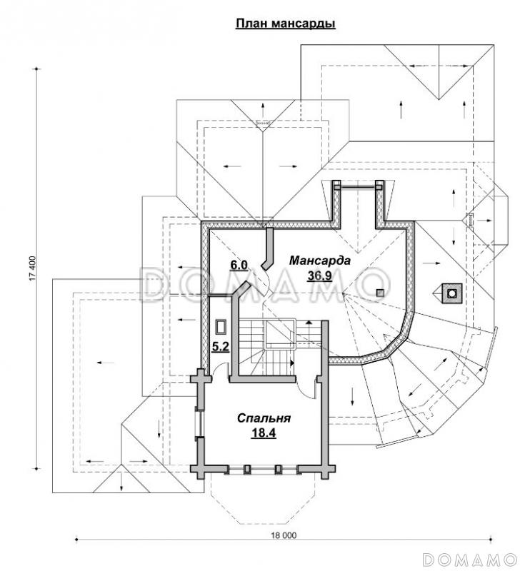
Планы помещений
Фасады
Описание проекта

Семикомнатный жилой дом со стенами из клееного бруса решен в формах «деревянного модерна», сочетая западноевропейскую и «неорусскую» стилистику. В объеме дома, построенном на сочетании двух «восьмериков», доминирует центральная часть, завершенная шатровой складчатой кровлей. Пространственно ее уравновешивает, придавая динамику композиционному решению, башенка с высоким шпилем. В центральном «восьмерике» располагается двусветная гостиная и находящийся над ней мансардный кабинет с антресолью. Объемное решение гостиной подчеркивает центрически расположенный камин-очаг.

Сложное объемное построение дома, при котором отсутствует разделение на главный и второстепенные фасады, не противоречит функциональности здания. В нем предусмотрена удобная кухня-столовая, четыре блока спальных апартаментов с индивидуальными ванными комнатами и гардеробными, комфортная междуэтажная лестница и лифт, связывающий все три уровня дома.

Категории проекта: с мансардой с гаражом с мансардой и гаражом деревянные для постоянного проживания из клееного бруса от 300 до 400 кв.м с террасой готовые двухэтажные двухэтажные с гаражом двухэтажные с мансардой с котельной со вторым светом двухэтажные деревянные загородные с мансардной крышей с камином с гардеробной с балконом с верандой в русском стиле Проекты деревянных домов с мансардой Проекты деревянных домов с террасой Проекты деревянных домов с гаражом Проекты домов из клееного бруса с гаражом Проекты домов из клееного бруса с мансардой Проекты двухэтажных домов из клееного бруса Проекты двухэтажных домов с террасой Проекты двухэтажных домов с верандой на две семьи с террасой и камином с кабинетом с гаражом под одной крышей с мансардой и террасой деревянные для круглогодичного проживания с гаражом и террасой двухэтажные с террасой и гаражом с балконом и террасой сложной формы двухэтажные с камином двухэтажные со вторым светом двухэтажные с балконом двухэтажные с балконом и террасой с мансардой с котельной с мансардой с камином с мансардой с окнами до пола с мансардой со вторым светом с мансардой с балконом с мансардой сложной формы с мансардой готовые с мансардой для постоянного проживания с мансардой элитные деревянные в русском стиле деревянные с окнами в пол деревянные с вторым светом деревянные с балконом деревянные с камином деревянные готовые деревянные без подвала деревянные с большой гостиной деревянные с большой кухней деревянные с изолированной кухней деревянные от 300 до 400 м2 в русском стиле с террасой в русском стиле с окнами в пол в русском стиле с балконом в русском стиле для постоянного проживания в русском стиле для с камином в русском стиле без бани в русском стиле с котельной в русском стиле с кабинетом в русском стиле с изолированной кухней в русском стиле с большой гостиной из клееного бруса готовый проект из клееного бруса для постоянного проживания из клееного бруса с окном в ванной комнате из клееного бруса с камином из клееного бруса сложной формы из клееного бруса с балконом из клееного бруса с вторым светом из клееного бруса с окнами в пол из клееного бруса в русском стиле из клееного бруса в скандинавском стиле из клееного бруса с многощипцовой крышей из клееного бруса со свайным фундаментом из клееного бруса с каркасно-обшивными перегородками из клееного бруса без облицовки из клееного бруса с перекрытиями по деревянным балкам из клееного бруса с кровлей из гибкой черепицы из клееного бруса с хозяйской гардеробной из клееного бруса с кабинетом из клееного бруса с котельной из клееного бруса с изолированной кухней из клееного бруса без подвала из клееного бруса без гаража из клееного бруса от 300 до 400 м2 из клееного бруса с большой гостиной Показать все категории Скрыть категории

Похожие проекты
Состав проекта
Входит в стоимость
Цена, руб. Сроки, дней
Комплект архитектурно-строительных чертежей (АС) Входит в стоимость Готов к отправке
Разрабатывается отдельно
Цена, руб. Сроки, дней
Адаптация фундамента (изменение типа фундамента) по запросу 14 рабочих дней
Дизайн интерьера (стоимость от 2200руб. за квад.метр площади) по запросу 30 рабочих дней
Внесение изменений в проект по запросу 20 рабочих дней
Фэншуй дома 20 000 ₽ 14 рабочих дней в корзину
Фэншуй участка 15 000 ₽ 14 рабочих дней в корзину
Фэншуй полная консультация дом+участок с выездом на объект 100 000 ₽ 30 рабочих дней в корзину
Опции проекта вы можете заказать в корзине при оформлении заказа
Отзывы покупателей
Рейтинг покупателей
0 / 5 5 5 1
На основе 1 оценок покупателей
0%
0%
0%
0%
0%
Отзывы о проекте D831
Отзыв о проекте D831
Чтобы оставить отзыв, пожалуйста авторизуйтесь.
Подбор строительной компании
Не знаете кому доверить строительство дома? Мы можем помочь! Подберем для вас из сотен наших партнеров несколько компаний с лучшем соотношением цена/качество под конкретно ваш запрос.
Подобрать