Главная Проекты домов Проект дома с окнами разной формы

D91 Проект дома с окнами разной формы

Сравнить проект В избранное
Технические характеристики
Общие
Материал стен
Кирпич
Общая площадь
468 м²
Жилая площадь
148.6 м²
Приведенная площадь
429.6 м²
Количество жилых комнат/спален
5
Этажи
2 этажа
Гараж
Нет гаража
Подвал / цокольный этаж
Без окон
Длина дома
17.9 м
Ширина дома
13.4 м
Кровля
Гибкая черепица
Облицовка внешних стен
Мокрая штукатурка
Межэтажные перекрытия
Монолитные
Внутренние не несущие перегородки
Кирпичные
Фундамент
Монолитная ж/бетонная плита
Терраса
Без террасы
Дополнительные
Окна
Панорамные окна
,
Круглые окна
Мансардные окна
Есть
Камин
Есть
Сауна/баня внутри
Нет
Площадь гостиной
35.2 м²
Площадь кухни
13 м²
Количество санузлов
4
Окно в ванной комнате
Есть
Котельная
Есть
Спортзал / детский / игровой зал
Есть
Бильярдная
Есть
Хозяйский санузел
Есть
Кладовая
3
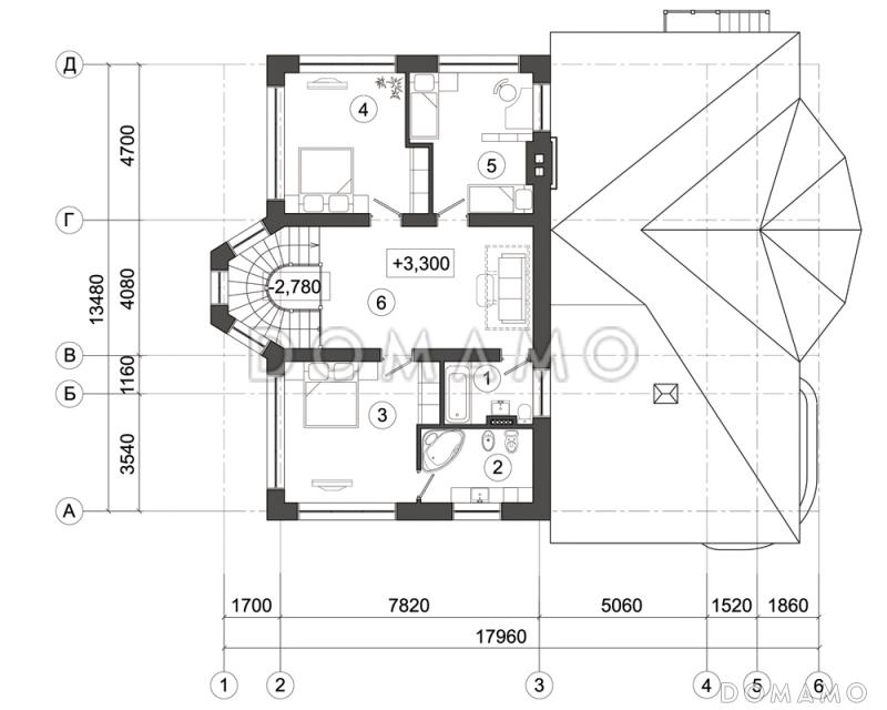
Планы помещений
Описание проекта

Многоуровневая крыша, полукруглые эркеры и окна круглой формы делают этот загородный коттедж похожим на волшебный корабль. Задумка проекта – создание максимально светлого функционального жилья – воплотилась в жизнь с помощью искусственного расширения внутреннего пространства за счет подвальных помещений и выступающих элементов фасада. Планировка дома предлагает:

  • 5 просторных спален с размещением на обоих этажах,
  • Обширный каминный зал, отдельную бойлерную и несколько санузлов,
  • Множество вспомогательных помещений, которые могут обустраиваться по желанию хозяев.

Категории проекта: для постоянного проживания кирпич от 400 до 500 кв.м с эркером кирпичные дома с эркером готовые с цокольным этажом загородные из кирпича двухэтажные из кирпича двухэтажные кирпичные с подвалом кирпичные с котельной с подвалом с котельной загородные с четырехскатной крышей с бильярдной с камином с панорамным остеклением в стиле эклектика двухэтажные с эркером Проекты двухэтажных домов с подвалом без гаража с 5 спальнями большие сложной формы двухэтажные с камином двухэтажные с панорамными окнами двухэтажные без гаража большие готовые большие в стиле эклектика большие с четырехскатной крышей большие сложной формы большие с камином большие с окном в ванной комнате большие с панорамными окнами большие без гаража большие без террасы большие с котельной большие с спортзалом недорогие с панорамными окнами из клееного бруса без гаража Показать все категории Скрыть категории

Похожие проекты
Состав проекта
Входит в стоимость
Цена, руб. Сроки, дней
Комплект архитектурно-строительных чертежей (АС) Входит в стоимость Готов к отправке
Паспорт рабочего проекта Входит в стоимость Готов к отправке
Разрабатывается отдельно
Цена, руб. Сроки, дней
Адаптация фундамента (изменение типа фундамента) по запросу 14 рабочих дней
Дизайн интерьера (стоимость от 2200руб. за квад.метр площади) по запросу 30 рабочих дней
Внесение изменений в проект по запросу 20 рабочих дней
Фэншуй дома 20 000 ₽ 14 рабочих дней в корзину
Фэншуй участка 15 000 ₽ 14 рабочих дней в корзину
Фэншуй полная консультация дом+участок с выездом на объект 100 000 ₽ 30 рабочих дней в корзину
Опции проекта вы можете заказать в корзине при оформлении заказа
Предложения строителей Выбрать регион
Минимальная
15 036 000 ₽
Стандарт
18 472 800 ₽
Под чистовую отделку
24 057 600 ₽
Показать подробные комплектации
Минимальная
34 325 040 ₽
Стандарт
40 382 400 ₽
Под чистовую отделку
52 497 120 ₽
Показать подробные комплектации
Минимальная
15 809 279 ₽
Стандарт
23 219 880 ₽
Под чистовую отделку
36 558 960 ₽
Показать подробные комплектации
Минимальная
17 214 072 ₽
Стандарт
19 765 896 ₽
Под чистовую отделку
25 308 595 ₽
Показать подробные комплектации
Минимальная
6 981 313 ₽
Стандарт
8 645 257 ₽
Под чистовую отделку
10 405 629 ₽
Показать подробные комплектации
Подбор строительной компании
Не знаете кому доверить строительство дома? Мы можем помочь! Подберем для вас из сотен наших партнеров несколько компаний с лучшем соотношением цена/качество под конкретно ваш запрос.
Подобрать
Посмотреть еще 20 компаний Свернуть
Отзывы покупателей
Рейтинг покупателей
0 / 5 5 5 1
На основе 1 оценок покупателей
0%
0%
0%
0%
0%
Отзывы о проекте D91
Отзыв о проекте D91
Чтобы оставить отзыв, пожалуйста авторизуйтесь.
Подбор строительной компании
Не знаете кому доверить строительство дома? Мы можем помочь! Подберем для вас из сотен наших партнеров несколько компаний с лучшем соотношением цена/качество под конкретно ваш запрос.
Подобрать