Главная Проекты гаражей Проект гаража на 2 машины с котельной и мансардой

D113 Проект гаража на 2 машины с котельной и мансардой

Сравнить проект В избранное
Проект гаража на 2 машины с котельной и  мансардой / 1
Проект гаража на 2 машины с котельной и  мансардой / 2
Проект гаража на 2 машины с котельной и  мансардой / 1
Проект гаража на 2 машины с котельной и  мансардой / 2
D113
112.8 м²
Подготовка проекта:
Готов к отправке
Стоимость проекта
Купить проект
Задайте вопросы по проекту нашему архитектору
8 (800) 200-28-83
Время работы: пн-вс: с 9:00 до 20:00
Задать вопрос по проекту

Технические характеристики
Общие
Материал стен
Газобетон
Общая площадь
112.8 м²
Жилая площадь
24.6 м²
Площадь застройки
93.4 м²
Приведенная площадь
134.9 м²
Количество жилых комнат/спален
1
Этажи
1 этаж + мансарда
Гараж
Встроенный гараж
Количество машин
2
Подвал / цокольный этаж
Без подвала
Длина дома
11.94 м
Ширина дома
7.94 м
Высота в коньке
6.8 м
Кровля
Натуральная черепица
Облицовка внешних стен
Облицовочный кирпич
Толщина несущих наружных стен
400 мм
Межэтажные перекрытия
Монолитные
Внутренние не несущие перегородки
Газобетонные
Фундамент
Монолитная ж/бетонная плита
Терраса
Без террасы
Дополнительные
Мансардные окна
Есть
Сауна/баня внутри
Нет
Площадь гостиной
20 м²
Площадь кухни
4.8 м²
Количество санузлов
1
Окно в ванной комнате
Есть
Котельная
Есть
Хозяйская гардеробная
Есть
Кладовая
2
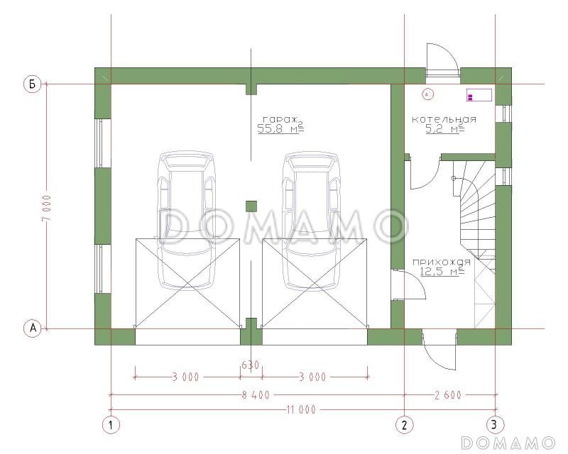
Планы помещений
Фасады
Описание проекта

Просторный гараж площадью 55,8 кв. м. на два автомобиля с полноценной однокомнатной квартирой на мансардном этаже для обслуживающего персонала. Фактически строение несёт в себе три функции — гараж, котельная, обслуживающая как сам гараж, так и другие строения на участке, флигель для персонала. В жилой части предусмотрены кухня-гостинная, спальня, санузел, кладовая и гардеробная — полноценная жилая зона для комфортного временного или сезонного проживания одного человека или семейной пары.

Стеновой материал — газобетон — максимально экономичен для строительства и дает высокие показатели энергоэффективности при эксплуатации.

Категории проекта: на 2 машины с мансардой

Похожие проекты
Состав проекта
Входит в стоимость
Цена, руб. Сроки, дней
Комплект архитектурно-строительных чертежей (АС) Входит в стоимость Готов к отправке
Готово к продаже
Цена, руб. Сроки, дней
Паспорт рабочего проекта 5 000 ₽ 3 рабочих дня в корзину
Дополнительная копия проекта формата А3 4 000 ₽ Готов к отправке в корзину
Электронная копия проекта (скан распечатанной версии) 4 000 ₽ 3 рабочих дня в корзину
Разрабатывается отдельно
Цена, руб. Сроки, дней
Адаптация фундамента (изменение типа фундамента) по запросу 14 рабочих дней
Дизайн интерьера (стоимость от 2200руб. за квад.метр площади) по запросу 30 рабочих дней
Внесение изменений в проект по запросу 20 рабочих дней
Зеркалирование проекта (для которого нет зеркальной версии) 8 000 ₽ 5 рабочих дней в корзину
Разработка Генплана участка, в масштабе 1:250 7 500 ₽ 5 рабочих дней в корзину
Фэншуй дома 20 000 ₽ 14 рабочих дней в корзину
Фэншуй участка 15 000 ₽ 14 рабочих дней в корзину
Фэншуй полная консультация дом+участок с выездом на объект 100 000 ₽ 30 рабочих дней в корзину
Опции проекта вы можете заказать в корзине при оформлении заказа
Предложения строителей Выбрать регион
Минимальная
13 759 800 ₽
Стандарт
16 188 000 ₽
Под чистовую отделку
21 044 400 ₽
Показать подробные комплектации
Минимальная
3 817 670 ₽
Стандарт
4 788 950 ₽
Под чистовую отделку
5 989 560 ₽
Показать подробные комплектации
Подбор строительной компании
Не знаете кому доверить строительство дома? Мы можем помочь! Подберем для вас из сотен наших партнеров несколько компаний с лучшем соотношением цена/качество под конкретно ваш запрос.
Подобрать
Посмотреть еще 5 компаний Свернуть
Отзывы покупателей
Рейтинг покупателей
0 / 5 5 5 1
На основе 1 оценок покупателей
0%
0%
0%
0%
0%
Отзывы о проекте D113
Отзыв о проекте D113
Чтобы оставить отзыв, пожалуйста авторизуйтесь.
Подбор строительной компании
Не знаете кому доверить строительство дома? Мы можем помочь! Подберем для вас из сотен наших партнеров несколько компаний с лучшем соотношением цена/качество под конкретно ваш запрос.
Подобрать