Главная Проекты домов Проект двухцветного коттеджа с двумя гардеробными и большим крыльцом

D223 Проект двухцветного коттеджа с двумя гардеробными и большим крыльцом

Сравнить проект В избранное
Проект двухцветного коттеджа с двумя гардеробными и большим крыльцом / 1
Проект двухцветного коттеджа с двумя гардеробными и большим крыльцом / 2
Проект двухцветного коттеджа с двумя гардеробными и большим крыльцом / 1
Проект двухцветного коттеджа с двумя гардеробными и большим крыльцом / 2
D223
170 м²
Подготовка проекта:
3 рабочих дня
Стоимость проекта
Купить проект
Задайте вопросы по проекту нашему архитектору
8 (800) 200-28-83
Время работы: пн-вс: с 9:00 до 20:00
Задать вопрос по проекту

Технические характеристики
Общие
Материал стен
Газобетон
Общая площадь
170 м²
Жилая площадь
112.4 м²
Площадь застройки
121.8 м²
Приведенная площадь
169.9 м²
Количество жилых комнат/спален
5
Этажи
2 этажа
Гараж
Нет гаража
Подвал / цокольный этаж
Без подвала
Длина дома
11.2 м
Ширина дома
9.7 м
Высота в коньке
8.7 м
Кровля
Металлочерепица
Облицовка внешних стен
Мокрая штукатурка
,
Облицовка камнем
Толщина несущих наружных стен
400 мм
Межэтажные перекрытия
Монолитные
Внутренние не несущие перегородки
Газобетонные
Фундамент
Монолитная ж/бетонная плита
Терраса
Терраса крытая
Дополнительные
Окна
Окна до пола
,
Панорамные окна
Камин
Есть
Сауна/баня внутри
Нет
Площадь гостиной
27.5 м²
Площадь кухни
14 м²
Количество санузлов
2
Окно в ванной комнате
Есть
Котельная
Есть
Кабинет
Есть
Хозяйская гардеробная
Есть
Кладовая
2
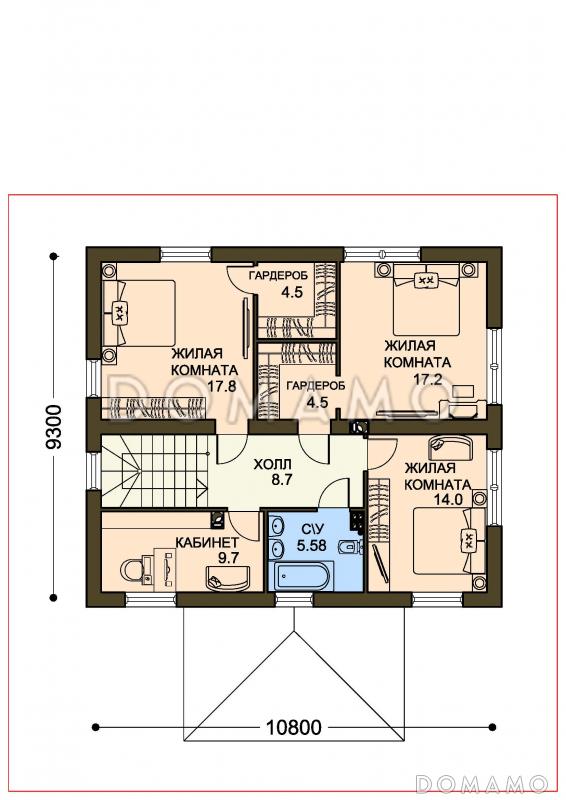
Планы помещений
Фасады
Описание проекта

Большой дом с полноценным вторым этажом позволит комфортно разместить до 4-х — 8-ми жильцов разного возраста, полноценно работать и отдыхать без помех со стороны домочадцев. Постройка из пенобетона делает жилье энергоэффективным, а продуманная планировка — удобным для постоянного проживания:

  • Разделение кухни и гостиной позволит изолировать место отдыха и праздников от кухонного беспорядка и суеты,
  • Размещение спален как на втором, так и на первом этаже поможет легко распределить комнаты между старшим и младшим поколением семьи, а также разместить гостей,
  • В изолированном от жилых помещений кабинете можно безопасно установить компьютер, организовать работу и деловые встречи.
Категории проекта: для постоянного проживания пенобетон современные от 100 до 200 кв.м в европейском стиле с террасой из газобетона готовые двухэтажные с котельной двухэтажные из газобетона из газосиликатных блоков двухэтажные из пеноблоков до 200 кв.м 9х12 загородные с четырехскатной крышей из керамзитобетонных блоков с камином с гардеробной прямоугольные 10х12 с панорамным остеклением в стиле эклектика из газобетона с террасой из блоков двухэтажные из блоков из пеноблоков с террасой загородные из газобетона Проекты двухэтажных домов с террасой Проекты двухэтажных домов с верандой без гаража с террасой и камином с кабинетом двухэтажные 10 на 12 каменные двухэтажные 200 кв м с панорамными окнами и террасой двухэтажные от 150 до 200 кв м из пеноблоков загородные с 5 спальнями двухэтажные до 180 кв.м двухэтажные с камином двухэтажные с панорамными окнами двухэтажные в современном стиле двухэтажные без гаража из газобетона до 200 кв.м из газобетона от 100 до 200 кв.м из газобетона с четырехскатной крышей из газобетона современные из газобетона с панорамными окнами из газобетона с котельной из газобетона прямоугольные из газобетона готовые из газобетона с камином из газобетона с кабинетом из газобетона с изолированной кухней из газобетона для постоянного проживания двухэтажные из газобетона без гаража двухэтажные из газобетона с террасой двухэтажные из газобетона с камином двухэтажные из газобетона с кабинетом двухэтажные из газобетона с котельной двухэтажные из газобетона современные двухэтажные из газобетона с четырехскатной крышей двухэтажные из газобетона до 200 кв. м двухэтажные из газобетона без подвала двухэтажные из газобетона с изолированной кухней современные без гаража современные с панорамными окнами современные с окнами в пол современные с террасой современные от 100 до 200 кв. м из пеноблоков в современном стиле из пеноблоков в стиле эклектика из пеноблоков с четырехскатной крышей из пеноблоков с окнами до пола из пеноблоков с панорамными окнами из пеноблоков прямоугольные из пеноблоков для постоянного проживания из пеноблоков готовые из пеноблоков с камином из пеноблоков от 100 до 200 м2 из пеноблоков с изолированной кухней недорогие с панорамными окнами из клееного бруса без гаража Показать все категории Скрыть категории

Похожие проекты
Состав проекта
Входит в стоимость
Цена, руб. Сроки, дней
Комплект архитектурно-строительных чертежей (АС) Входит в стоимость 3 рабочих дня
Готово к продаже
Цена, руб. Сроки, дней
Паспорт рабочего проекта 4 000 ₽ 3 рабочих дня в корзину
Дополнительная копия проекта формата А3 3 000 ₽ 3 рабочих дня в корзину
Две дополнительные копии проекта формата А3 + 1 паспорт рабочего проекта 10 000 ₽ 3 рабочих дня в корзину
Разрабатывается отдельно
Цена, руб. Сроки, дней
Адаптация фундамента (изменение типа фундамента) по запросу 14 рабочих дней
Дизайн интерьера (стоимость от 2200руб. за квад.метр площади) по запросу 30 рабочих дней
Внесение изменений в проект по запросу 20 рабочих дней
Фэншуй дома 20 000 ₽ 14 рабочих дней в корзину
Фэншуй участка 15 000 ₽ 14 рабочих дней в корзину
Фэншуй полная консультация дом+участок с выездом на объект 100 000 ₽ 30 рабочих дней в корзину
Опции проекта вы можете заказать в корзине при оформлении заказа
Варианты проекта Сравнить все варианты
Избранные проекты
Избранные строители
Отзывы покупателей
Рейтинг покупателей
0 / 5 5 5 1
На основе 1 оценок покупателей
0%
0%
0%
0%
0%
Отзывы о проекте D223
Отзыв о проекте D223
Чтобы оставить отзыв, пожалуйста авторизуйтесь.
Подбор строительной компании
Не знаете кому доверить строительство дома? Мы можем помочь! Подберем для вас из сотен наших партнеров несколько компаний с лучшем соотношением цена/качество под конкретно ваш запрос.
Подобрать