Главная Проекты домов Проект двухэтажного коттеджа с контрофорсной стеной крыльца и вторым светом

D664 Проект двухэтажного коттеджа с контрофорсной стеной крыльца и вторым светом

Сравнить проект В избранное
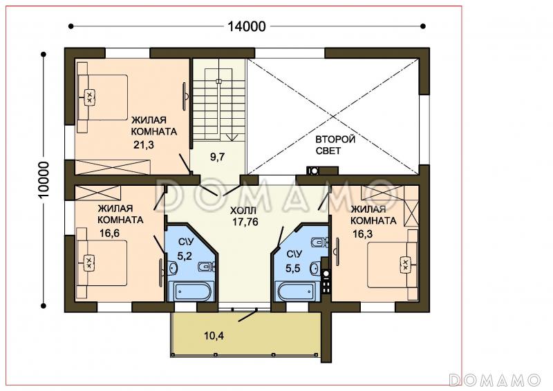
Проект двухэтажного коттеджа с контрофорсной стеной крыльца и вторым светом / 1
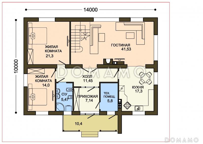
Проект двухэтажного коттеджа с контрофорсной стеной крыльца и вторым светом / 2
Проект двухэтажного коттеджа с контрофорсной стеной крыльца и вторым светом / 1
Проект двухэтажного коттеджа с контрофорсной стеной крыльца и вторым светом / 2
D664
216 м²
Подготовка проекта:
3 рабочих дня
Стоимость проекта
Купить проект
Задайте вопросы по проекту нашему архитектору
8 (800) 200-28-83
Время работы: пн-вс: с 9:00 до 20:00
Задать вопрос по проекту

Технические характеристики
Общие
Материал стен
Газобетон
Общая площадь
216 м²
Жилая площадь
131 м²
Площадь застройки
164.8 м²
Приведенная площадь
219.22 м²
Количество жилых комнат/спален
5
Этажи
2 этажа
Гараж
Нет гаража
Подвал / цокольный этаж
Без подвала
Длина дома
14 м
Ширина дома
10 м
Высота в коньке
6.0 м
Кровля
Металлочерепица
Облицовка внешних стен
Мокрая штукатурка
,
Облицовочный кирпич
Толщина несущих наружных стен
400 мм
Межэтажные перекрытия
По деревянным балкам
Внутренние не несущие перегородки
Газобетонные
Фундамент
Монолитная ж/бетонная плита
Терраса
Терраса крытая
Дополнительные
Окна
Окна до пола
,
Панорамные окна
Второй свет
Есть
Камин
Есть
Сауна/баня внутри
Нет
Площадь гостиной
41.5 м²
Площадь кухни
17.3 м²
Количество санузлов
3
Окно в ванной комнате
Есть
Котельная
Есть
Хозяйский санузел
Есть
Планы помещений
Фасады
Описание проекта

Просторный двухэтажный дом, отличный вариант «родового гнезда» для комфортного проживания нескольких поколений. Пять спален на двух этажах здания, просторная гостиная с панорамными окнами и вторым светом, техническая зона с помещением под котельную — все это позволяет разумно использовать площадь, создать оптимальные условия для людей с различными требованиями к жилому пространству.

Особенности проекта:

  • Большая и светлая гостиная благодаря панорамным окнам и второму свету, дополнительный источник тепла и освещения.
  • Архитектурная выразительность благодаря оригинальной контрфорсной стене.
  • Широкая лестница — забота о пожилых членах семьи.
  • Спальни на первом и втором этажах для людей с различными физическими возможностями.
  • Три санузла, в том числе отдельный санузел для хозяйской спальни.
  • Помещение для котельной с собственным входом.
Категории проекта: для постоянного проживания пенобетон в английском стиле в скандинавском стиле современные от 200 до 300 кв.м в европейском стиле с террасой из бруса в стиле замка из газобетона в стиле хай-тек из газобетона в стиле шале из газобетона в английском стиле из газобетона в немецком стиле из газобетона готовые в финском стиле в стиле минимализм двухэтажные с котельной со вторым светом двухэтажные из газобетона из газосиликатных блоков двухэтажные из пеноблоков загородные с четырехскатной крышей из керамзитобетонных блоков с камином прямоугольные с панорамным остеклением из газобетона с террасой из блоков двухэтажные из блоков из пеноблоков с террасой загородные из газобетона Проекты двухэтажных домов с террасой Проекты двухэтажных домов с верандой без гаража с террасой и камином облицованные кирпичом с панорамными окнами и террасой недорогие из пеноблоков загородные с 5 спальнями от 200 до 250 м двухэтажные с камином двухэтажные со вторым светом двухэтажные с панорамными окнами двухэтажные в современном стиле двухэтажные без гаража из газобетона от 200 до 300 кв.м из газобетона с четырехскатной крышей из газобетона в стиле минимализм из газобетона в скандинавском стиле из газобетона современные из газобетона с панорамными окнами из газобетона с котельной из газобетона прямоугольные из газобетона готовые из газобетона с камином из газобетона с большой кухней из газобетона с изолированной кухней из газобетона для постоянного проживания из газобетона со вторым светом двухэтажные из газобетона без гаража двухэтажные из газобетона с террасой двухэтажные из газобетона с камином двухэтажные из газобетона с котельной двухэтажные из газобетона со вторым светом двухэтажные из газобетона в стиле минимализм двухэтажные из газобетона современные двухэтажные из газобетона с четырехскатной крышей двухэтажные из газобетона без подвала двухэтажные из газобетона с изолированной кухней двухэтажные из газобетона с большой гостиной современные без гаража современные с панорамными окнами современные с окнами в пол современные с террасой современные со вторым светом скандинавские для постоянного проживания скандинавские без гаража скандинавские с окнами в пол скандинавские с панорамными окнами скандинавские с террасой скандинавские с большой гостиной скандинавские с большой кухней скандинавские готовые скандинавские с вторым светом скандинавские прямоугольные скандинавские с камином скандинавские от 200 до 300 м2 скандинавские с четырехскатной крышей скандинавские недорогие скандинавские с котельной из пеноблоков в скандинавском стиле из пеноблоков в современном стиле из пеноблоков в стиле минимализм из пеноблоков с четырехскатной крышей из пеноблоков с окнами до пола из пеноблоков с панорамными окнами из пеноблоков с вторым светом из пеноблоков прямоугольные из пеноблоков для постоянного проживания из пеноблоков недорогие из пеноблоков готовые из пеноблоков с камином из пеноблоков от 200 до 300 м2 из пеноблоков с большой гостиной из пеноблоков с большой кухней из пеноблоков с изолированной кухней в стиле минимализм для постоянного проживания в стиле минимализм без гаража в стиле минимализм прямоугольные в стиле минимализм с четырехскатной крышей в стиле минимализм с окнами в пол в стиле минимализм с панорамными окнами в стиле минимализм с террасой в стиле минимализм с большой гостиной в стиле минимализм с котельной в стиле минимализм с камином в стиле минимализм недорогие в стиле минимализм от 200 до 300 м2 в стиле минимализм с монолитным фундаментом недорогие двухэтажные недорогие без гаража недорогие с террасой недорогие для постоянного проживания недорогие с четырехскатной крышей недорогие с окнами до пола недорогие с панорамными окнами недорогие с большой гостиной недорогие с изолированной кухней недорогие без бани недорогие с котельной недорогие с вторым светом недорогие с камином недорогие прямоугольные недорогие от 200 до 300 м2 из клееного бруса без гаража Показать все категории Скрыть категории

Похожие проекты
Состав проекта
Входит в стоимость
Цена, руб. Сроки, дней
Комплект архитектурно-строительных чертежей (АС) Входит в стоимость 3 рабочих дня
Готово к продаже
Цена, руб. Сроки, дней
Зеркальная версия проекта Входит в стоимость 3 рабочих дня
Паспорт рабочего проекта 4 000 ₽ 3 рабочих дня в корзину
Дополнительная копия проекта формата А3 3 000 ₽ 3 рабочих дня в корзину
Две дополнительные копии проекта формата А3 + 1 паспорт рабочего проекта 10 000 ₽ 3 рабочих дня в корзину
Разрабатывается отдельно
Цена, руб. Сроки, дней
Адаптация фундамента (изменение типа фундамента) по запросу 14 рабочих дней
Дизайн интерьера (стоимость от 2200руб. за квад.метр площади) по запросу 30 рабочих дней
Внесение изменений в проект по запросу 20 рабочих дней
Фэншуй дома 20 000 ₽ 14 рабочих дней в корзину
Фэншуй участка 15 000 ₽ 14 рабочих дней в корзину
Фэншуй полная консультация дом+участок с выездом на объект 100 000 ₽ 30 рабочих дней в корзину
Опции проекта вы можете заказать в корзине при оформлении заказа
Варианты проекта Сравнить все варианты
Избранные проекты
Избранные строители
Отзывы покупателей
Рейтинг покупателей
0 / 5 5 5 1
На основе 1 оценок покупателей
0%
0%
0%
0%
0%
Отзывы о проекте D664
Отзыв о проекте D664
Чтобы оставить отзыв, пожалуйста авторизуйтесь.
Подбор строительной компании
Не знаете кому доверить строительство дома? Мы можем помочь! Подберем для вас из сотен наших партнеров несколько компаний с лучшем соотношением цена/качество под конкретно ваш запрос.
Подобрать