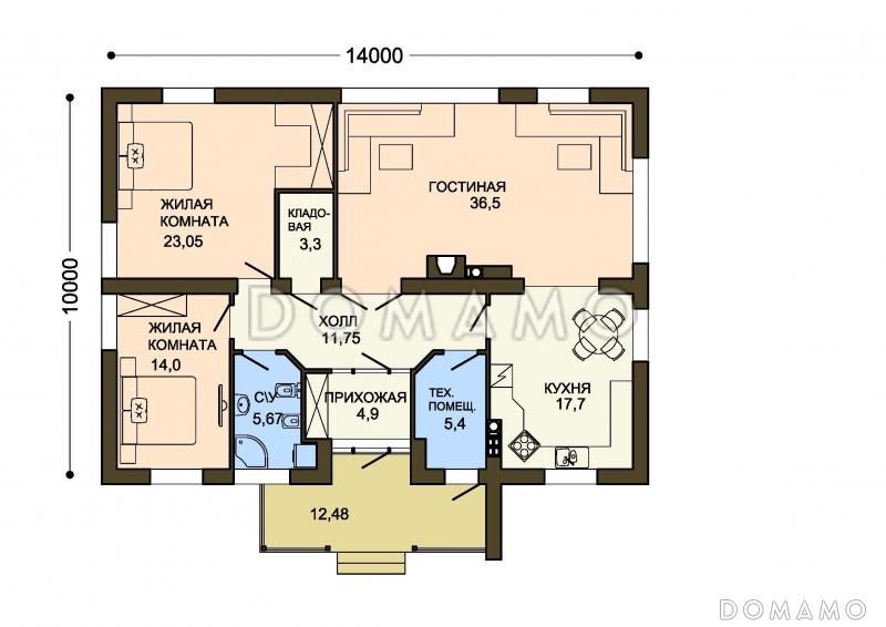
Проект одноэтажного дома с жилой площадью в 73,5 кв. м. предназначенного ля проживания семьи из 3-4 человек. Благодаря компактной планировке на площади постройки в 116,4 кв. м. рационально расположены две спальни, просторная гостиная с панорамными окнами, кухня и все необходимые технические помещения, в т. ч. котельная. Теплый и недорогой материал стен, пенобетон, в сочетании с отделкой кирпичом обеспечивают высокую энергоэффективность и снижение расходов на отопление.
Особенности проекта: