Главная Проекты домов Проект одноэтажного дома с панорамным окном на крытую террасу

D238 Проект одноэтажного дома с панорамным окном на крытую террасу

Сравнить проект В избранное
Проект одноэтажного дома с панорамным окном на крытую террасу / 1
Проект одноэтажного дома с панорамным окном на крытую террасу / 2
Проект одноэтажного дома с панорамным окном на крытую террасу / 3
Проект одноэтажного дома с панорамным окном на крытую террасу / 4
Проект одноэтажного дома с панорамным окном на крытую террасу / 1
Проект одноэтажного дома с панорамным окном на крытую террасу / 2
Проект одноэтажного дома с панорамным окном на крытую террасу / 3
Проект одноэтажного дома с панорамным окном на крытую террасу / 4
D238
110 м²
Технические характеристики
Общие
Материал стен
Газобетон
Общая площадь
110 м²
Жилая площадь
66 м²
Площадь застройки
172.6 м²
Приведенная площадь
115.41 м²
Количество жилых комнат/спален
2
Этажи
1 этаж
Гараж
Нет гаража
Подвал / цокольный этаж
Без подвала
Длина дома
13 м
Ширина дома
9.4 м
Высота в коньке
6.2 м
Кровля
Металлочерепица
Облицовка внешних стен
Мокрая штукатурка
,
Облицовочный кирпич
Толщина несущих наружных стен
400 мм
Межэтажные перекрытия
По деревянным балкам
Внутренние не несущие перегородки
Газобетонные
Фундамент
Малозаглубленные ростверки
Терраса
Терраса крытая
Дополнительные
Окна
Окна до пола
,
Панорамные окна
Камин
Есть
Сауна/баня внутри
Нет
Площадь гостиной
25.6 м²
Площадь кухни
12.5 м²
Количество санузлов
1
Окно в ванной комнате
Есть
Котельная
Есть
Хозяйский санузел
Есть
Кладовая
1
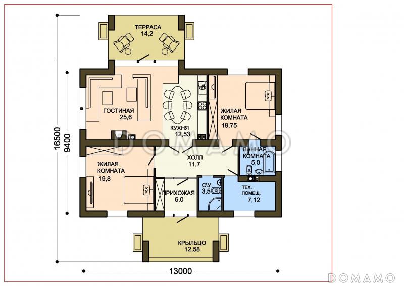
Планы помещений
Фасады
Описание проекта

Одноэтажный дом в стандартном общем размере 10×13 метров для круглогодичного проживания семьи из 3-4 человек. Одна из основных особенностей — большая, совмещенная с кухней гостиная с панорамным окном и выходом на крытую террасу, отличное место для вечернего чаепития или отдыха возле бассейна. Основа планировки — разделение функциональных и жилых помещений, в число последних входит санузел и просторная ванная комната.

Особенности проекта:

  • Два входа — парадный с крыльца и внутренний с террасы.
  • Теплый и недорогой материал наружных стен — дополнительная экономия на отоплении.
  • Большие окна гостиной — естественный источник освещения.
  • Просторная кухня-гостиная, возможность зонирования или разделения на отдельные помещения.
  • Отдаленные друг от друга спальни — гарантия приватности.
  • Оригинальная архитектура по мотивам стиля шале.
Категории проекта: для постоянного проживания пенобетон в английском стиле в скандинавском стиле современные от 100 до 200 кв.м в европейском стиле с террасой из бруса в стиле замка из газобетона в стиле хай-тек из газобетона в стиле шале из газобетона в английском стиле из газобетона в немецком стиле из газобетона одноэтажные из пеноблоков готовые в финском стиле в стиле минимализм одноэтажные одноэтажные до 150 кв. м. одноэтажные с котельной с котельной одноэтажные из газобетона из газосиликатных блоков до 120 кв.м до 150 кв.м до 200 кв.м загородные с четырехскатной крышей из керамзитобетонных блоков с камином прямоугольные с панорамным остеклением из газобетона с террасой из блоков одноэтажные из блоков из пеноблоков с террасой загородные из газобетона Проекты одноэтажных домов с террасой Типовые проекты загородных одноэтажных домов без гаража одноэтажные без гаража с террасой и камином облицованные кирпичом одноэтажных из керамзитобетонных блоков одноэтажные финские одноэтажные с 2 спальнями одноэтажные до 120 кв.м с панорамными окнами и террасой одноэтажные до 200 кв м до 140 кв м недорогие до 130 кв м из пеноблоков загородные одноэтажные современные одноэтажные в стиле минимализм одноэтажные с четырехскатной крышей одноэтажные прямоугольные одноэтажные с панорамными окнами одноэтажные с окнами в пол одноэтажные с камином одноэтажные до 180 м2 одноэтажные из газобетона с террасой одноэтажные из газобетона до 120 кв. м одноэтажные из газобетона до 150 кв. м одноэтажные из газобетона с мансардой одноэтажные из газобетона с 2 спальнями скандинавский стиль минимализм современные панорамные окна окна в пол четырехскатная крыша прямоугольные с камином готовые проекты для постоянного проживания с котельной из газобетона до 120 кв.м из газобетона до 150 кв.м из газобетона до 200 кв.м из газобетона от 100 до 200 кв.м из газобетона с четырехскатной крышей из газобетона в стиле минимализм из газобетона в скандинавском стиле из газобетона современные из газобетона с панорамными окнами из газобетона с котельной из газобетона прямоугольные из газобетона готовые из газобетона с камином из газобетона с двумя спальнями из газобетона для постоянного проживания современные без гаража современные с панорамными окнами современные с окнами в пол современные с террасой современные небольшие современные до 120 кв. м современные до 150 кв. м современные от 100 до 200 кв. м скандинавские для постоянного проживания скандинавские без гаража скандинавские с окнами в пол скандинавские с панорамными окнами скандинавские с террасой скандинавские готовые скандинавские прямоугольные скандинавские маленькие скандинавские до 120 м2 скандинавские до 150 кв. м скандинавские от 100 до 200 м2 скандинавские с камином скандинавские с четырехскатной крышей скандинавские недорогие скандинавские с котельной до 120 кв.м готовые до 120 кв.м для постоянного проживания до 120 кв.м без гаража до 120 кв.м с четырехскатной крышей до 120 кв.м с окнами в пол до 120 кв.м с панорамными окнами до 120 кв.м с террасой до 120 кв.м минимализм до 120 кв.м с котельной до 120 кв.м с 2 спальнями до 120 кв.м прямоугольные до 150 кв.м для постоянного проживания до 150 кв.м без гаража до 150 кв.м с четырехскатной крышей до 150 кв.м с окнами до пола до 150 кв.м с панорамными окнами до 150 кв.м минимализм до 150 кв.м готовые до 150 кв.м прямоугольные до 150 кв.м с котельной до 150 кв.м без бани до 150 кв.м с террасой до 150 кв.м без подвала до 150 кв.м с 2 спальнями до 150 кв.м с камином из пеноблоков в скандинавском стиле из пеноблоков в современном стиле из пеноблоков в стиле минимализм из пеноблоков с четырехскатной крышей из пеноблоков с окнами до пола из пеноблоков с панорамными окнами из пеноблоков прямоугольные из пеноблоков для постоянного проживания из пеноблоков недорогие из пеноблоков готовые из пеноблоков с камином из пеноблоков до 120 м кв. из пеноблоков до 150 м кв. из пеноблоков от 100 до 200 м2 из пеноблоков с 2 спальнями в стиле минимализм для постоянного проживания в стиле минимализм без гаража в стиле минимализм прямоугольные в стиле минимализм с четырехскатной крышей в стиле минимализм с окнами в пол в стиле минимализм с панорамными окнами в стиле минимализм с террасой в стиле минимализм с котельной в стиле минимализм с камином в стиле минимализм недорогие в стиле минимализм от 100 до 200 м2 в стиле минимализм небольшие в стиле минимализм с ростверкным фундаментом недорогие без гаража недорогие с террасой недорогие для постоянного проживания недорогие с четырехскатной крышей недорогие с окнами до пола недорогие с панорамными окнами недорогие без бани недорогие с котельной недорогие с камином недорогие прямоугольные недорогие до 120 м2 недорогие до 150 м2 недорогие от 100 до 200 м2 из клееного бруса без гаража Показать все категории Скрыть категории

Похожие проекты
Состав проекта
Входит в стоимость
Цена, руб. Сроки, дней
Комплект архитектурно-строительных чертежей (АС) Входит в стоимость 3 рабочих дня
Готово к продаже
Цена, руб. Сроки, дней
Паспорт рабочего проекта 4 000 ₽ 3 рабочих дня в корзину
Дополнительная копия проекта формата А3 3 000 ₽ 3 рабочих дня в корзину
Две дополнительные копии проекта формата А3 + 1 паспорт рабочего проекта 10 000 ₽ 3 рабочих дня в корзину
Разрабатывается отдельно
Цена, руб. Сроки, дней
Адаптация фундамента (изменение типа фундамента) по запросу 14 рабочих дней
Дизайн интерьера (стоимость от 2200руб. за квад.метр площади) по запросу 30 рабочих дней
Внесение изменений в проект по запросу 20 рабочих дней
Фэншуй дома 20 000 ₽ 14 рабочих дней в корзину
Фэншуй участка 15 000 ₽ 14 рабочих дней в корзину
Фэншуй полная консультация дом+участок с выездом на объект 100 000 ₽ 30 рабочих дней в корзину
Опции проекта вы можете заказать в корзине при оформлении заказа
Предложения строителей Свердловская область
Подбор строительной компании
Не знаете кому доверить строительство дома? Мы можем помочь! Подберем для вас из сотен наших партнеров несколько компаний с лучшем соотношением цена/качество под конкретно ваш запрос.
Подобрать
Посмотреть еще 3 компании Свернуть
Отзывы покупателей
Рейтинг покупателей
0 / 5 5 5 1
На основе 1 оценок покупателей
0%
0%
0%
0%
0%
Отзывы о проекте D238
Отзыв о проекте D238
Чтобы оставить отзыв, пожалуйста авторизуйтесь.
Подбор строительной компании
Не знаете кому доверить строительство дома? Мы можем помочь! Подберем для вас из сотен наших партнеров несколько компаний с лучшем соотношением цена/качество под конкретно ваш запрос.
Подобрать