Технические характеристики
Общие
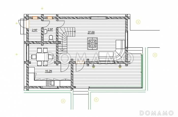
Количество жилых комнат/спален
Толщина несущих наружных стен
Внутренние не несущие перегородки
Дополнительные
Дом для неровных участков (с рельефом)
Описание проекта
Каркас дома, стены:
Брус сечением 100\150\200*50мм с шагом 60см, нижняя обвязка 150*150, 200*200мм, угловые стойки брусовые 150\200*150мм, верхний пояс брусовой 150\200*150мм. Материал - естественной влажности или сухой принудительной сушки, пропитан антисептиком(Био-огне защита).
Лаги, стропила:
Брусовые сечением 100*150мм(ставятся на ребро), шаг 60см, стропильная система брус сечением 150\200*50мм, подстропильные балки доска сечением 150\200*50мм, порешетник обрезная доска 25мм, контр. обрешетка под кровлю брус 25-40мм.
Пол:
Черновой- обрезная доска 25мм, укладывается на черепной брусок сечением 50*50мм, чистовой- шпунтованная доска 36\46мм(Сухая)(Либо фанера или ОSB в 2 слоя).
Перегородки:
Брус сечением 100\150\200*50мм.
Утеплитель, мембранны:
Стены 100\150\200мм, пол - 150\200мм, межэтажное перекрытие от 100\150\200мм, Потолок мансарды - 150\200мм, ветро-паро-гидро защита.
Сборка дома:
Сборка дома на металлические усиленные оцинкованные уголки и пластины.
Состав проекта
Входит в стоимость
|
Цена, руб. |
Сроки, дней |
|
|
|
Комплект архитектурно-строительных чертежей (АС)
|
Входит в стоимость |
Готов к отправке |
|
Разрабатывается отдельно
|
Цена, руб. |
Сроки, дней |
|
|
|
Адаптация фундамента (изменение типа фундамента)
|
по запросу |
14 рабочих дней |
|
|
|
Дизайн интерьера (стоимость от 2200руб. за квад.метр площади)
|
по запросу |
30 рабочих дней |
|
|
|
Внесение изменений в проект
|
по запросу |
20 рабочих дней |
|
|
|
Фэншуй дома
|
20 000 ₽ |
14 рабочих дней |
в корзину
|
|
|
Фэншуй участка
|
15 000 ₽ |
14 рабочих дней |
в корзину
|
|
|
Фэншуй полная консультация дом+участок с выездом на объект
|
100 000 ₽ |
30 рабочих дней |
в корзину
|
Опции проекта вы можете заказать в корзине при оформлении заказа