Главная Проекты домов Проект двухэтажного дома из клееного бруса с роскошной террасой

D386 Проект двухэтажного дома из клееного бруса с роскошной террасой

Сравнить проект В избранное
Проект двухэтажного дома из клееного бруса с роскошной террасой / 1
Проект двухэтажного дома из клееного бруса с роскошной террасой / 1
D386
396 м²
Проект с подрядом
Артикул проекта: КРОКУС
Компания: Ecohouse Group
Стоимость строительства
7 225 000 ₽
Заказать подробную смету
+7 (812) XXX-XX-XX Показать телефон
Задать вопрос по проекту
Технические характеристики
Общие
Материал стен
Клееный брус
Общая площадь
396 м²
Приведенная площадь
291.57 м²
Количество жилых комнат/спален
4
Этажи
2 этажа
Гараж
Нет гаража
Подвал / цокольный этаж
Без подвала
Длина дома
15.9 м
Ширина дома
12.0 м
Кровля
Металлочерепица
Облицовка внешних стен
Без облицовки
Толщина несущих наружных стен
160 мм
Межэтажные перекрытия
По деревянным балкам
Внутренние не несущие перегородки
Каркасно-обшивные
Терраса
Терраса крытая
Дополнительные
Окна
Окна до пола
,
Панорамные окна
Второй свет
Есть
Сауна/баня внутри
Нет
Площадь гостиной
50 м²
Площадь кухни
25 м²
Количество санузлов
4
Котельная
Есть
Хозяйский санузел
Есть
Хозяйская гардеробная
Есть
Кладовая
3
Балкон / лоджия
Балкон
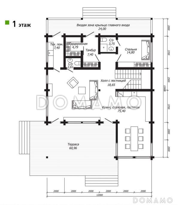
Планы помещений
Описание проекта
Компания Domamo предлагает проект двухэтажного дома из клееного бруса с роскошной террасой D386. Общая площадь - 396 м2, размер - 15.9х12.0 м. Фундамент - , кровля - металлочерепица, внешняя отделка - без облицовки. Для заказа проекта или внесения изменений свяжитесь с нами с помощью форм обратной связи на сайте или по телефону +7 (343) 357-92-70.
Категории проекта: деревянные для постоянного проживания из клееного бруса в английском стиле в скандинавском стиле от 300 до 400 кв.м в европейском стиле с террасой из бруса в стиле замка в финском стиле двухэтажные с котельной со вторым светом двухэтажные деревянные с плоской крышей загородные с гардеробной прямоугольные с балконом с панорамным остеклением Проекты деревянных домов с террасой Проекты двухэтажных домов из клееного бруса Проекты двухэтажных домов с террасой Проекты двухэтажных домов с верандой без гаража деревянные для круглогодичного проживания с 4 спальнями с панорамными окнами и террасой с балконом и террасой двухэтажные со вторым светом двухэтажные с панорамными окнами двухэтажные с 4 спальнями двухэтажные с балконом двухэтажные с балконом и террасой двухэтажные без гаража скандинавские для постоянного проживания скандинавские без гаража скандинавские с окнами в пол скандинавские с панорамными окнами скандинавские с террасой скандинавские с большой гостиной скандинавские с большой кухней скандинавские с вторым светом скандинавские с балконом скандинавские прямоугольные скандинавские большие скандинавские с котельной деревянные в скандинавском стиле деревянные с окнами в пол деревянные с вторым светом деревянные с панорамными окнами деревянные с балконом деревянные прямоугольные деревянные без гаража деревянные с подрядом деревянные без подвала деревянные с 4 спальнями деревянные с большой гостиной деревянные с большой кухней деревянные от 300 до 400 м2 недорогие с панорамными окнами из клееного бруса проект с подрядом из клееного бруса для постоянного проживания из клееного бруса прямоугольный из клееного бруса с балконом из клееного бруса с вторым светом из клееного бруса с окнами в пол (в гостиной) из клееного бруса с окнами в пол (на кухне) из клееного бруса с окнами в пол из клееного бруса с панорамными окнами из клееного бруса в скандинавском стиле из клееного бруса с каркасно-обшивными перегородками из клееного бруса без облицовки из клееного бруса с перекрытиями по деревянным балкам из клееного бруса с кровлей из металлочерепицы из клееного бруса с хозяйской гардеробной из клееного бруса с хозяйским санузлом из клееного бруса с котельной из клееного бруса с выходом на терассу из гостиной из клееного бруса с выходом на терассу из кухни из клееного бруса с крытой терассой из клееного бруса без подвала из клееного бруса без гаража из клееного бруса двухэтажные из клееного бруса от 300 до 400 м2 из клееного бруса с большой гостиной с плоской крышей двухэтажные с плоской крышей и большой террасой с плоской крышей и большой гостиной с плоской крышей проект с подрядом с плоской крышей для постоянного проживания с плоской крышей прямоугольные с плоской крышей и балконом с плоской крышей и окнами в пол в гостиной с плоской крышей и окнами в пол на кухне с плоской крышей и окнами до пола с плоской крышей и панорамными окнами с плоской крышей и хозяйской гардеробной с плоской крышей и хозяйским санузлом с плоской крышей и котельной с плоской крышей без сауны Проекты домов с подрядом Показать все категории Скрыть категории

Похожие проекты
Состав проекта
Входит в стоимость
Цена, руб. Сроки, дней
Комплект архитектурно-строительных чертежей (АС) Входит в стоимость Готов к отправке
Разрабатывается отдельно
Цена, руб. Сроки, дней
Адаптация фундамента (изменение типа фундамента) по запросу 14 рабочих дней
Дизайн интерьера (стоимость от 2200руб. за квад.метр площади) по запросу 30 рабочих дней
Внесение изменений в проект по запросу 20 рабочих дней
Фэншуй дома 20 000 ₽ 14 рабочих дней в корзину
Фэншуй участка 15 000 ₽ 14 рабочих дней в корзину
Фэншуй полная консультация дом+участок с выездом на объект 100 000 ₽ 30 рабочих дней в корзину
Опции проекта вы можете заказать в корзине при оформлении заказа
Комплектации
Отзывы покупателей
Рейтинг покупателей
0 / 5 5 5 1
На основе 1 оценок покупателей
0%
0%
0%
0%
0%
Отзывы о проекте D386
Отзыв о проекте D386
Чтобы оставить отзыв, пожалуйста авторизуйтесь.
Подбор строительной компании
Не знаете кому доверить строительство дома? Мы можем помочь! Подберем для вас из сотен наших партнеров несколько компаний с лучшем соотношением цена/качество под конкретно ваш запрос.
Подобрать