D5665 Башня

Сравнить проект В избранное
Башня / 1
Башня / 2
Башня / 3
Башня / 4
Башня / 1
Башня / 2
Башня / 3
Башня / 4
D5665
Проект с подрядом
Компания: Мастер-дом36
Стоимость строительства
1 437 280 ₽
Заказать подробную смету
+7 (473) XXX-XX-XX Показать телефон
Задать вопрос по проекту
Технические характеристики
Общие
Материал стен
Брус
,
Клееный брус
,
Каркас
Жилая площадь
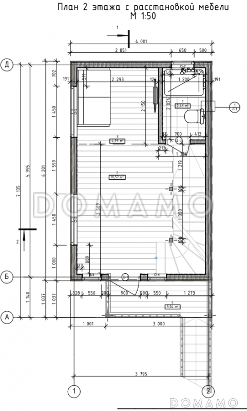
57.41 м²
Площадь застройки
24.8 м²
Приведенная площадь
55.282 м²
Количество жилых комнат/спален
3
Этажи
3 этажа
Гараж
Нет гаража
Количество машин
1
Подвал / цокольный этаж
Без подвала
Длина дома
7.135 м
Ширина дома
4.001 м
Кровля
Металлочерепица
Фундамент
Свайный
Дополнительные
Площадь гостиной
10.57 м²
Количество санузлов
1
Кабинет
Есть
Кладовая
1
Балкон / лоджия
Балкон
Планы помещений
Описание проекта
Компания Domamo предлагает проект трехуровневого дома Башня D5665. Жилая площадь - 57 м2, размер - 7,135х4,001 м. Фундамент - свайный, кровля - металлочерепица. Для заказа проекта или внесения изменений свяжитесь с нами с помощью форм обратной связи на сайте или по телефону +7 (812) 243-14-70.
Категории проекта: деревянные для постоянного проживания каркасные из клееного бруса из бруса для узких участков дачные дома гостевые из бруса в немецком стиле из профилированного бруса трехэтажные загородные узкие прямоугольные с балконом загородные дома из бруса дачные из бруса дачные деревянные Проекты гостевых домов из дерева Проекты гостевых каркасных домов без гаража с кабинетом Проекты домов с тремя спальнями каркасные для постоянного проживания из бруса для постоянного проживания деревянные для круглогодичного проживания дачные каркасные без гаража с подрядом с тремя спальнями деревянные с балконом деревянные прямоугольные деревянные без гаража деревянные с подрядом деревянные без подвала деревянные с 3 спальнями недорогие гостевые из клееного бруса проект с подрядом из клееного бруса дачный дом из клееного бруса гостевой дом из клееного бруса для постоянного проживания из клееного бруса прямоугольный из клееного бруса с балконом из клееного бруса в скандинавском стиле из клееного бруса со свайным фундаментом из клееного бруса с кровлей из металлочерепицы из клееного бруса с кабинетом из клееного бруса без подвала из клееного бруса без гаража из бруса проект с подрядом из бруса прямоугольные из бруса с балконом из бруса со свайным фундаментом из бруса с кровлей из металлочерепицы из бруса с кабинетом из бруса без эркера из бруса без подвала из бруса без гаража Проекты домов с подрядом Показать все категории Скрыть категории

Похожие проекты
Состав проекта
Входит в стоимость
Цена, руб. Сроки, дней
Комплект архитектурно-строительных чертежей (АС) Входит в стоимость Готов к отправке
Разрабатывается отдельно
Цена, руб. Сроки, дней
Адаптация фундамента (изменение типа фундамента) по запросу 14 рабочих дней
Дизайн интерьера (стоимость от 2200руб. за квад.метр площади) по запросу 30 рабочих дней
Внесение изменений в проект по запросу 20 рабочих дней
Фэншуй дома 20 000 ₽ 14 рабочих дней в корзину
Фэншуй участка 15 000 ₽ 14 рабочих дней в корзину
Фэншуй полная консультация дом+участок с выездом на объект 100 000 ₽ 30 рабочих дней в корзину
Опции проекта вы можете заказать в корзине при оформлении заказа
Комплектации
Сравнить 0 комплектаций
Свернуть все
Развернуть все
Минимальная
1 437 280 ₽
Сравнить
Стандарт
1 851 880 ₽
Сравнить
Кровля
Кровельное покрытие
Обрешетка
Контробрешетка
Противоконденсатная (ветро-гидроизоляционная) пленка
Стропильная система
Утепление чердачного перекрытия и стропильной системы
Подшивка свесов кровли
Подшивка потолков террас и лоджий
Водосточная система
Система снегозадержания
Молниезащита
Фундамент
Сваи ж/бетонные
Сваи стальные винтовые
Лента ж/бетонная монолитная мелкозаглубленная
Лента ж/бетонная монолитная на глубину промерзания
Лента ж/бетонная сборная (из ФБС) на глубину промерзания
Плита ж/бетонная монолитная мелкозаглубленная
УШП (Утепленная Шведская Плита)
Бетоннная отмостка по периметру дома
Дренажная система по периметру дома
Ливневая система
Облицовка цоколя фундамента
Система контурного заземления
Стены
Несущая часть стены
Фасадная отделка
Ветрозащита
Утепление стены
Пароизоляция
Внутренняя обшивка/штукатурка со стороны помещения
Пол первого этажа
Несущая часть перекрытия
Теплоизоляция цокольного перекрытия
Стяжка/подготовка под чистый пол
Перекрытия над первым и последующими этажами
Несущая часть перекрытия
Звукоизоляция/теплоизоляция в перекрытии
Стяжка/подготовка под чистый пол
Отделка потолка нижележащего этажа
Окна и внешние двери
Окна
Оконные наличники
Откосы в помещении
Отливы снаружи
Подоконники
Входные двери
Внутренние конструкции
Внутренние несущие стены
Внутренние ненесущие стены
Звукоизоляция внутренних стен/перегородок
Межэтажная строительная (черновая) лестница
Межэтажная постоянная (чистовая) лестница
Межкомнатные двери
Высота потолков 1 этажа
2,6
2,6
Высота потолков 2 этажа
2,4
2,4
Настилы полов и ограждения крылец, террас, балконов
Гидроизоляция полов балконов
Инженерное оснащение
Жидкостной теплый пол
Электрический теплый пол
Система вентиляции
Только вводы воды, электричества, выводы канализации
Электроразводка и электрощит
Разводка хол. и гор. водоснабжения (ХВС и ГВС)
Разводка батарей и/или системы теплого пола. Без оборудования котельной.
Иное инженерное оснащение
Подготовка участка для строительства
Устройство временного щита электроснабжения
Устройство въезда на участок
Дорога на участке до пятна застройки
Подъем пятна застройки
Подготовка пятна застройки для фундаментных работ
Перемещение или вывоз грунта из котлована фундамента
Обеспечение строительного процесса
Доставка стройматериалов
Генератор для обеспечения электричеством
Уборка и вывоз строительного мусора
Организация проживания рабочих (бытовка)
Биотуалет для рабочих
Гарантия на все выполненные работы
Гарантия
Отзывы покупателей
Рейтинг покупателей
0 / 5 5 5 1
На основе 1 оценок покупателей
0%
0%
0%
0%
0%
Отзывы о проекте D5665
Отзыв о проекте D5665
Чтобы оставить отзыв, пожалуйста авторизуйтесь.
Подбор строительной компании
Не знаете кому доверить строительство дома? Мы можем помочь! Подберем для вас из сотен наших партнеров несколько компаний с лучшем соотношением цена/качество под конкретно ваш запрос.
Подобрать