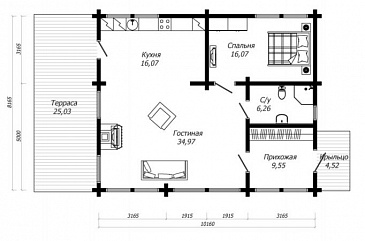
Проекты одноэтажных деревянных домов с камином

28 проектов

Для поиска проекта воспользуйтесь удобным расширенным фильтром,
где более 60 опций для фильтрации
Расширенный подбор


Поиск по номеру проекта
Тип проекта
Готовый проект
Домокомплект
Проект с подрядом
Материал стен
Газобетон
Кирпич
Брус
Клееный брус
Бревно
Деревянный кирпич
Каркас
Каркасно-панельные
SIP
Фахверк
Монолит
ЛСТК
Керамоблок
Керамзитобетон
Общая площадь
-
м²
Жилая площадь
-
м²
Площадь застройки
-
м²
Количество жилых комнат/спален
-
Назначение (тип) дома
Дом для постоянного проживания
Гостевой дом
Дачный дом / летний / сезонный
Дом охраны
Этажи
1 этаж
1 этаж + мансарда
2 этажа
2 этажа + мансарда
3 этажа
3 этажа + мансарда
Холодный чердак
Гараж
Встроенный гараж
Подземный гараж
Пристроенный гараж
Пристроенный навес
Нет гаража
Количество машин
нет
1
2
3
4
5
Подвал / цокольный этаж
Без окон
Без подвала
С окнами
Погреб
Длина дома
-
м
Ширина дома
-
м
Высота в коньке
-
м
Форма крыши
Односкатные (косые)
Двухскатные
Четырехскатные
Вальмовые
Мансардные
Плоские
Эксплуатируемые
Стеклянные
Шале
Ломаные
Шатровые (Пирамидальные)
Многощипцовые
Купольные (сферические)
Сложной формы
Кровля
Гибкая черепица
Клик-фальц
Композитная черепица
Медь
Металлочерепица
Натуральная черепица
Ондулин
Оцинкованный стальной лист гладкий
Оцинкованный стальной лист профилированный
Полимерная мембрана
Рулонная кровля
Сланцевая кровля
Стальной профилированный лист
Фальцевая кровля
Облицовка внешних стен
Без облицовки
Деревянная вагонка
Керамогранит
Клинкерная плитка
Кровельный материал
Мокрая штукатурка
Облицовка камнем
Облицовочный кирпич
Сайдинг
Фальц
Фасадные панели
Толщина несущих наружных стен
-
мм
Межэтажные перекрытия
Монолитные
По деревянным балкам
По стальным балкам
Сборно-монолитные
Сборные
Щитовые
Внутренние не несущие перегородки
Газобетонные
Газосиликатные блоки
Гипсолитовые
Каркасно-обшивные
Керамзитобетонные блоки
Керамоблоки
Кирпичные
Монолит
Фундамент
Столбчатый
Свайный
Монолитная ж/бетонная плита
Утепленная шведская плита (УШП)
Ленточный монолитный
Ленточный заглубленный из ФБС
Cборно-монолитный
Малозаглубленные ростверки
Свайно-ростверковый
Высота 1-го этажа
-
м
Высота 2 этажа
-
м
Высота 3 этажа
-
м
Высота мансардного этажа
-
м
Высота цокольного этажа / подвала
-
м
Стиль
Американское кантри
Английский
Барнхаус
Барокко
Голландский
Европейская усадьба
Классический
Минимализм
Модерн
Райт
Русская усадьба
Скандинавский
Средневековый замок
Современный
Фахверк
Хай-тек
Шале
Эклектика
Окна
Окна до пола
Панорамные окна
Круглые окна
Окна с французским балконом
Окна в пол
В гостиной
На кухне
Второй свет
Мансардные окна
Камин
Печь
Терраса
Терраса открытая
Терраса крытая
Терраса застекленная (веранда)
Без террасы
Площадь террасы
-
м²
Выход на террасу
Из гостиной
Из кухни
Барбекю на террасе
Эркер
Без эркера
С 1 эркером
С 2 эркерами
С полукруглым эркером
Колонны
С башней (круглый эркер)
Стоимость строительства
-
Сауна/баня внутри
Есть
Нет
Купель
Бассейн
Площадь гостиной
-
м²
Площадь кухни
-
м²
Изолированная кухня
Количество санузлов
-
Окно в ванной комнате
Котельная
Кабинет
Постирочная
Спортзал / детский / игровой зал
Бильярдная
Хозяйский санузел
Хозяйская гардеробная
Кладовая
-
Зимний сад
Внутренний двор / атриум
Дом для неровных участков (с рельефом)
Дом для узких участков
Балкон / лоджия
Балкон
Лоджия
Форма дома
Прямоугольный
Квадратный
Угловой (буквой Г)
П-образный (полукаре)
Т-образный (буквой Т)
Круглый
Сложной формы
Длина участка
-
м
Ширина участка
-
м
Стоимость проекта
-
Расширенный подбор домов
Габариты и площади
Общая площадь
-
м²
Жилая площадь
-
м²
Площадь застройки
-
м²
Длина дома
-
м
Ширина дома
-
м
Высота в коньке
-
м
Высота 1-го этажа
-
м
Высота 2 этажа
-
м
Высота 3 этажа
-
м
Высота мансардного этажа
-
м
Высота цокольного этажа / подвала
-
м
Площадь террасы
-
м²
Площадь гостиной
-
м²
Площадь кухни
-
м²
Длина участка
-
м
Ширина участка
-
м
Планировки
Количество жилых комнат/спален
-
Этажи
1 этаж
1 этаж + мансарда
2 этажа
2 этажа + мансарда
3 этажа
3 этажа + мансарда
Холодный чердак
Гараж
Встроенный гараж
Подземный гараж
Пристроенный гараж
Пристроенный навес
Нет гаража
Количество машин
нет
1
2
3
4
5
Подвал / цокольный этаж
Без окон
Без подвала
С окнами
Терраса
Терраса открытая
Терраса крытая
Терраса застекленная (веранда)
Без террасы
Выход на террасу
Из гостиной
Из кухни
Эркер
Без эркера
С 1 эркером
С 2 эркерами
С полукруглым эркером
Сауна/баня внутри
Есть
Нет
Изолированная кухня
Количество санузлов
-
Котельная
Кабинет
Постирочная
Спортзал / детский / игровой зал
Бильярдная
Хозяйский санузел
Хозяйская гардеробная
Кладовая
-
Зимний сад
Внутренний двор / атриум
Материалы и конструкции
Материал стен
Газобетон
Кирпич
Брус
Клееный брус
Бревно
Деревянный кирпич
Каркас
Каркасно-панельные
SIP
Фахверк
Монолит
ЛСТК
Керамоблок
Керамзитобетон
Кровля
Гибкая черепица
Клик-фальц
Композитная черепица
Медь
Металлочерепица
Натуральная черепица
Ондулин
Оцинкованный стальной лист гладкий
Оцинкованный стальной лист профилированный
Полимерная мембрана
Рулонная кровля
Сланцевая кровля
Стальной профилированный лист
Фальцевая кровля
Облицовка внешних стен
Без облицовки
Деревянная вагонка
Керамогранит
Клинкерная плитка
Кровельный материал
Мокрая штукатурка
Облицовка камнем
Облицовочный кирпич
Сайдинг
Фальц
Фасадные панели
Толщина несущих наружных стен
-
мм
Межэтажные перекрытия
Монолитные
По деревянным балкам
По стальным балкам
Сборно-монолитные
Сборные
Щитовые
Внутренние не несущие перегородки
Газобетонные
Газосиликатные блоки
Гипсолитовые
Каркасно-обшивные
Керамзитобетонные блоки
Керамоблоки
Кирпичные
Монолит
Фундамент
Столбчатый
Свайный
Монолитная ж/бетонная плита
Утепленная шведская плита (УШП)
Ленточный монолитный
Ленточный заглубленный из ФБС
Cборно-монолитный
Малозаглубленные ростверки
Свайно-ростверковый
Внешний вид
Форма крыши
Односкатные (косые)
Двухскатные
Четырехскатные
Вальмовые
Мансардные
Плоские
Эксплуатируемые
Стеклянные
Шале
Ломаные
Шатровые (Пирамидальные)
Многощипцовые
Купольные (сферические)
Сложной формы
Стиль
Американское кантри
Английский
Барнхаус
Барокко
Голландский
Европейская усадьба
Классический
Минимализм
Модерн
Райт
Русская усадьба
Скандинавский
Средневековый замок
Современный
Фахверк
Хай-тек
Шале
Эклектика
Окна
Окна до пола
Панорамные окна
Круглые окна
Окна с французским балконом
Окна в пол
В гостиной
На кухне
Второй свет
Мансардные окна
Колонны
С башней (круглый эркер)
Балкон / лоджия
Балкон
Лоджия
Форма дома
Прямоугольный
Квадратный
Угловой (буквой Г)
П-образный (полукаре)
Т-образный (буквой Т)
Круглый
Сложной формы
Доп. оборудование
Погреб
Камин
Печь
Барбекю на террасе
Купель
Бассейн
Окно в ванной комнате
Иные параметры
Назначение (тип) дома
Дом для постоянного проживания
Гостевой дом
Дачный дом / летний / сезонный
Дом охраны
Стоимость строительства
-
Дом для неровных участков (с рельефом)
Дом для узких участков
Стоимость проекта
-
Тип проекта
Готовый проект
Домокомплект
Проект с подрядом