Этот деревянный дом с тремя спальнями и детской – удачный вариант для семьи из 4-5 человек. Экстерьер здания обладает присущей скандинавскому стилю минималистичностью и строгостью.
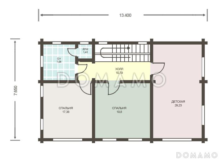
Планировка отличается функциональностью. Входная дверь с террасы ведет в прихожую, где предусмотрено место под вместительные шкафы. Далее с одной стороны холла расположена зона с сауной и котельной, а с другой – жилые помещения: гостиная, спальня, столовая с кухней. Второй этаж занимают 2 спальни, детская и санузел.
кухня-столовая дополняется застекленной верандой с хорошим обзором,
котельная дает возможность жить в таком доме круглый год.